This calculator provides a guide to the amount of residential stamp duty you may pay and does not guarantee this will be the actual cost. This calculation is based on the Stamp Duty Land Tax Rates for residential properties purchased from 23rd September 2022 and second homes from 31st October 2024. For more information on Stamp Duty Land Tax, click here.
3 bedroom Semi Detached House for sale, Tintagel, Great Lumley, Durham, DH3
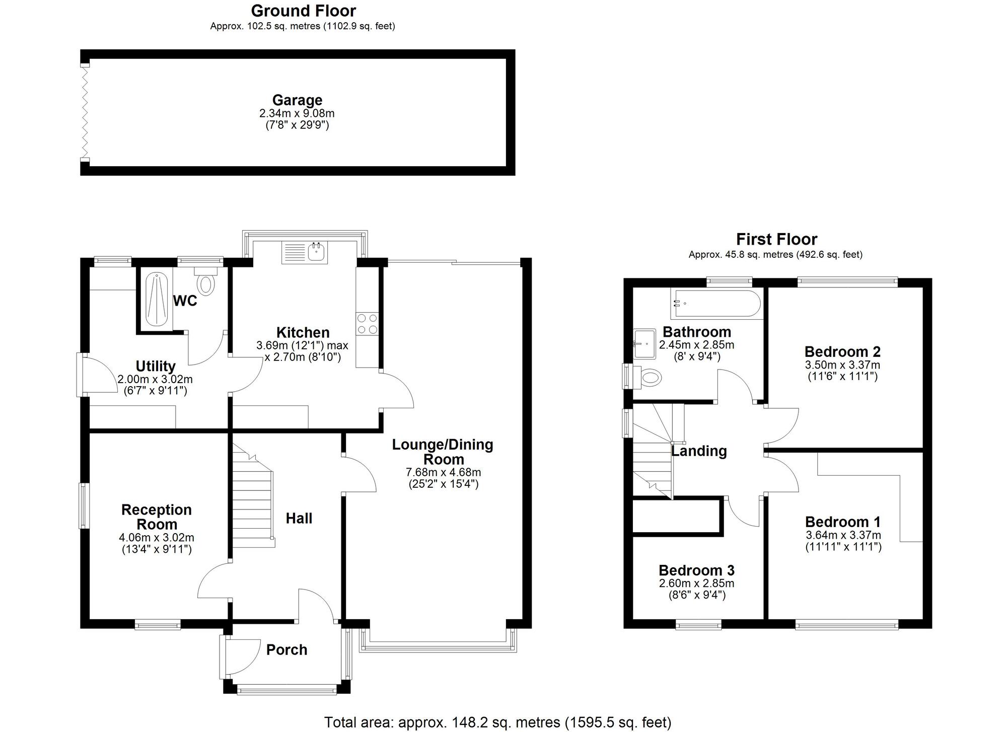
Features and Description
- Three Bedroom Semi-Detached
- No Onward Chain
- Downstairs WC
- Council Tax Band C
- EPC Rating D
- Approx. 127sqm/1366sqft Accommodation
Located in the sought-after area of Great Lumley, just a short drive from Chester-le-Street town centre and conveniently close to local transport links, this well-kept home offers spacious living throughout, with great potential for modernisation.
The ground floor features a welcoming porch leading into a central hall, giving access to a generous lounge/dining room that spans the width of the property, perfect for both relaxing and entertaining. A separate reception room to the front offers flexibility for use as a home office, playroom, or additional sitting room. To the rear, the kitchen connects to a useful utility area and a convenient downstairs WC.
Upstairs, the property boasts three well-proportioned bedrooms. The master bedroom features built-in storage, while the second bedroom comfortably accommodates a double bed and additional furnishings. The third bedroom is ideally suited as a single room or home office. A spacious family bathroom completes the upper floor.
Externally, the home benefits from a small, easy-to-maintain garden to the rear, ideal for those seeking low-maintenance outdoor space. A detached garage provides additional storage or off-street parking.
Ideal for families or buyers looking to put their own stamp on a property, this home combines space, location, and potential in a popular residential area.
IMPORTANT NOTE TO POTENTIAL PURCHASERS:
We endeavour to make our particulars accurate and reliable, however, they do not constitute or form part of an offer or any contract and none is to be relied upon as statements of representation or fact. The services, systems and appliances listed in this specification have not been tested by us and no guarantee as to their operating ability or efficiency is given. All photographs and measurements have been taken as a guide only and are not precise. Floor plans where included are not to scale and accuracy is not guaranteed. If you require clarification or further information on any points, please contact us, especially if you are travelling some distance to view. Fixtures and fittings other than those mentioned are to be agreed with the seller.
Tintagel, Great Lumley, Durham, DH3
Additional Information
-
Property refQCT250469
-
EPCD
-
TenureFreehold
-
Council TaxC
-
Local authorityDurham County Council
Similar properties for sale by Your Move Chester-le-Street
The pin shows the exact address of the property
Energy Efficiency Rating
Very energy efficient - lower running costs
Not energy efficient - higher running costs
Current
65Potential
76CO2 Rating
Very energy efficient - lower running costs
Not energy efficient - higher running costs
