This calculator provides a guide to the amount of residential stamp duty you may pay and does not guarantee this will be the actual cost. This calculation is based on the Stamp Duty Land Tax Rates for residential properties purchased from 23rd September 2022 and second homes from 31st October 2024. For more information on Stamp Duty Land Tax, click here.
3 bedroom Semi Detached House for sale, Villiers Road, Kingston, KT1
Features and Description
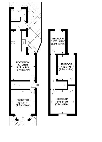
Your Move are pleased to present this spacious and well-maintained three-bedroom home, ideally situated within walking distance of the University, making it an excellent opportunity for investors or owner-occupiers alike.
The property comprises a fitted kitchen, comfortable living space, three well-proportioned double bedrooms, and a family bathroom. Externally, the home benefits from a private garden with a patio area, providing useful outdoor space for relaxation or entertaining.
Conveniently located close to local amenities, transport links, and educational facilities, this property offers practical accommodation in a highly accessible location.
IMPORTANT NOTE TO POTENTIAL PURCHASERS:
We endeavour to make our particulars accurate and reliable, however, they do not constitute or form part of an offer or any contract and none is to be relied upon as statements of representation or fact. The services, systems and appliances listed in this specification have not been tested by us and no guarantee as to their operating ability or efficiency is given. All photographs and measurements have been taken as a guide only and are not precise. Floor plans where included are not to scale and accuracy is not guaranteed. If you require clarification or further information on any points, please contact us, especially if you are travelling some distance to view. Fixtures and fittings other than those mentioned are to be agreed with the seller.
Villiers Road, Kingston, KT1
Additional Information
-
Property refSUR260106
-
EPCD
-
TenureFreehold
-
Council TaxD
-
Local authorityKingston Borough Council
The pin shows the exact address of the property
Energy Efficiency Rating
Very energy efficient - lower running costs
Not energy efficient - higher running costs
Current
62Potential
85CO2 Rating
Very energy efficient - lower running costs
Not energy efficient - higher running costs
