This calculator provides a guide to the amount of residential stamp duty you may pay and does not guarantee this will be the actual cost. This calculation is based on the Stamp Duty Land Tax Rates for residential properties purchased from 23rd September 2022 and second homes from 31st October 2024. For more information on Land and Buildings Transaction Tax, click here.
3 bedroom End Terrace House for sale, Lochaber Place, East Kilbride, South Lanarkshire, G74
Features and Description
- End of terrace house
- Sought-after neighbourhood
- Excellent public transport links
- Close to reputable schools
- Bright open-plan reception room
- Three bedrooms
- Single garage included
- Ideal for families or investors
** Closing date Friday 19th September 2025 at 12pm **
Presenting this well-maintained end of terrace house, available for sale in a sought-after location with excellent public transport links, proximity to reputable schools, and a variety of local amenities. An ideal choice for first-time buyers, families, or investors, the property is set to offer comfortable and practical living in a highly desirable neighbourhood.
Upon entering, you are welcomed by an open-plan reception room, benefitting from an abundance of natural light, providing a bright and inviting space for relaxation or entertaining guests. The adjacent kitchen is thoughtfully designed with a range of wall and base units, and enjoys ample natural light, creating an efficient space for culinary activities.
Upstairs, the property offers three well-proportioned double bedrooms, each featuring built-in storage solutions to maximise space and organisation. The principal bedroom boasts built-in wardrobes, while the remaining two bedrooms are enhanced by practical built-in storage.
This home is in good condition throughout and is complemented by a single garage, providing secure parking or additional storage. With an EPC rating of D and within council tax band D, the property ensures manageable ongoing costs for the homeowner.
Perfectly positioned for convenient access to transport options, sought-after schools, and essential amenities, this property represents an excellent opportunity for those seeking a blend of comfort, functionality, and long-term investment value. Arrange a viewing to fully appreciate all this home has to offer.
Location
East Kilbride boasts a wide and varied range of shopping centres, retail parks, bars, restaurants and night life, banks and building societies. Local amenities include a multiplex cinema, ice rink, arts centre, bowling green, Hairmyres hospital, the Dollan Aqua Centre, several Sports Centres, Golf Courses and numerous other recreational facilities. The town plays host to a variety of local clubs and societies and facilitates access to Calderglen, Strathclyde and Chatelherault country parks. East Kilbride offers a range of primary and secondary schooling, and South Lanarkshire College. East Kilbride is one of Scotlands largest and newest towns enjoying a central locale with ample bus and rail services and motorway links providing access in and around the central belt.
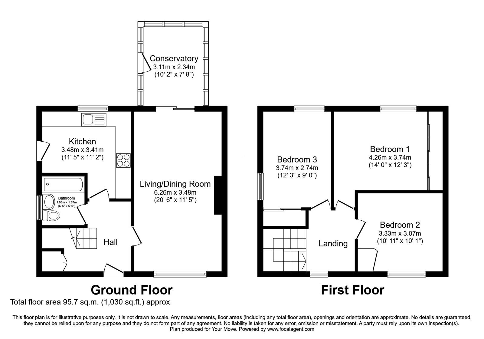
Living Room
20'6" x 11'5" (6.25m x 3.48m)
Spacious bright living area
Kitchen
11'5" x 11'2" (3.48m x 3.40m)
Fitted kitchen with range of wall and base units
Conservatory
10'2" x 7'8" (3.10m x 2.34m)
Rear conservatory
Bathroom
6'6" x 5'6" (1.98m x 1.68m)
Fitted bathroom located on ground level
Bedroom 1
14'0" x 12'3" (4.27m x 3.73m)
Double bedroom with fitted wardrobes
Bedroom 2
10'11" x 10'1" (3.33m x 3.07m)
Double bedroom with built-in storage
Bedroom 3
12'3" x 8'12" (3.73m x 2.74m)
Smaller double with built-in wardrobe
IMPORTANT NOTE TO POTENTIAL PURCHASERS:
We endeavour to make our particulars accurate and reliable, however, they do not constitute or form part of an offer or any contract and none is to be relied upon as statements of representation or fact. The services, systems and appliances listed in this specification have not been tested by us and no guarantee as to their operating ability or efficiency is given. All photographs and measurements have been taken as a guide only and are not precise. Floor plans where included are not to scale and accuracy is not guaranteed. If you require clarification or further information on any points, please contact us, especially if you are travelling some distance to view. Fixtures and fittings other than those mentioned are to be agreed with the seller.
Lochaber Place, East Kilbride, South Lanarkshire, G74
Additional Information
-
Property refHAM250153
-
EPCD
-
TenureFreehold
-
Council TaxD
-
Local authoritySouth Lanarkshire Council
The pin shows the exact address of the property
Energy Efficiency Rating
Very energy efficient - lower running costs
Not energy efficient - higher running costs
Current
68Potential
79CO2 Rating
Very energy efficient - lower running costs
Not energy efficient - higher running costs
