This calculator provides a guide to the amount of residential stamp duty you may pay and does not guarantee this will be the actual cost. This calculation is based on the Stamp Duty Land Tax Rates for residential properties purchased from 23rd September 2022 and second homes from 31st October 2024. For more information on Land and Buildings Transaction Tax, click here.
4 bedroom Detached House for sale, Carmichael Court, Lanark, South Lanarkshire, ML11
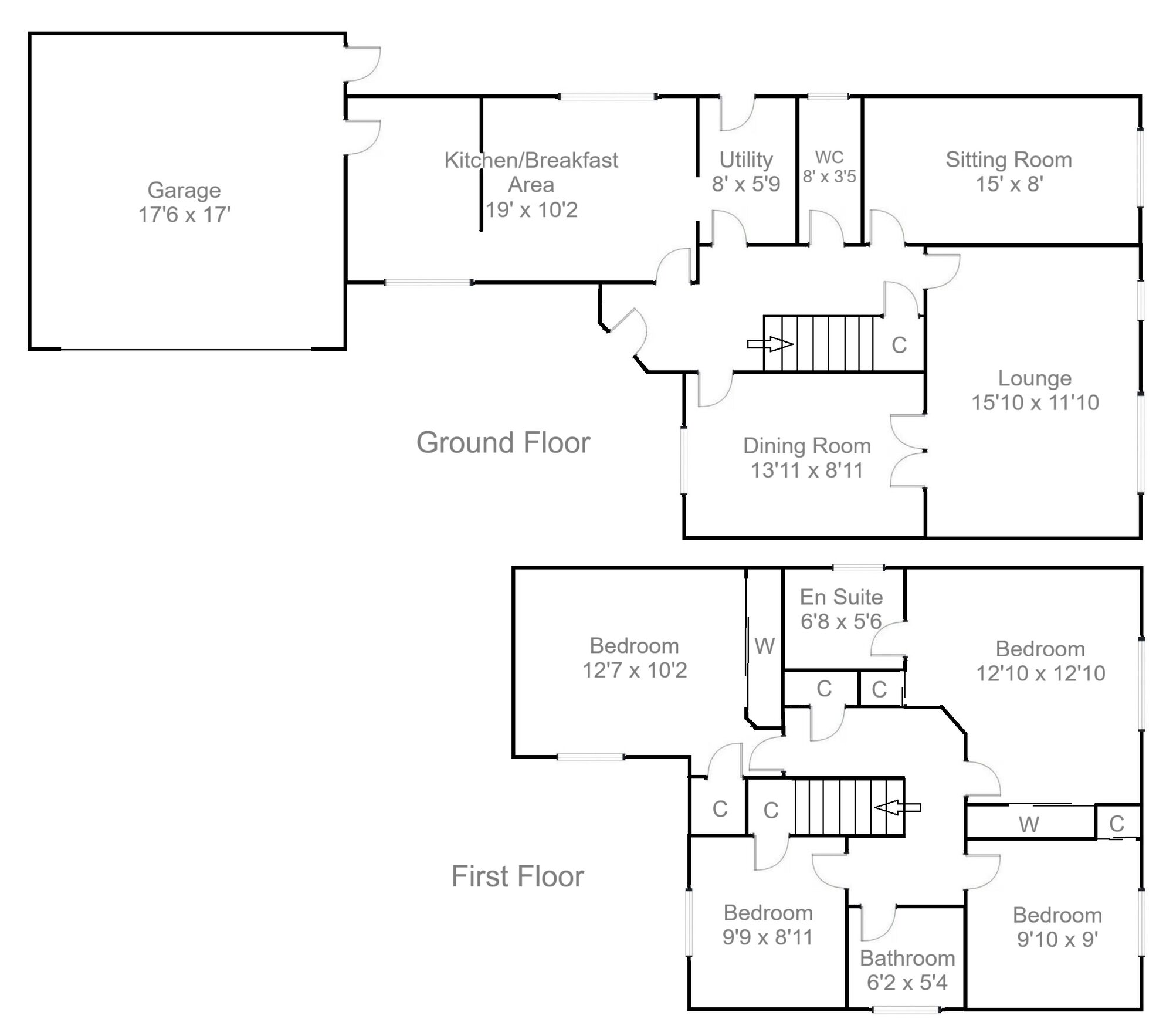
Features and Description
- EPC Rating - C
- Detached Villa with Double Garage
- 4 Bedrooms, 3 Reception Rooms
- En Suite Shower, Utility Room
- Short Walk to Town Centre, Train Station and Schools
- Enclosed Rear Garden
Popular development on the edge of town, this property is one of the larger ones on site. Offering flexible living with three reception rooms to the ground floor, as well as the breakfast area in the kitchen. With four double bedrooms, en suite and bathroom to the upper level, a spacious family home. Ample parking to front and a good sized double garage. Enclosed rear garden, a good sun trap.
The Royal Burgh is steeped in history and has all the required facilities and amenities, including Tesco, Morrisons and Lidl, a wide range of local shops, retail park, health centre, modern grammar school, modern primary schools, historic 18 hole golf course, tennis club, bowling clubs, leisure centre with swimming pool. For the outdoor enthusiast, the Scottish Borders and the Clyde Valley are within striking distance, providing excellent walks / cycle routes including Tinto Hill, Southern Uplands and the Falls of Clyde at New Lanark, a world heritage site. Also fishing on the River Clyde and River Tweed. Lanark is much favoured particularly for those requiring good transport links, local train station, regular bus services and for the driver, easy access to Glasgow and Edinburgh, with the Edinburgh City Bypass only a thirty minute drive away, offering routes across East Central Scotland. The M74 is only a fifteen minute journey giving good access to Glasgow and the West of Scotland. In all, this property is ideally situated for the commuter across the central belt.
Lounge
15'10" x 11'10" (4.83m x 3.60m)
Sitting Room
14'12" x 8'0" (4.57m x 2.44m)
Dining Room
13'1" x 8'11" (4.00m x 2.72m)
Kitchen / Breakfast Room
19'0" x 10'2" (5.80m x 3.10m)
Utility Room
8'0" x 5'9" (2.44m x 1.75m)
WC
8'0" x 3'5" (2.44m x 1.04m)
Bedroom
12'10" x 12'10" (3.90m x 3.90m)
En-Suite
6'8" x 5'6" (2.03m x 1.68m)
Bedroom
12'7" x 10'2" (3.84m x 3.10m)
Bedroom
9'10" x 8'12" (3.00m x 2.74m)
Bedroom
9'9" x 8'11" (2.97m x 2.72m)
Barthroom
6'2" x 5'4" (1.88m x 1.63m)
Garage
17'6" x 16'12" (5.33m x 5.18m)
IMPORTANT NOTE TO POTENTIAL PURCHASERS:
We endeavour to make our particulars accurate and reliable, however, they do not constitute or form part of an offer or any contract and none is to be relied upon as statements of representation or fact. The services, systems and appliances listed in this specification have not been tested by us and no guarantee as to their operating ability or efficiency is given. All photographs and measurements have been taken as a guide only and are not precise. Floor plans where included are not to scale and accuracy is not guaranteed. If you require clarification or further information on any points, please contact us, especially if you are travelling some distance to view. Fixtures and fittings other than those mentioned are to be agreed with the seller.
Carmichael Court, Lanark, South Lanarkshire, ML11
Additional Information
-
Property refLAN250126
-
EPCC
-
TenureFreehold
-
Council TaxF
-
Local authoritySouth Lanarkshire Council
The pin shows the exact address of the property
Energy Efficiency Rating
Very energy efficient - lower running costs
Not energy efficient - higher running costs
Current
74Potential
77CO2 Rating
Very energy efficient - lower running costs
Not energy efficient - higher running costs
