This calculator provides a guide to the amount of residential stamp duty you may pay and does not guarantee this will be the actual cost. This calculation is based on the Stamp Duty Land Tax Rates for residential properties purchased from 23rd September 2022 and second homes from 31st October 2024. For more information on Stamp Duty Land Tax, click here.
3 bedroom Mid Terrace House for sale, Thames Street, Chopwell, Tyne and Wear, NE17
Features and Description
- Three-bedroom terraced house
- No onward chain
- Contemporary fitted kitchen diner
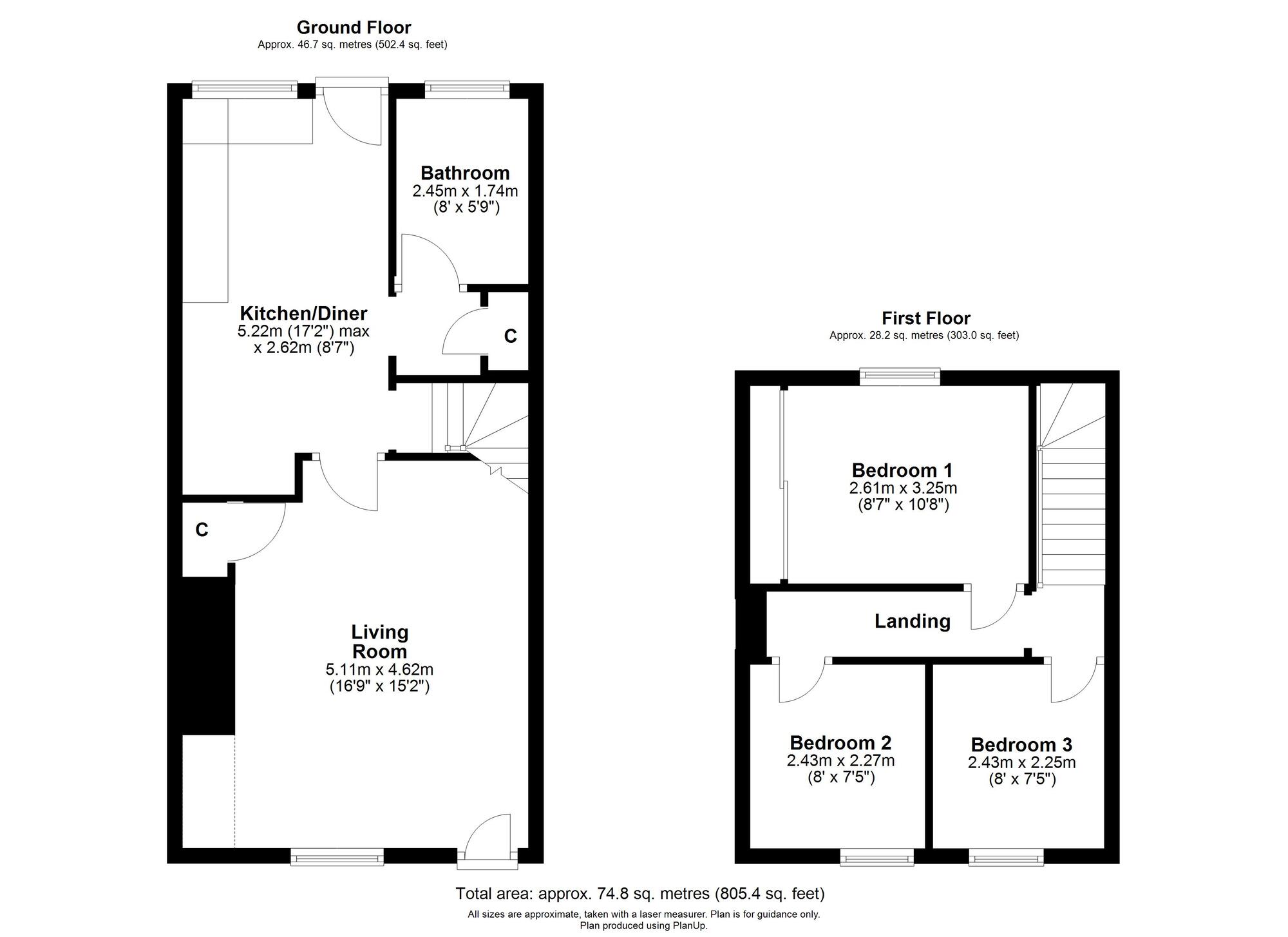
- Approx. floor area: 75sq.m. / 805sq.ft.
- EPC rating: D
- Council tax band: A [Gateshead]
This terraced house has UPVC double glazing and gas combi. heating (Main combi. boiler), and has had a damp proof course in 2023.
The accommodation comprises, on the ground floor: entrance into the spacious living room, kitchen diner fitted with contemporary dark grey units and marble-effect worktops, a Beko cooker with electric oven and gas hob with extractor over, and a door to/from the rear yard. An adjacent lobby, with a built-in cupboard, leads to the bathroom, which is fitted with a white suite comprising PVC-panelled bath with electric shower over, wash basin and W.C.
Stairs from a small lobby off the kitchen lead up to the first floor landing – with a loft hatch to a part-boarded loft space – and the three bedrooms; the main bedroom with a fitted wardrobe and wall-mounted combi. boiler, and the two single bedrooms.
Externally, there is an enclosed pebbled yard to the rear, while the front is accessed along a path that runs all the way along the terrace, with a central communal grassed area between the terraces.
Agent’s Note –
Buy-to-let investors should note that there is a selective licensing scheme being introduced in Chopwell from June 2025. Your Move Chris Stonock provide a comprehensive lettings service and we would be happy to provide further advice on current rental values for terraced houses in the Chopwell area and discuss the different options and levels of lettings service that we can provide for landlords. If you are looking to purchase this property with a buy-to-let mortgage, we recommend that you seek confirmation from the lender that the property/location fits within their required suitability criteria.
Location -
Thames Street is situated off South Road, which is itself off Derwent Street in Chopwell village, where there are convenience stores, shops and amenities, including Chopwell Medical Practice, as well as various community groups and activities. Situated between the Derwent Valley and the Tyne Valley, there are road links and bus services to Newcastle, which is around 11 miles away, as well as nearby countryside walks and cycle routes and further facilities in nearby Blackhall Mill, Rowlands Gill and Consett, along the A694.
IMPORTANT NOTE TO POTENTIAL PURCHASERS:
We endeavour to make our particulars accurate and reliable, however, they do not constitute or form part of an offer or any contract and none is to be relied upon as statements of representation or fact. The services, systems and appliances listed in this specification have not been tested by us and no guarantee as to their operating ability or efficiency is given. All photographs and measurements have been taken as a guide only and are not precise. Floor plans where included are not to scale and accuracy is not guaranteed. If you require clarification or further information on any points, please contact us, especially if you are travelling some distance to view. Fixtures and fittings other than those mentioned are to be agreed with the seller.
Thames Street, Chopwell, Tyne and Wear, NE17
Additional Information
-
Property refQRW240332
-
EPCD
-
TenureFreehold
-
Council TaxA
-
Local authorityGateshead Council
Similar properties for sale by Your Move Rowlands Gill
The pin shows the exact address of the property
Energy Efficiency Rating
Very energy efficient - lower running costs
Not energy efficient - higher running costs
Current
55Potential
74CO2 Rating
Very energy efficient - lower running costs
Not energy efficient - higher running costs
