This calculator provides a guide to the amount of residential stamp duty you may pay and does not guarantee this will be the actual cost. This calculation is based on the Stamp Duty Land Tax Rates for residential properties purchased from 23rd September 2022 and second homes from 31st October 2024. For more information on Stamp Duty Land Tax, click here.
 
         
         
         
         
         
         
         
         
         
         
         
         
         
         
         
        3 bedroom Semi Detached House for sale, Chapel House Drive, Newcastle upon Tyne, Tyne and Wear, NE5
Features and Description
- Three Bedroom Semi Detached House
- Well Presented
- Great Location
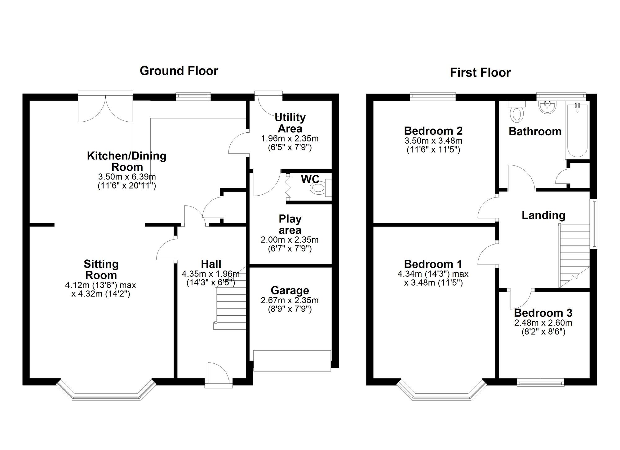
- Floor Area - Approximate 990 Sq.ft / 92 Sq.m
- Council Tax Band - C
- EPC Rating - D
Superb Family Home on Chapel House Drive
This well-presented property offers versatile accommodation and a fantastic rear garden, making it an ideal family home. Situated on the popular Chapel House Drive in Chapel House, the home benefits from gas central heating and double glazing throughout.
The accommodation briefly comprises: welcoming entrance hall, lounge with bay window, and a superb open plan kitchen/dining room with direct access to the rear garden. From the kitchen, a useful utility room provides further garden access as well as leading to a downstairs WC and an additional room, currently used as a play area, but equally suitable as a home office.
To the first floor there are three bedrooms and a modern family bathroom/WC.
Externally, the property enjoys front and rear gardens, with a driveway leading to the garage. The generous rear garden is mainly laid to lawn, complemented by patio and woodchip areas, offering excellent outdoor space for families and entertaining.
Chapel House is a well-established and highly regarded residential area in the West of Newcastle, just a short distance from the city centre and served by excellent bus routes. Newcastle offers a wide range of schooling, shopping and cultural amenities, including the Metro Centre and Quayside, while the A69 and A1 trunk roads provide superb transport links.
We are advised that the property is freehold.
IMPORTANT NOTE TO POTENTIAL PURCHASERS:
We endeavour to make our particulars accurate and reliable, however, they do not constitute or form part of an offer or any contract and none is to be relied upon as statements of representation or fact. The services, systems and appliances listed in this specification have not been tested by us and no guarantee as to their operating ability or efficiency is given. All photographs and measurements have been taken as a guide only and are not precise. Floor plans where included are not to scale and accuracy is not guaranteed. If you require clarification or further information on any points, please contact us, especially if you are travelling some distance to view. Fixtures and fittings other than those mentioned are to be agreed with the seller.
Chapel House Drive, Newcastle upon Tyne, Tyne and Wear, NE5
 
        Additional Information
- 
                    Property refQWD250666
- 
                    EPCD
- 
                    TenureFreehold
- 
                    Council TaxC
- 
                    Local authorityNewcastle Upon Tyne City Council
 
        Similar properties for sale by Your Move West Denton
 
         
         
         
         
         
         
         
         
         
         
         
         
         
         
         
        The pin shows the exact address of the property
Energy Efficiency Rating
Very energy efficient - lower running costs
Not energy efficient - higher running costs
Current
56Potential
75CO2 Rating
Very energy efficient - lower running costs
Not energy efficient - higher running costs

 
         
         
         
         
         
         
        