This calculator provides a guide to the amount of residential stamp duty you may pay and does not guarantee this will be the actual cost. This calculation is based on the Stamp Duty Land Tax Rates for residential properties purchased from 23rd September 2022 and second homes from 31st October 2024. For more information on Stamp Duty Land Tax, click here.
2 bedroom Detached Bungalow for sale, Thorntree Lane, Goole, East Yorkshire, DN14
Features and Description
- 2 Bedrooms
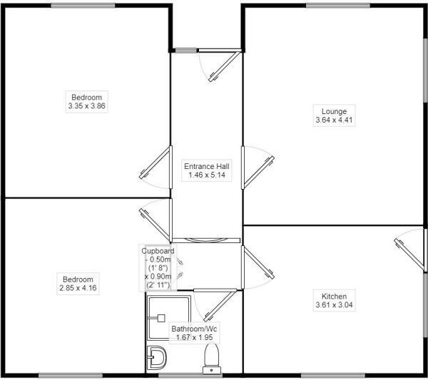
- Entrance Hall
- Lounge
- Modern Kitchen
- Shower Room/Wc
- Front Garden
- Gated Multiple Off Street Parking
- Spacious Rear Garden
OFFERED FOR SALE WITH NO CHAIN AND SITUATED IN A SOUGHT AFTER LOCATION IN GOOLE****TWO DOUBLE BEDROOMS****LARGE GARDEN****GATED MULTIPLE OFF STREET PARKING****MODERN KITCHEN****NEW DECORATION AND CARPETS****Benefits from gas central heating and new double glazing 2025, fully re-wired. The accommodation comprises entrance hall, lounge, modern kitchen, two double bedroom, shower/Wc. Outside:- Front garden, gated multiple off street parking. Large rear garden. Viewing essential
Location
Situated within the popular location of Goole, with access to the town centre and all the amenities it has to offer to include shops, schools, supermarkets and a train station. The area also has access to the M62 motorway network at junction 37
Entrance Hall
1.40 x 5.12
Lounge
3.64 x 4.41
Modern Kitchen
3.61 x 3.04
Shower Room / Wc
1.67 x 1.95
Bedroom
3.35 x 3.86
Bedroom
2.85 x 4.16
IMPORTANT NOTE TO POTENTIAL PURCHASERS:
We endeavour to make our particulars accurate and reliable, however, they do not constitute or form part of an offer or any contract and none is to be relied upon as statements of representation or fact. The services, systems and appliances listed in this specification have not been tested by us and no guarantee as to their operating ability or efficiency is given. All photographs and measurements have been taken as a guide only and are not precise. Floor plans where included are not to scale and accuracy is not guaranteed. If you require clarification or further information on any points, please contact us, especially if you are travelling some distance to view. Fixtures and fittings other than those mentioned are to be agreed with the seller.
Thorntree Lane, Goole, East Yorkshire, DN14
Additional Information
-
Property refQGL260013
-
EPCD
-
Council TaxC
-
Local authorityEast Riding Of Yorkshire Council
The pin shows the exact address of the property
Energy Efficiency Rating
Very energy efficient - lower running costs
Not energy efficient - higher running costs
Current
63Potential
84CO2 Rating
Very energy efficient - lower running costs
Not energy efficient - higher running costs
