This calculator provides a guide to the amount of residential stamp duty you may pay and does not guarantee this will be the actual cost. This calculation is based on the Stamp Duty Land Tax Rates for residential properties purchased from 23rd September 2022 and second homes from 31st October 2024. For more information on Stamp Duty Land Tax, click here.

















2 bedroom Detached House for sale, Green Grove, Woodside, Tyne and Wear, NE40
Features and Description
- Two Bedroom Semi-Detached House
- Gardens and countryside views
- No Upper Chain / Early Vacant Possession
- Approx. floor area: 80 Sq.m. / 861sq.ft.
- EPC Rating D
- Gateshead council Tax Band B
Situated in this picturesque semi-rural area between Greenside and Ryton, this two-bedroom semi-detached house has a garage accessed via a shared driveway and is easily accessed just along from the A695.
With UPVC double glazing and gas central heating (via Worcester combi. boiler) as well as a security alarm, the house provides accommodation comprising, on the ground floor: entrance porch, lobby with stairs to the first floor, living room with a bay window to the front; kitchen/dining room to the rear with a door from kitchen into the conservatory, which has a door out to the patio garden and affords pleasant views over the fields behind.
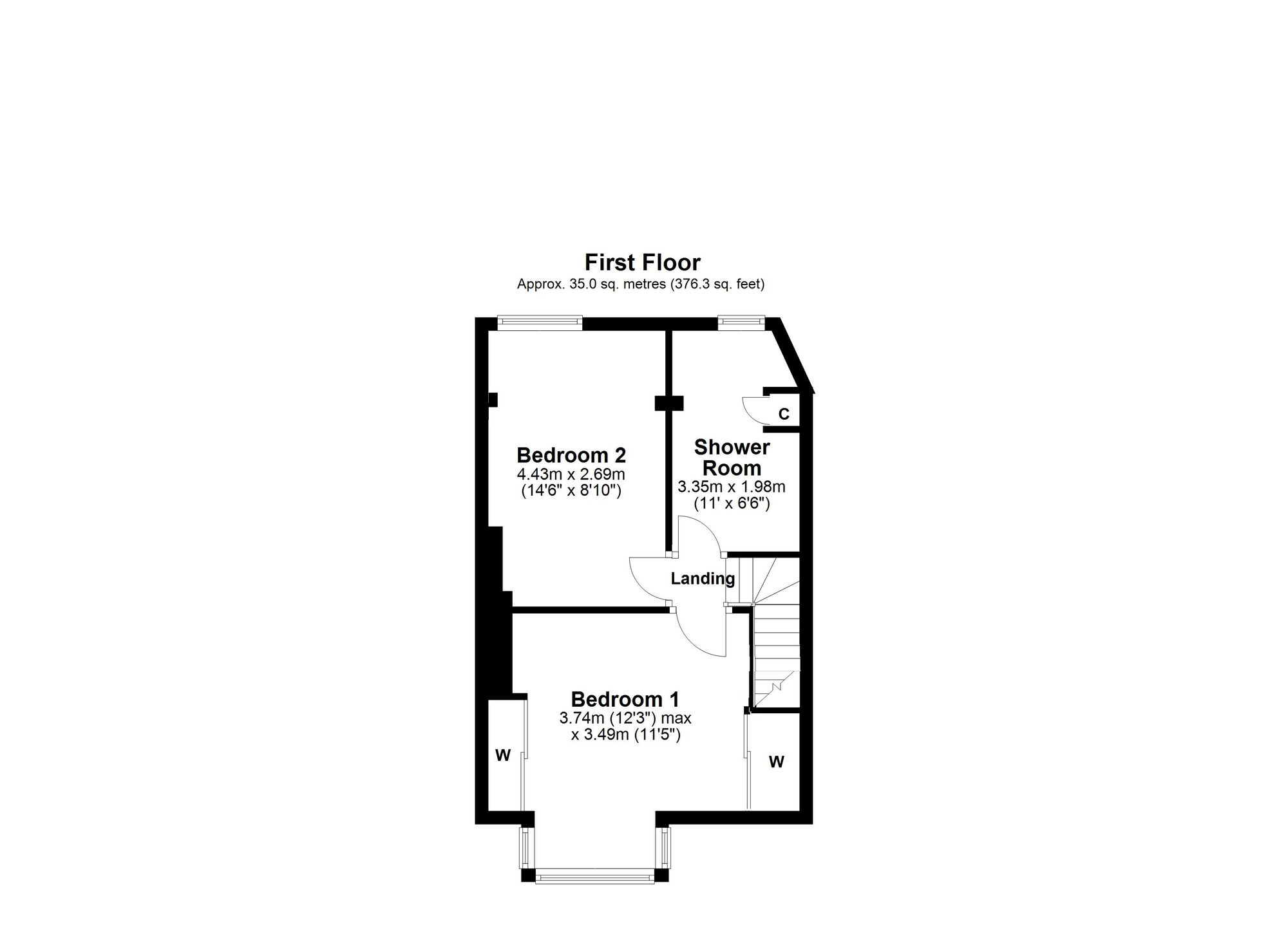
To the first floor, the landing leads to the two good-sized bedrooms, with the front bedroom having a bay window and two matching fitted wardrobes. There is also a shower room with a curved shower cubicle and tiled walls and floor.
Externally, there is a small lawned garden with well-stocked borders to the front, and path to the entrance, as well as the shared driveway (shared with no.11) that leads to the garage and to the raised, flagged patio garden to the rear, with views over the fields behind. There is ample, marked but non-allocated on-street parking directly to the front, along Green Grove.
Location -
Situated along Woodside Lane (B6315), Green Grove is in the lovely semi-rural area of Woodside in Ryton, in the Tyne Valley, at the edge of Crawcrook and Greenside villages, with fantastic countryside walks and some local amenities including, shops, churches, schools, public houses and public transport (bus) links, within the nearby villages. There is easy access to major road links, including the nearby A695, to the Metro Centre and Newcastle city centre (which is 7.3 miles away). There are train stations along the Hexham to Carlisle line in nearby Wylam (2.5 miles) and Prudhoe (4.4 miles).
IMPORTANT NOTE TO POTENTIAL PURCHASERS:
We endeavour to make our particulars accurate and reliable, however, they do not constitute or form part of an offer or any contract and none is to be relied upon as statements of representation or fact. The services, systems and appliances listed in this specification have not been tested by us and no guarantee as to their operating ability or efficiency is given. All photographs and measurements have been taken as a guide only and are not precise. Floor plans where included are not to scale and accuracy is not guaranteed. If you require clarification or further information on any points, please contact us, especially if you are travelling some distance to view. Fixtures and fittings other than those mentioned are to be agreed with the seller.
Green Grove, Woodside, Tyne and Wear, NE40

Additional Information
-
Property refWCK250147
-
EPCD
-
TenureFreehold
-
Council TaxB
-
Local authorityGateshead Council

Similar properties for sale by Your Move Crawcrook

















The pin shows the exact address of the property
Energy Efficiency Rating
Very energy efficient - lower running costs
Not energy efficient - higher running costs
Current
61Potential
76CO2 Rating
Very energy efficient - lower running costs
Not energy efficient - higher running costs