This calculator provides a guide to the amount of residential stamp duty you may pay and does not guarantee this will be the actual cost. This calculation is based on the Stamp Duty Land Tax Rates for residential properties purchased from 23rd September 2022 and second homes from 31st October 2024. For more information on Stamp Duty Land Tax, click here.
4 bedroom Detached House for sale, High Friarside Farm House, Burnopfield, Durham, NE16
Features and Description
- Four-Bedroom Detached Period Property
- A Plot of approximately 4.66 acres
- Spectacular Views & potential development opportunity
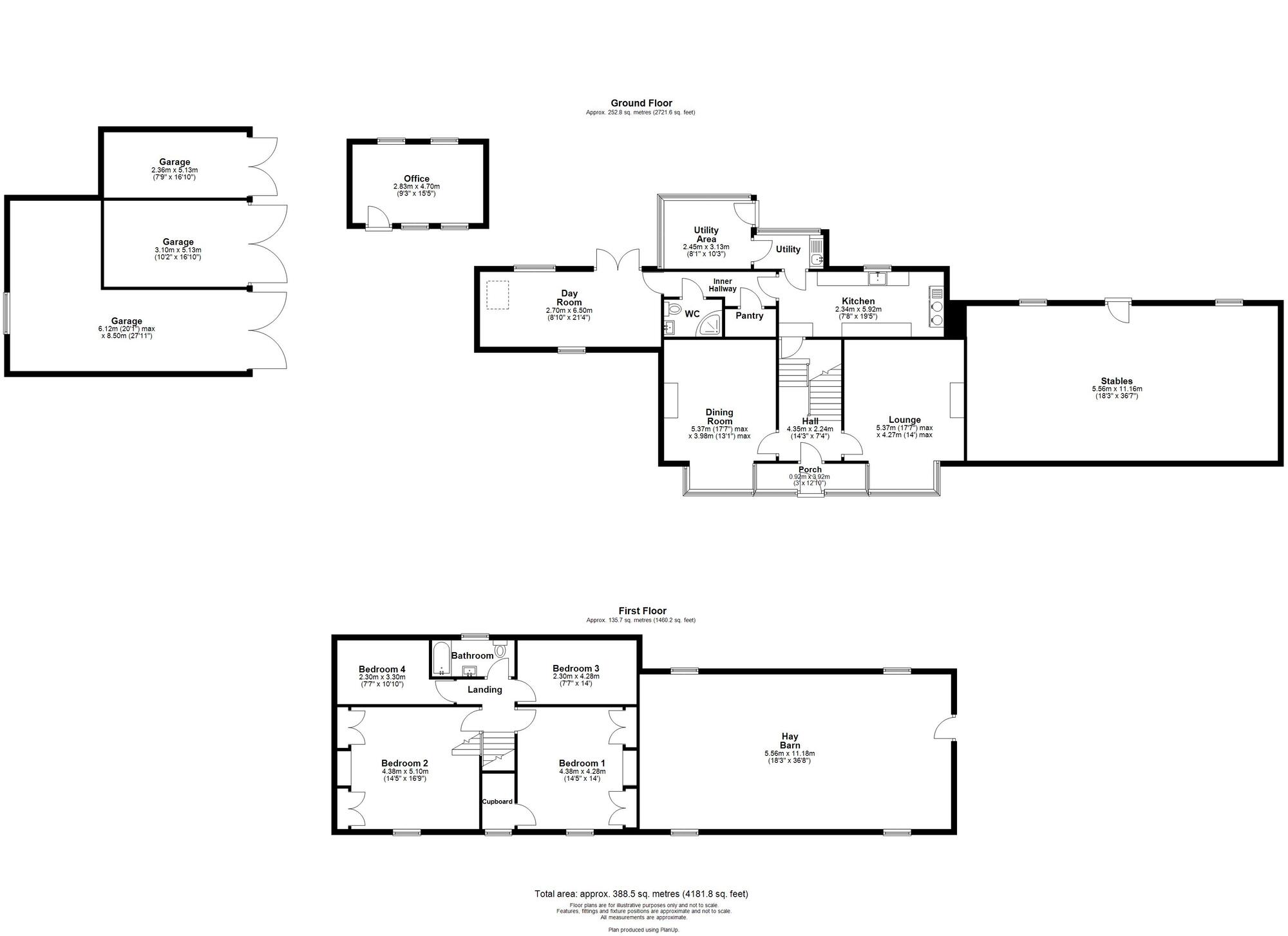
- Approx. floor area: 338sq.m. / 4,181sq.ft.
- EPC Rating E
- Council Tax Band E (Durham)
Originally built in the mid-19th century, High Friarside Farmhouse has been adapted and modernised to provide a spacious family home with generous grounds that has scope for further development, particularly with the attached stables that could be converted into an annexed or separate dwelling (subject to the necessary planning consents).
Situated just off the B6310 in a semi-rural location at the west side of Burnopfield village - between Newcastle and Durham, within easy reach of the Metro Centre - this characterful stone-built double-bay-fronted home provides a rare opportunity for buyers to acquire a substantial property with outbuildings and land.
The house has double glazing (apart from the single-glazed stables) and gas central heating (via Ideal combi. boiler), as well as a security alarm system, with accommodation comprising, on the ground floor: front entrance porch with composite door, hallway with stairs to the first floor and, to one side the living room with front bay window and a gas fire in a traditional feature fireplace; to the other side is a good-sized dining room also with a bay-window to the front and an open fire with traditional surround. Some steps to the rear of the hall lead down to the kitchen, which includes cream units, granite and wooden worktops, a ceramic sink, a gas Aga stove cooker and an integrated fridge. Off the rear hallway there is a pantry cupboard, a shower room/W.C. with Mira electric shower and a spacious and versatile breakfast/sun room with Velux windows, that would also make an excellent home office. Down a few further stairs is the utility room, with granite worktops, stainless steel sink and a door to the rear porch which leads out to the rear garden and driveway.
To the first floor, that landing leads to the spacious main bedroom, with built-in wardrobes and the second generously-sized bedroom, both of which have built-in wardrobes and ornamental fireplaces. There are two further good-sized bedrooms and a bathroom with a free-standing slipper bath, wash basin, W.C. and a tiled floor with under-floor heating.
Externally, the adjoining stables have electric sockets and single glazed windows. There are stone steps for external access to the first floor above. This building provides an excellent opportunity for conversion, subject to the appropriate permissions, to either another spacious dwelling or annexed accommodation. There is a spacious lawned garden to the east side of the house, with a separate access from the road to the front, which continues around to the rear, below the driveway. There is also a secluded walled garden immediately out from the rear entrance with flower beds and a cobbled patio, and there is a decked seating area that provides a superb vantage point to enjoy the far-reaching views over young woodland and the valley beyond. To the front and west side of the property there is another lawned garden with flower beds and chipped slate beds while the pebbled driveway curves around from the road, providing access to the three garages (which could also have potential for development/conversion) and the partitioned office building, which provides two office rooms that have lights, electric and enjoy views over the valley. The sloping field to the rear contains approximately 1400 mixed indigenous trees, including oak, beech and sycamore.
Location -
High Friarside Farm House is situated off the B6310 / Front Street, on the west side of Burnopfield village - between Newcastle and Durham - within a third of a mile of the local Co-Op Food Store and the Community Centre, and within easy reach of the other shops and amenities in Burnopfield, which include a primary school, a doctor's practice and a pharmacy. There are further shops and facilities at the other end of the village while it is just under 2 miles from Rowlands Gill village and 8.5 miles from Newcastle, with links to the A692, A694 and further to the A1(M) and within easy reach of the Metro Centre. There are local countryside walks and cycle routes, including the Derwent Valley Red Kite trail, while the popular National Trust grounds of Gibside are 1.9 miles down the road.
IMPORTANT NOTE TO POTENTIAL PURCHASERS:
We endeavour to make our particulars accurate and reliable, however, they do not constitute or form part of an offer or any contract and none is to be relied upon as statements of representation or fact. The services, systems and appliances listed in this specification have not been tested by us and no guarantee as to their operating ability or efficiency is given. All photographs and measurements have been taken as a guide only and are not precise. Floor plans where included are not to scale and accuracy is not guaranteed. If you require clarification or further information on any points, please contact us, especially if you are travelling some distance to view. Fixtures and fittings other than those mentioned are to be agreed with the seller.
High Friarside Farm House, Burnopfield, Durham, NE16
Additional Information
-
Property refQRW250093
-
EPCE
-
TenureFreehold
-
Council TaxE
-
Local authorityDurham Council
Similar properties for sale by Your Move Rowlands Gill
The pin shows the exact address of the property
Energy Efficiency Rating
Very energy efficient - lower running costs
Not energy efficient - higher running costs
Current
47Potential
78CO2 Rating
Very energy efficient - lower running costs
Not energy efficient - higher running costs
