This calculator provides a guide to the amount of residential stamp duty you may pay and does not guarantee this will be the actual cost. This calculation is based on the Stamp Duty Land Tax Rates for residential properties purchased from 23rd September 2022 and second homes from 31st October 2024. For more information on Stamp Duty Land Tax, click here.
3 bedroom Detached House for sale, Lee Hill Court, Lanchester, Durham, DH7
Features and Description
- Three Bedroom Detached House
- Village Location
- No Onward Chain
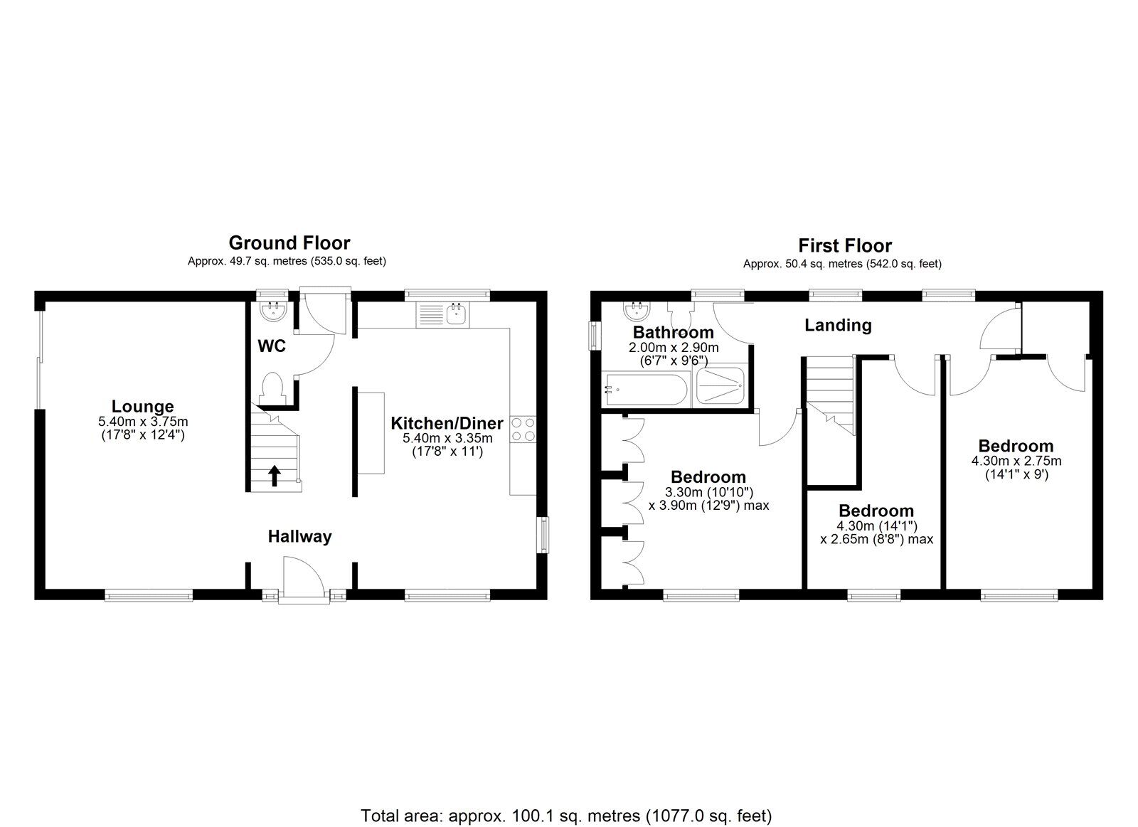
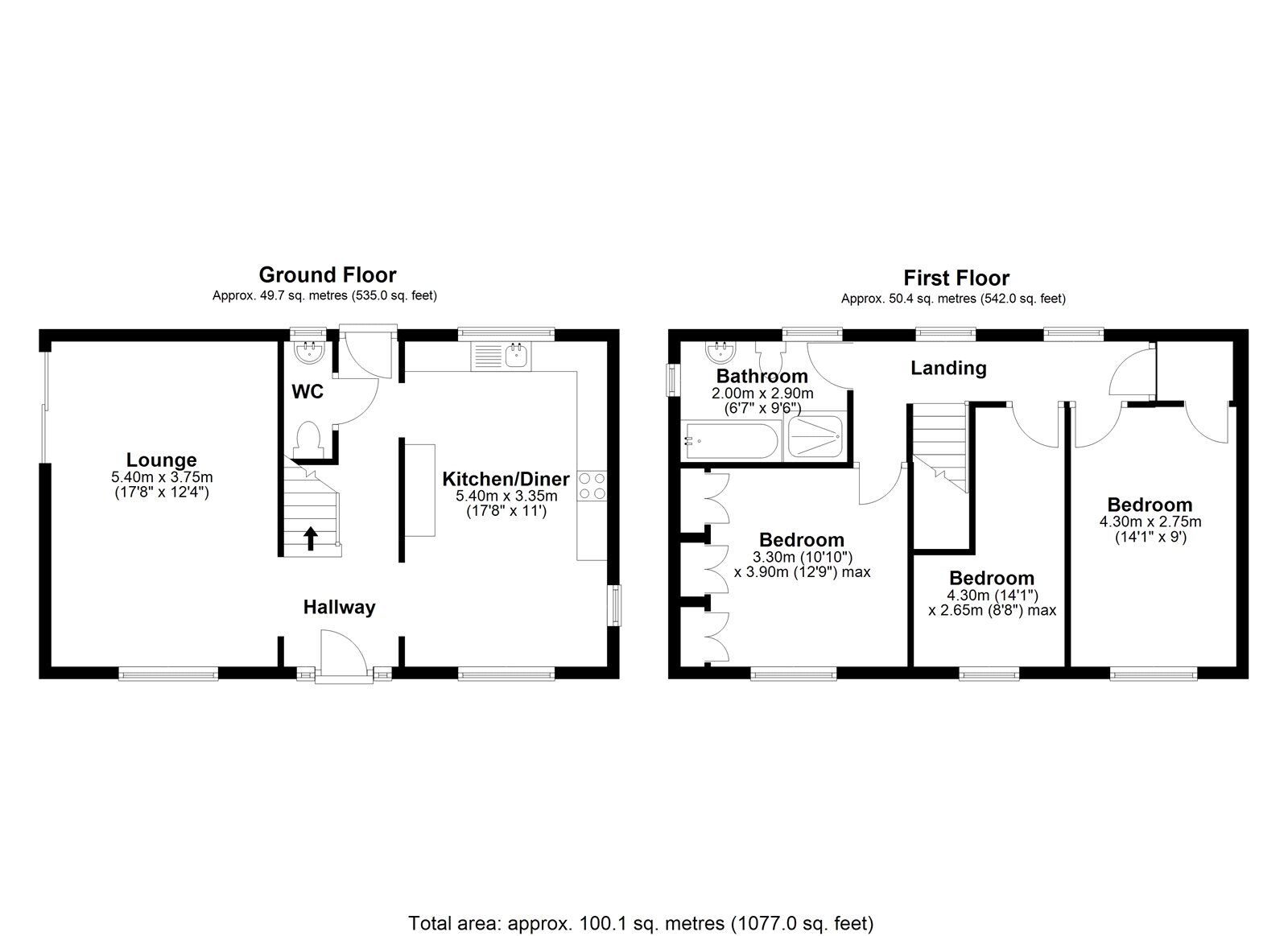
- Approximate Floor Area 100 Sq Mtrs/ 1076 Sq Ft.
- Council Tax Band E
- EPC Rating D
This charming three-bedroom detached property is nestled in a peaceful village location, offering a perfect blend of rural tranquillity and modern living. Boasting spacious interiors, including a large living room, well-appointed kitchen, and generously sized bedrooms, this home provides plenty of room for family life. Additionally, the property is offered to the market with no onward chain and a viewings comes with our highest recommendation.
Internally, the property briefly comprises of an entrance hallway, a spacious lounge with media wall and patio door that lead on to the garden, an impressive kitchen/diner with contemporary fitted shaker style kitchen and the downstairs is completed with a WC. Upstairs is a modern bathroom with separate bath and walk-in shower and three well-proportioned bedrooms which all benefit from integral wardrobes and storage.
Externally to the rear of the property is a delightful garden with a lawn multiple seating areas to enjoy. To the front and side is a smaller garden area and off road parking via the double driveway and substantial garage which measures at approximately 10.70m x 2.65m and this can be accessed via an external door and electric roller garage door.
Lee Hill Court is a pleasant development located within the village of Lanchester. The villages many amenities that include convenience stores, bars and restaurants are all within walking distance of the property. There are also two primary schools and a secondary school in Lanchester and excellent transport links are provided via the A691 highway with the city of Durham being only 7 miles away.
IMPORTANT NOTE TO POTENTIAL PURCHASERS:
We endeavour to make our particulars accurate and reliable, however, they do not constitute or form part of an offer or any contract and none is to be relied upon as statements of representation or fact. The services, systems and appliances listed in this specification have not been tested by us and no guarantee as to their operating ability or efficiency is given. All photographs and measurements have been taken as a guide only and are not precise. Floor plans where included are not to scale and accuracy is not guaranteed. If you require clarification or further information on any points, please contact us, especially if you are travelling some distance to view. Fixtures and fittings other than those mentioned are to be agreed with the seller.
Lee Hill Court, Lanchester, Durham, DH7
 
        Additional Information
- 
                    Property refQCO250107
- 
                    EPCD
- 
                    TenureFreehold
- 
                    Council TaxE
- 
                    Local authorityDurham County Council
 
         
         
         
         
         
         
         
         
         
         
         
         
         
         
         
         
         
         
        The pin shows the exact address of the property
Energy Efficiency Rating
Very energy efficient - lower running costs
Not energy efficient - higher running costs
Current
67Potential
80CO2 Rating
Very energy efficient - lower running costs
Not energy efficient - higher running costs

 
         
         
         
         
         
         
        