This calculator provides a guide to the amount of residential stamp duty you may pay and does not guarantee this will be the actual cost. This calculation is based on the Stamp Duty Land Tax Rates for residential properties purchased from 23rd September 2022 and second homes from 31st October 2024. For more information on Stamp Duty Land Tax, click here.
4 bedroom Detached House for sale, Longdean Park, Chester Le Street, Durham, DH3
Features and Description
- Four Bedroom Detached House
- Large Rear Garden With Patio And Lawn
- Large Driveway And Double Garage
- Durham County Council, Band F
- EPC Band C
- Approx. 160sqm/1722sqft Accommodation
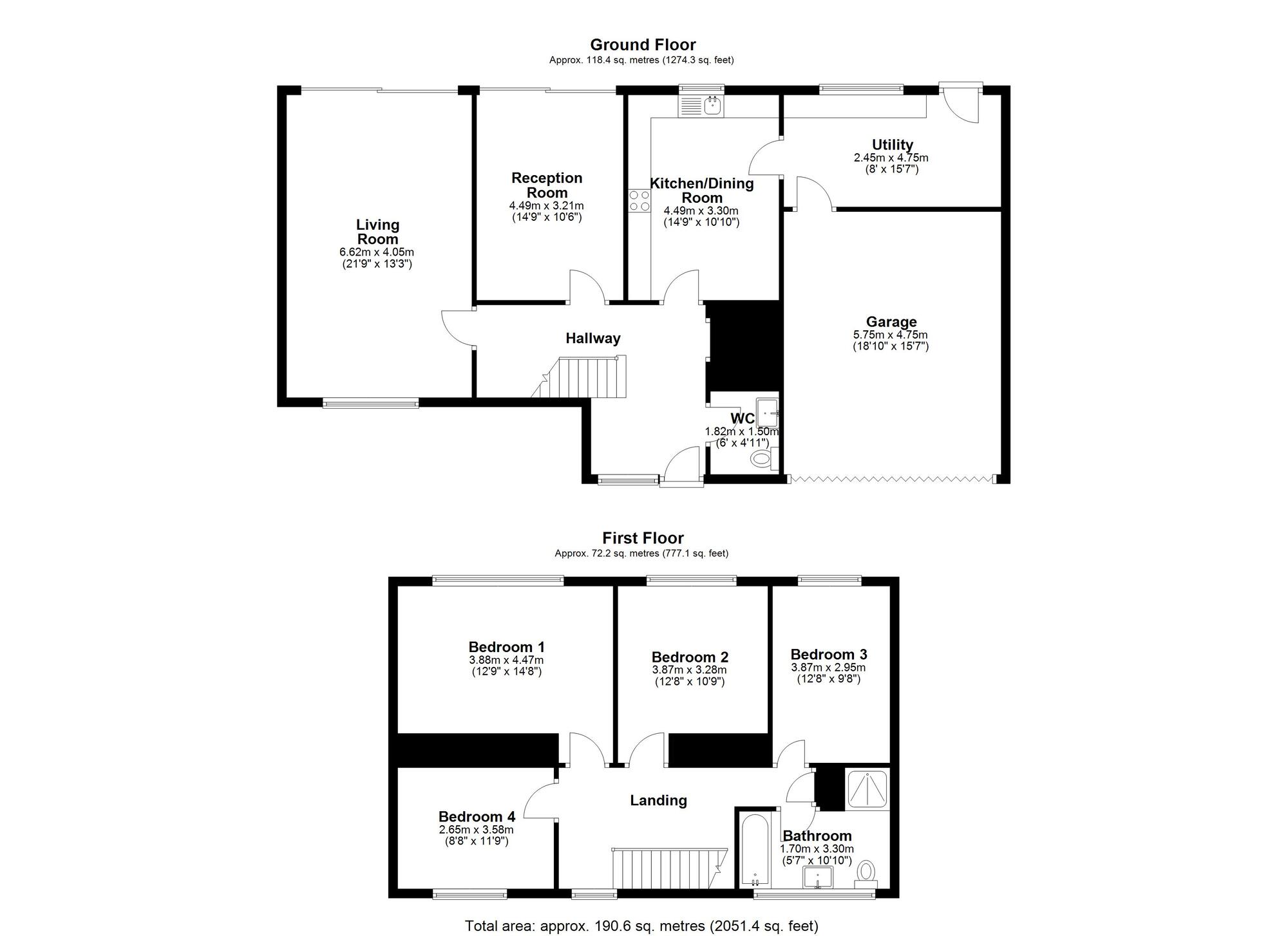
This attractive and well-maintained four bedroom detached home offers generous, well-proportioned accommodation throughout, perfectly suited to modern family living. Offered to the market for the first time since being purchased as a new build, this freehold property also benefits from an EPC rating of C and falls within council tax band F.
The ground floor provides excellent versatility, featuring a spacious main living room ideal for relaxation, complemented by a second reception room which can be adapted to suit a variety of needs such as a home office, playroom or formal dining space. The impressive kitchen/dining room forms the heart of the home, offering ample space for both everyday living and entertaining, and is further enhanced by a separate utility room with access to the rear garden and integral garage. A convenient downstairs WC completes the ground floor.
Upstairs, the property continues to impress with three well-proportioned double bedrooms and a further single bedroom. The principal and second bedrooms both benefit from fitted wardrobes, while a stylish four piece family bathroom serves the accommodation.
Occupying a prime position within the sought-after Longdean Park estate, the property enjoys a particularly appealing setting with open, non-overlooked views across countryside to the rear and an attractive outlook along the street to the front. The home also offers excellent potential for extension or remodelling, subject to the necessary planning permissions, allowing buyers to further enhance and personalise the space.
Externally, the generous rear garden features a combination of patio and lawned areas, creating an ideal space for outdoor dining and entertaining. To the front, a well-kept lawned garden is complemented by a substantial driveway providing ample off-street parking and access to the double garage.
AGENTS NOTE: Probate has been applied for but not yet granted.
IMPORTANT NOTE TO POTENTIAL PURCHASERS:
We endeavour to make our particulars accurate and reliable, however, they do not constitute or form part of an offer or any contract and none is to be relied upon as statements of representation or fact. The services, systems and appliances listed in this specification have not been tested by us and no guarantee as to their operating ability or efficiency is given. All photographs and measurements have been taken as a guide only and are not precise. Floor plans where included are not to scale and accuracy is not guaranteed. If you require clarification or further information on any points, please contact us, especially if you are travelling some distance to view. Fixtures and fittings other than those mentioned are to be agreed with the seller.
Longdean Park, Chester Le Street, Durham, DH3
Additional Information
-
Property refQCT260157
-
EPCC
-
TenureFreehold
-
Council TaxF
-
Local authorityDurham County Council
Similar properties for sale by Your Move Chester-le-Street
The pin shows the exact address of the property
Energy Efficiency Rating
Very energy efficient - lower running costs
Not energy efficient - higher running costs
Current
70Potential
80CO2 Rating
Very energy efficient - lower running costs
Not energy efficient - higher running costs
