This calculator provides a guide to the amount of residential stamp duty you may pay and does not guarantee this will be the actual cost. This calculation is based on the Stamp Duty Land Tax Rates for residential properties purchased from 23rd September 2022 and second homes from 31st October 2024. For more information on Stamp Duty Land Tax, click here.

















Detached Land/Plot for sale, Northwood End Road, Haynes, Bedfordshire, MK45
Features and Description
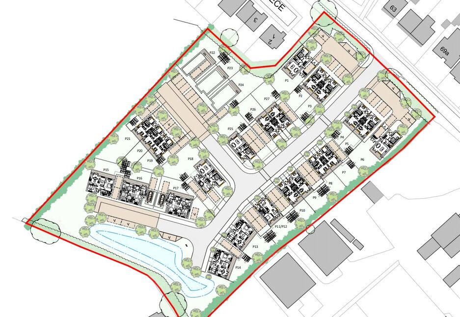
- Choice Of Three Self Build Plots
- Situated On A Brand New Village Development
- In the Sought After South Beds Village of Haynes
- Prices Range From Offers Over £240,000 And £250,000
- Access To Local School, Pub/Restaurant And Shop
- Good Transport Links
- Lovely Tranquil Village Position
- Plot Passport Design Codes Available Upon Request
Each Self-Build Plot will be provided with electric, water and drainage connections at the site boundary nearest the new road to be developed to serve the site. The design and construction of the Self-Build Plots will be a matter for the Self-Builders, and they will be responsible for making connections to and extending the utilities and services provided to appropriate points within the plot as appropriate for their design, subject to first obtaining Planning Permission.
Plot 22, the larger of the three plots is available to buy at an asking price of £190,000, where as plots 22 and 23 being smaller plots are available at an asking price of £188,333 each plot. Or you could buy all three at a price of £566,666.
Plot Passports Design Codes - The plot passport document provides potential purchasers with clear and concise summary of the design parameters for a specific plot, including details such as the specific location, plot size (m2), numbers of storeys and bedrooms, ridge height, what car parking is required, and where services will enter the plot. It provides everything for an architect preparing a planning submission.
The Passport aims to provide a guide to ensure that the new homes built on the self-build plots, whilst designs may be unique to the self-builders, are also consistent with the scale of the other homes on the development and that they complement the wider development. The Passport also suggests materials, including bricks, roof tiles and windows. All designs will however be subject to planning approval and for the Self Builder to agree with Central Bedfordshire Council as part of their planning application. The Design Code encourages the houses to be of high quality and to blend into the existing street scene. More detailed information regarding water, gas and electricity supply locations will be available further into the build process.
Planning - Application for the development of the whole site was made under Application - CB/22/02399/REG3 More detailed information about the development including reports on topography, soil conditions and drainage can be found on the CBC Planning Portal on the link: https://cbc.aifusion.io/planning/publicViewer.html?caseID=CB/22/02399/REG3 The principle of development of new homes on the Self-Build Plots has been approved. The detailed design of what is to be built, along with technical specifications and materials, will need to be submitted by the Self-Builder to the Planning Authority, Central Bedfordshire Council, and Building Control. It should not be necessary to submit a wide range of surveys and reports relating to the whole site as these have already been submitted by New Vista Homes as part of the process to obtain planning permission for the whole site.
A yearly service charge will be payable to a management company on each of the plots but the cost of this is yet to be determined.
Location
The site of these plots is tucked away off of North Wood End Road on a brand new development in the sought after historic village of Haynes. Haynes is a small village offers you access to a local primary school and falls within the Samuel Whitbread Academy school catchment. There is a lovely old pub/restaurant called The Greyhound, it has local shop, a post office and a village hall. You also have access to Swiss Gardens, the Shuttleworh Collection and Summerfields Miniature Model Railway. For commuting the A603 will take you out to Hitchin, you have access to the A6 down to Luton from the neighbouring village of Wilstead or you can pick up the A421 bypass at Shortstown with it's A1 and M1 access.
IMPORTANT NOTE TO POTENTIAL PURCHASERS:
We endeavour to make our particulars accurate and reliable, however, they do not constitute or form part of an offer or any contract and none is to be relied upon as statements of representation or fact. The services, systems and appliances listed in this specification have not been tested by us and no guarantee as to their operating ability or efficiency is given. All photographs and measurements have been taken as a guide only and are not precise. Floor plans where included are not to scale and accuracy is not guaranteed. If you require clarification or further information on any points, please contact us, especially if you are travelling some distance to view. Fixtures and fittings other than those mentioned are to be agreed with the seller.
Northwood End Road, Haynes, Bedfordshire, MK45

Additional Information
-
Property refBED250095
-
TenureFreehold
-
Council TaxNA
-
Local authorityCentral Bedfordshire Council


















The pin shows the exact address of the property
Energy Efficiency Rating
Very energy efficient - lower running costs
Not energy efficient - higher running costs
Current
N/APotential
N/ACO2 Rating
Very energy efficient - lower running costs
Not energy efficient - higher running costs