This calculator provides a guide to the amount of residential stamp duty you may pay and does not guarantee this will be the actual cost. This calculation is based on the Stamp Duty Land Tax Rates for residential properties purchased from 23rd September 2022 and second homes from 31st October 2024. For more information on Stamp Duty Land Tax, click here.
3 bedroom Detached House for sale, Primrose Drive, Burbage, Leicestershire, LE10
Features and Description
- Extended Detached House
- Large Gardens
- Three Double Bedrooms
- Highly Sought After Location
- Three Spacious Reception Rooms
- Newly Fitted Bathroom Suites
- Conservatory To Rear
- Modern Fitted Kitchen
- Viewing Strongly Recommended
All things bright and beautiful in this extended detached home sitting on a large corner plot in this much sought after location close to the heart of Burbage. Benefiting from newly fitted bathroom suites, modern kitchen with integrated appliances and large conservatory are just some of the things that make this home stand out. with considerable scope for further extension should even more space be required. This spacious and beautifully presented home is sure to be very popular so hurry to reserve your viewing.
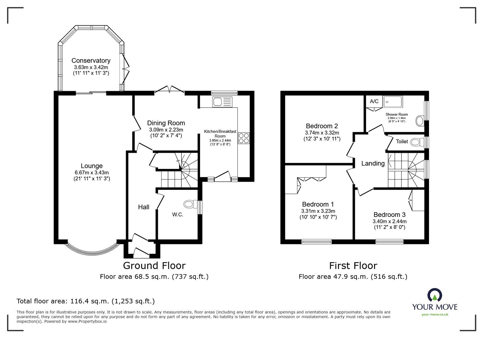
Property
Accommodation comprises Entrance Porch, Entrance Hall, Lounge, Dining Room, Conservatory, Breakfast Kitchen, Cloakroom/WC, Landing, Bedroom One, Bedroom Two, Bedroom Three, Family Bathroom and Separate WC. Externally the property has a long Drive and garden to front leading to the integral Garage with access to side leading to the large mature Garden to rear.
Entrance Porch
2'12" x 3'1" (0.91m x 0.93m)
Entrance Hall
11'4" x 3'10" (3.46m x 1.17m)
Lounge
21'11" x 11'3" (6.67m x 3.43m)
Dining Room
10'2" x 7'4" (3.09m x 2.23m)
Conservatory
11'3" x 11'11" (3.42m x 3.63m)
Breakfast Kitchen
12'12" x 8'0" (3.95m x 2.44m)
Cloakroom / WC
3'11" x 7'2" (1.20m x 2.19m)
Landing
11'2" x 8'7" (3.41m x 2.62m)
Bedroom 1
10'7" x 10'6" (3.23m x 3.21m)
Bedroom 2
10'11" x 12'3" (3.32m x 3.74m)
Bedroom 3
8'0" x 11'2" (2.44m x 3.40m)
Family Bathroom
9'5" x 4'10" (2.86m x 1.48m)
Seperate WC
5'10" x 2'6" (1.79m x 0.76m)
IMPORTANT NOTE TO POTENTIAL PURCHASERS:
We endeavour to make our particulars accurate and reliable, however, they do not constitute or form part of an offer or any contract and none is to be relied upon as statements of representation or fact. The services, systems and appliances listed in this specification have not been tested by us and no guarantee as to their operating ability or efficiency is given. All photographs and measurements have been taken as a guide only and are not precise. Floor plans where included are not to scale and accuracy is not guaranteed. If you require clarification or further information on any points, please contact us, especially if you are travelling some distance to view. Fixtures and fittings other than those mentioned are to be agreed with the seller.
Primrose Drive, Burbage, Leicestershire, LE10
Additional Information
-
Property refHIN250450
-
EPCD
-
TenureFreehold
-
Council TaxC
-
Local authorityHinckley & Bosworth Borough Council
The pin shows the exact address of the property
Energy Efficiency Rating
Very energy efficient - lower running costs
Not energy efficient - higher running costs
Current
65Potential
75CO2 Rating
Very energy efficient - lower running costs
Not energy efficient - higher running costs
