This calculator provides a guide to the amount of residential stamp duty you may pay and does not guarantee this will be the actual cost. This calculation is based on the Stamp Duty Land Tax Rates for residential properties purchased from 23rd September 2022 and second homes from 31st October 2024. For more information on Stamp Duty Land Tax, click here.
2 bedroom Detached House for sale, Worsley Road, Swinton, Greater Manchester, M27
Features and Description
***TWO BEDROOM DETACHED HOME WITH PARKING***FREEHOLD***£5,000 deposit contribution (subject to terms & conditions)***
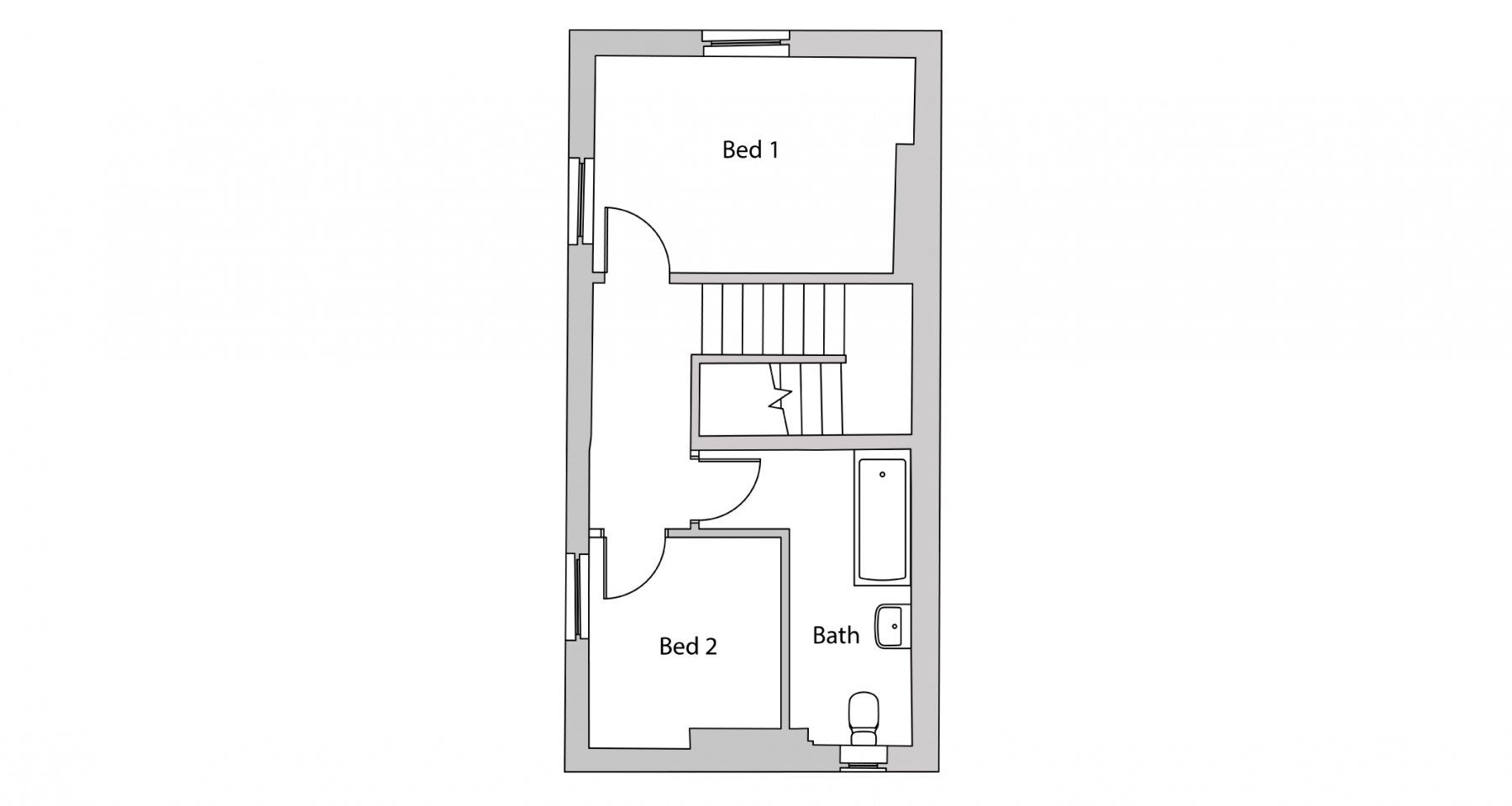
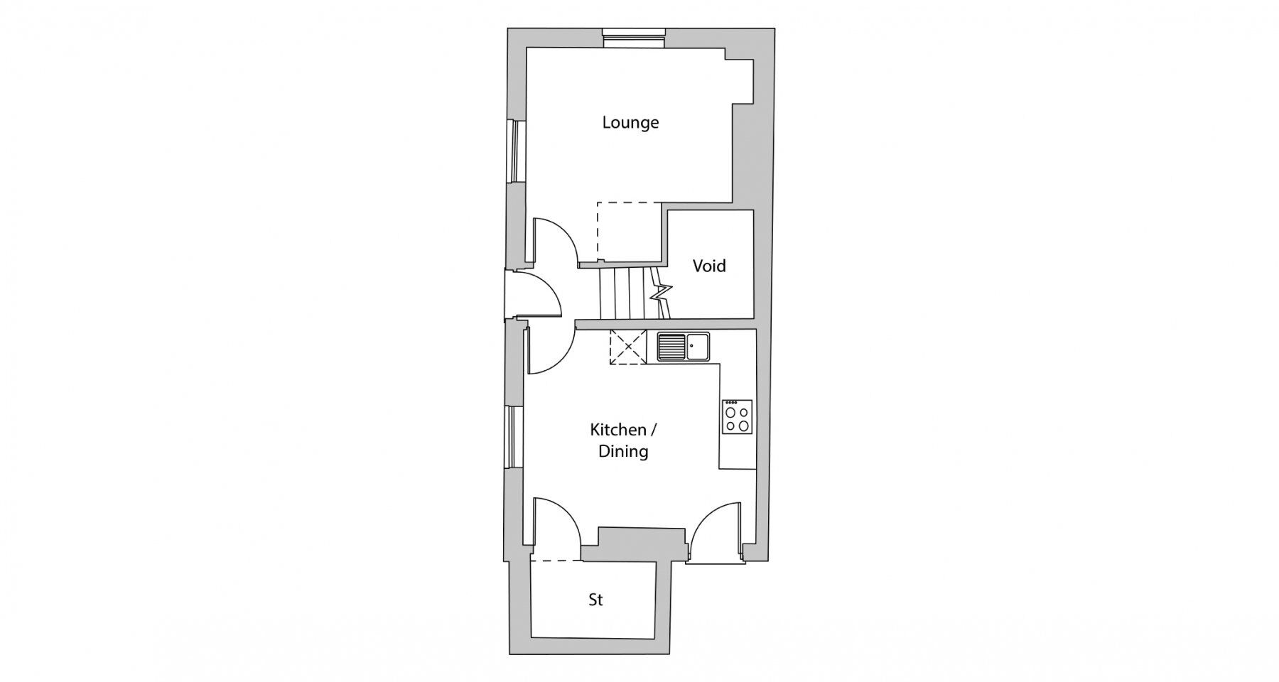
Situated on the new development of Birchfield Court, we are pleased to offer this two bedroom detached home for sale. The home briefly comprises of entrance hallway, a kitchen/ diner, lounge, two bedrooms and a family bathroom. The home will include; carpeting and vinyl and landscaped garden
Nestled in the popular area of Swinton which is home to several pubs, wine bars and restaurants, all within walking distance of Birchfield Court including Albert’s and Siena. Monton Village is a mile away offering a range of restaurants and cocktail bars along the high street. Just 3 miles away sits the picturesque leafy suburb of Worsley which offers fantastic dining experiences, to name a few, George’s Dining and Worsley Old Hall. Easily accessible supermarkets are Morrisons and Aldi and Swinton Square shopping centre also offering a wealth of famous high street retailers, banks, coffee houses and cafés as well as fantastic independent shops. The Town Centre is also home to the exciting new £5 million community hub, Swinton Gateway, housing an impressive library, council, health and children’s services, as well as local NHS services.
Lounge
12'11" x 12'2" (3.93m x 3.71m)
Kitchen / Diner
13'3" x 12'3" (4.04m x 3.74m)
Bedroom 1
13'1" x 8'10" (3.98m x 2.68m)
Bedroom 2
8'7" x 7'10" (2.62m x 2.39m)
Bathroom
12'1" x 4'11" (3.68m x 1.51m)
IMPORTANT NOTE TO POTENTIAL PURCHASERS:
We endeavour to make our particulars accurate and reliable, however, they do not constitute or form part of an offer or any contract and none is to be relied upon as statements of representation or fact. The services, systems and appliances listed in this specification have not been tested by us and no guarantee as to their operating ability or efficiency is given. All photographs and measurements have been taken as a guide only and are not precise. Floor plans where included are not to scale and accuracy is not guaranteed. If you require clarification or further information on any points, please contact us, especially if you are travelling some distance to view. Fixtures and fittings other than those mentioned are to be agreed with the seller.
Worsley Road, Swinton, Greater Manchester, M27
The pin shows the exact address of the property
Energy Efficiency Rating
Very energy efficient - lower running costs
Not energy efficient - higher running costs
Current
N/APotential
N/ACO2 Rating
Very energy efficient - lower running costs
Not energy efficient - higher running costs
