This calculator provides a guide to the amount of residential stamp duty you may pay and does not guarantee this will be the actual cost. This calculation is based on the Stamp Duty Land Tax Rates for residential properties purchased from 23rd September 2022 and second homes from 31st October 2024. For more information on Stamp Duty Land Tax, click here.
2 bedroom End Terrace House for sale, Bargate Road, Belper, Derbyshire, DE56
Features and Description
- POPULAR LOCATION
- VERY WELL PRESENTED PERIOD PROPERTY
- MODERN KITCHEN AND BATHROOM
- GROUND FLOOR WC
- SHORT DRIVE FROM TOWN CENTRE
- WALKING DISTANCE TO LOCAL SCHOOL
- ENCLOSED REAR GARDEN
- EARLY VIEWING HIGHLY RECOMMENDED
This well-presented property offers attractive accommodation throughout and enjoys pleasant views to the rear. The accommodation briefly comprises a well-appointed lounge with feature log burner, a light and spacious dining room with useful under-stairs storage, and a modern fitted kitchen overlooking the rear garden. Additional ground floor accommodation includes a WC.
To the first floor are a master bedroom with in-built store cupboard, a well-proportioned large single bedroom which enjoys some of the best views from the property, and a smart family bathroom fitted with a shower.
The front garden is designed for low maintenance, laid mainly to gravel and providing access to the front entrance door. The rear garden features a decked seating area, a well-maintained lawn and a useful storage shed.
A wide range of amenities, including shops, pubs and restaurants, are located within walking distance, as are the main bus and train stations. The local primary school is also a short walk away, along with several convenient public transport links.
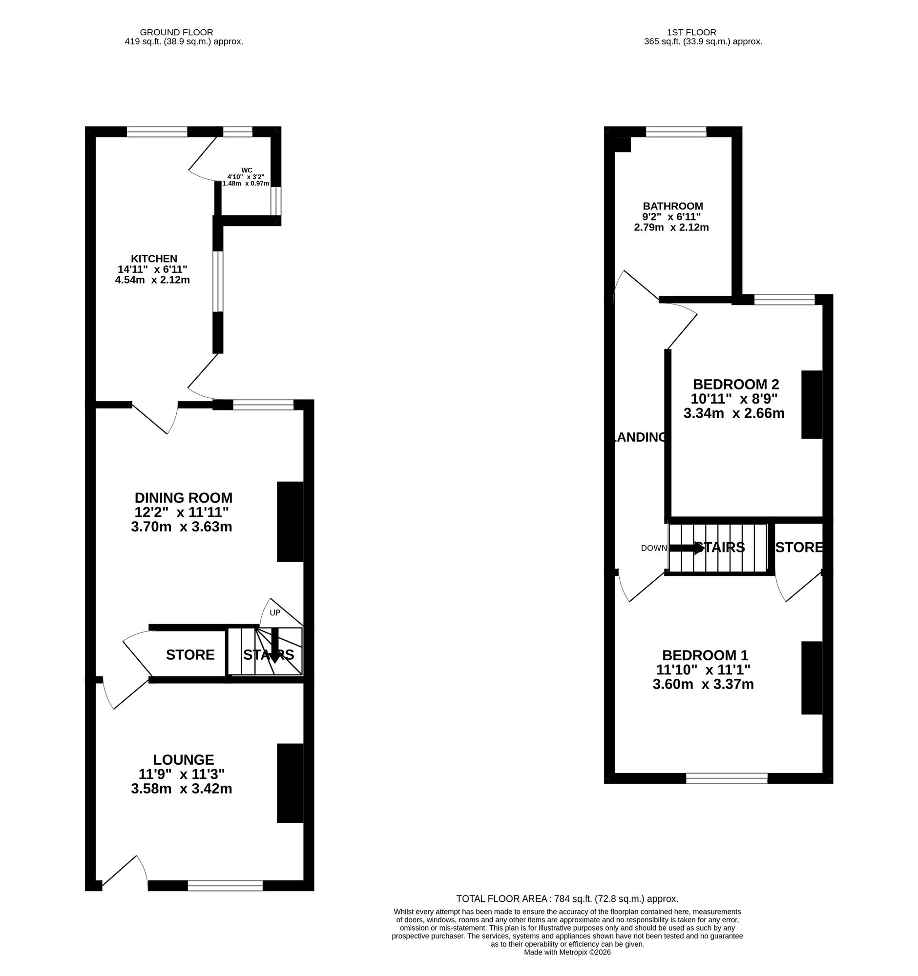
Lounge
11'3" x 11'9" (3.43m x 3.58m)
A well-appointed and welcoming reception room featuring a decorative log burner (feature only) as an attractive focal point. The room is finished with fitted carpet and neutral décor and benefits from a central heating radiator, television point, a front-facing UPVC double-glazed window, and a front-facing external door, providing good natural light and access.
Dining Room
12'2" x 11'11" (3.70m x 3.63m)
A well-proportioned reception room that provides a formal dining space. The room is finished with fitted carpet and benefits from a central heating radiator and a window providing natural light. There is also a useful under-stairs storage cupboard, and access through to the kitchen.
Kitchen
14'11" x 6'11" (4.54m x 2.12m)
Fitted with a range of wall and base units with complementary work surfaces and tiled splashbacks. The kitchen provides space and point for an oven and hob, along with an inset sink unit and space for additional appliances. Rear and side-facing UPVC double-glazed windows provides natural light, while a UPVC external door offers access to the rear garden. Finished with practical flooring and a central heating radiator, the kitchen offers a functional and well-laid-out workspace. Allowing access to the downstairs wc.
Downstairs Wc
Fitted with a low-level WC and wash hand basin. The room benefits from rear- and side-facing windows, allowing natural light and ventilation, and is finished in a contemporary style, providing a useful and convenient addition to the ground floor accommodation.
First Floor Landing
Allowing access to both bedrooms and family bathroom.
Bedroom 1
11'9" x 11'10" (3.57m x 3.60m)
A well-proportioned double bedroom. The room benefits from a front-facing UPVC double-glazed window, a central heating radiator, and features an exposed brick feature wall. The bedroom also includes a useful in-built store cupboard, providing additional storage.
Bedroom 2
10'11" x 8'9" (3.34m x 2.66m)
A single bedroom offering versatile accommodation suitable for a child’s bedroom, nursery, or home office. The room benefits from a rear-facing UPVC double-glazed window providing natural light and a central heating radiator.
Bathroom
9'2" x 6'11" (2.79m x 2.12m)
Stylish family bathroom, fitted with a panelled bath with shower over, low-level WC and wash hand basin. The room is finished with tiled-effect flooring and complementary wall tiling, and benefits from a rear-facing window providing natural light and ventilation.
External
A low maintenance and laid mainly to gravel fore garden. Providing access to the front external entrance door. A gated pathway to the side of the property leads through to the rear garden.Rear garden, enclosed and arranged over multiple levels, featuring a paved seating area, steps leading to a lawned section, and a timber storage shed positioned to the rear. The garden offers a good balance of outdoor space and usability, suitable for seating, play, or gardening.
IMPORTANT NOTE TO POTENTIAL PURCHASERS:
We endeavour to make our particulars accurate and reliable, however, they do not constitute or form part of an offer or any contract and none is to be relied upon as statements of representation or fact. The services, systems and appliances listed in this specification have not been tested by us and no guarantee as to their operating ability or efficiency is given. All photographs and measurements have been taken as a guide only and are not precise. Floor plans where included are not to scale and accuracy is not guaranteed. If you require clarification or further information on any points, please contact us, especially if you are travelling some distance to view. Fixtures and fittings other than those mentioned are to be agreed with the seller.
Bargate Road, Belper, Derbyshire, DE56
Additional Information
-
Property refQBP250330
-
EPCD
-
Council TaxA
-
Local authorityAmber Valley Borough Council
The pin shows the exact address of the property
Energy Efficiency Rating
Very energy efficient - lower running costs
Not energy efficient - higher running costs
Current
63Potential
85CO2 Rating
Very energy efficient - lower running costs
Not energy efficient - higher running costs
