This calculator provides a guide to the amount of residential stamp duty you may pay and does not guarantee this will be the actual cost. This calculation is based on the Stamp Duty Land Tax Rates for residential properties purchased from 23rd September 2022 and second homes from 31st October 2024. For more information on Stamp Duty Land Tax, click here.
3 bedroom End Terrace House for sale, Mayville Road, Leytonstone, London, E11
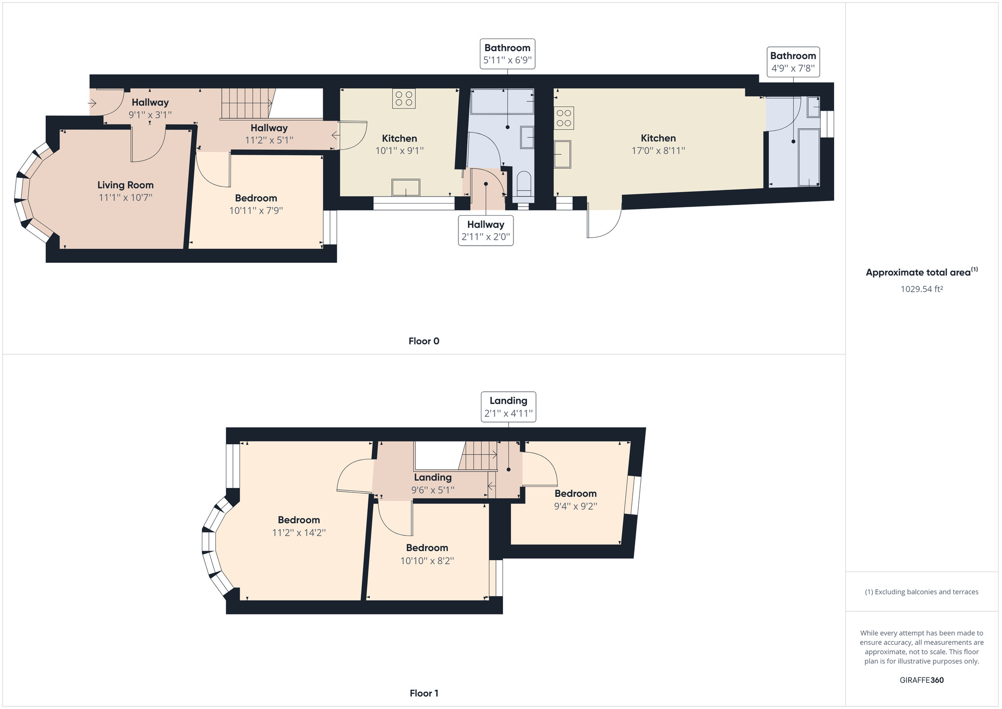
Features and Description
- EPC Rating D
- Victorian House
- Laminate Flooring
- Large Rear Extension
- Large Rear Garden
- Ideal Location
- Current Tenancy In Place
- Annual Rental Income £24,000
An exceptional, three bedroom, end of terrace Victorian find. This immaculately extended home offers over 1000 square feet of lush living space spread over two floors. Close to great transport links are a short walk away including the local train station.
You're on a quiet residential street, in a sought-after locale bordering Leyton, Leytonstone and Wanstead flats.
** Lettings and management service **
Your Move offer Landlords a professional, ARLA accredited, lettings and management service. Please contact our lettings team for more information.
Council Tax Band C
IMPORTANT NOTE TO POTENTIAL PURCHASERS:
We endeavour to make our particulars accurate and reliable, however, they do not constitute or form part of an offer or any contract and none is to be relied upon as statements of representation or fact. The services, systems and appliances listed in this specification have not been tested by us and no guarantee as to their operating ability or efficiency is given. All photographs and measurements have been taken as a guide only and are not precise. Floor plans where included are not to scale and accuracy is not guaranteed. If you require clarification or further information on any points, please contact us, especially if you are travelling some distance to view. Fixtures and fittings other than those mentioned are to be agreed with the seller.
Mayville Road, Leytonstone, London, E11
Additional Information
-
Property refWLT230170
-
EPCD
-
TenureFreehold
-
Council TaxC
-
Local authorityWaltham Forest Council
Similar properties for sale by Your Move Walthamstow
The pin shows the exact address of the property
Energy Efficiency Rating
Very energy efficient - lower running costs
Not energy efficient - higher running costs
Current
64Potential
85CO2 Rating
Very energy efficient - lower running costs
Not energy efficient - higher running costs
