This calculator provides a guide to the amount of residential stamp duty you may pay and does not guarantee this will be the actual cost. This calculation is based on the Stamp Duty Land Tax Rates for residential properties purchased from 23rd September 2022 and second homes from 31st October 2024. For more information on Stamp Duty Land Tax, click here.
2 bedroom Flat for sale, High Street, Whitton, Twickenham, TW2
Features and Description
- 1st Floor Purpose Built Flat
- 2 Double Bedrooms
- No Forward Chain
- Lease In Excess Of 160 Years
- Central Whitton Location
- Ideal First Time Buy/Investment
- Close To Whitton High Street & Station
- Secure Entryphone System
CITY LIVING WITH A VILLAGE FEEL & OFFERED WITH NO CHAIN. Super spacious, lovely and light this two double bedroom apartment is just right. Located right upon sought after Whitton High Street, which has a large selection of restaurants, cafes and boutique shops for your convenience. The town is fast becoming a commuters favourite as it offers direct, speedy train links to the City in under 30 minutes. The apartment has 2 double bedrooms, a modern bathroom, separate fitted kitchen and large reception room with ample room to lounge and dine. Lease currently 162 years expires 13/09/2188, ground rent £200 PA, service charge £1497.22 PA. Council Tax Band C. EPC Grade Band D.
Location
The property is situated in Whitton High Street with a wide range of shops for your convenience & Whitton mainline Station which serves London Waterloo on the fast services in less than 30 minutes. The local Infant and Junior Schools are Chase Bridge, Nelson, Bishop Perrin, St Edmunds and Heathfields. The local secondary School would be Twickenham Academy & The Richmond Upon Thames. Other benefits are local bus routes including the H22. 281,110 and 481. Whitton also benefits from several parks and open spaces including Crane Park, Murray Park and Powder Mill Lane recreation park.
Tenure / Charges
Lease currently 162 years expires 13/09/2188, ground rent £200 PA, service charge £1497.22 PA.
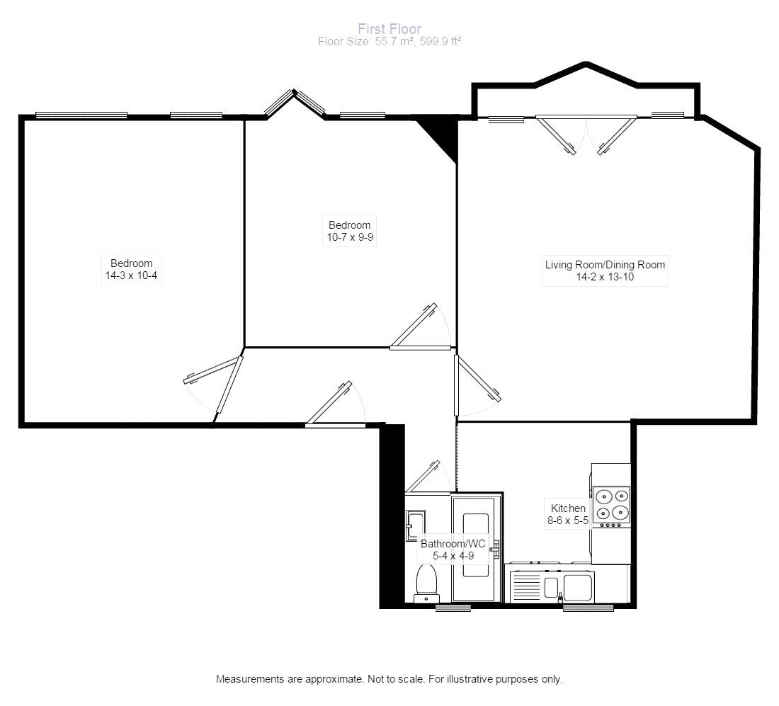
Living / Dining Room
14'2" x 13'10" (4.32m x 4.22m)
Kitchen
8'6" x 5'5" (2.60m x 1.65m)
Bedroom 1
14'3" x 10'4" (4.34m x 3.15m)
Bedroom 2
10'7" x 9'9" (3.23m x 2.97m)
Bathroom / WC
5'4" x 4'9" (1.63m x 1.45m)
IMPORTANT NOTE TO POTENTIAL PURCHASERS:
We endeavour to make our particulars accurate and reliable, however, they do not constitute or form part of an offer or any contract and none is to be relied upon as statements of representation or fact. The services, systems and appliances listed in this specification have not been tested by us and no guarantee as to their operating ability or efficiency is given. All photographs and measurements have been taken as a guide only and are not precise. Floor plans where included are not to scale and accuracy is not guaranteed. If you require clarification or further information on any points, please contact us, especially if you are travelling some distance to view. Fixtures and fittings other than those mentioned are to be agreed with the seller.
High Street, Whitton, Twickenham, TW2
Additional Information
-
Property refWTT260005
-
EPCD
-
TenureLeasehold
-
Lease length162 years
-
Council TaxC
-
Local authorityRichmond Council
-
Ground Rent£200
-
Ground Rent ReviewContact the branch
-
Service Charge£1,497
The pin shows the exact address of the property
Energy Efficiency Rating
Very energy efficient - lower running costs
Not energy efficient - higher running costs
Current
64Potential
73CO2 Rating
Very energy efficient - lower running costs
Not energy efficient - higher running costs
