This calculator provides a guide to the amount of residential stamp duty you may pay and does not guarantee this will be the actual cost. This calculation is based on the Stamp Duty Land Tax Rates for residential properties purchased from 23rd September 2022 and second homes from 31st October 2024. For more information on Land and Buildings Transaction Tax, click here.
4 bedroom Flat for sale, Mayfield Gardens, Edinburgh, Midlothian, EH9
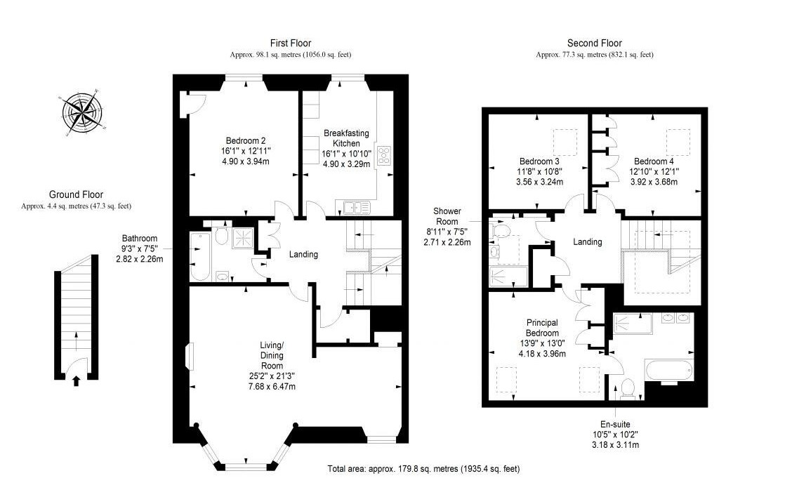
Features and Description
- Traditional double-upper villa
- Abundance of period features
- Living/dining room with plenty of natural light
- Four good sized bedrooms
- Two bathrooms / One shower room
- Contemporary dining kitchen
Set across the upper two levels of an attractive traditional terrace, this impressive double-upper villa delivers flexible, generously sized accommodation suited to modern family living or investment use. The property features four bedrooms and three bathrooms, complemented by bright, expansive reception spaces finished to a high standard, where contemporary comfort sits comfortably alongside retained period character.
Enjoying open outlooks towards Salisbury Crags, the home occupies a prime Southside position within easy reach of Newington’s cafés, shops and cultural amenities. The Meadows, Holyrood Park, the University of Edinburgh’s main campus and Cameron Toll Shopping Centre are all close at hand, ensuring excellent convenience and long-term appeal.
IMPORTANT NOTE TO POTENTIAL PURCHASERS:
We endeavour to make our particulars accurate and reliable, however, they do not constitute or form part of an offer or any contract and none is to be relied upon as statements of representation or fact. The services, systems and appliances listed in this specification have not been tested by us and no guarantee as to their operating ability or efficiency is given. All photographs and measurements have been taken as a guide only and are not precise. Floor plans where included are not to scale and accuracy is not guaranteed. If you require clarification or further information on any points, please contact us, especially if you are travelling some distance to view. Fixtures and fittings other than those mentioned are to be agreed with the seller.
Mayfield Gardens, Edinburgh, Midlothian, EH9
Additional Information
-
Property refLEI250336
-
EPCC
-
TenureFreehold
-
Council TaxE
-
Local authorityThe City Of Edinburgh Council
Similar properties for sale by Your Move Edinburgh
The pin shows the exact address of the property
Energy Efficiency Rating
Very energy efficient - lower running costs
Not energy efficient - higher running costs
Current
70Potential
77CO2 Rating
Very energy efficient - lower running costs
Not energy efficient - higher running costs
