This calculator provides a guide to the amount of residential stamp duty you may pay and does not guarantee this will be the actual cost. This calculation is based on the Stamp Duty Land Tax Rates for residential properties purchased from 23rd September 2022 and second homes from 31st October 2024. For more information on Stamp Duty Land Tax, click here.
2 bedroom Flat for sale, Regal Walk, Bexleyheath, DA6
Features and Description
- Two spacious double bedrooms
- Master bedroom with en-suite
- Open-plan kitchen design
- Abundant natural light
- Built-in wardrobes
- Parking facilities available
- Gym within building
- 24/7 concierge service
- Close to public transport
- EPC rating of 'B'
GUIDE PRICE £375,000 - £400,000
This immaculate top floor apartment, currently listed for sale, presents an exciting opportunity for first-time buyers and families alike. Boasting two spacious double bedrooms, two bathrooms, and one reception room, this property offers abundant space for comfortable living.
The master bedroom, a highlight of this property, comes equipped with built-in wardrobes and an en-suite, ensuring a private and well-organised space. The second bedroom, also a double, further enhances the property's appeal.
The open-plan kitchen, with its ample natural light, is an absolute delight. Designed with modern finishes and plenty of space, this kitchen can easily cater to all your culinary needs. Complementing the kitchen is the open-plan reception room, which is bathed in natural light from the large windows. This room provides a spacious yet cosy setting, making it an ideal space for entertaining or unwinding.
The property's unique features add to its allure, with the inclusion of an alocated parking space that allows for disabled owners as its a larger sized space, a gym within the building, and a 24/7 concierge service. Furthermore, the property's desirable location, close to public transport links and local amenities, makes it an attractive choice for those seeking convenience and accessibility. A large terrace space also accompanies the property which is accessible via the reception room. There is also the communal roof top space on offer if you wish to take friends and family up to see the fantastic views of the Kent county skyline.
With an EPC rating of 'B' and falling within council tax band 'D', this property not only promises a comfortable living environment but also efficiency and affordability. In summary, this flat, with its sought-after location and impressive features, is a perfect blend of modern living and convenience.
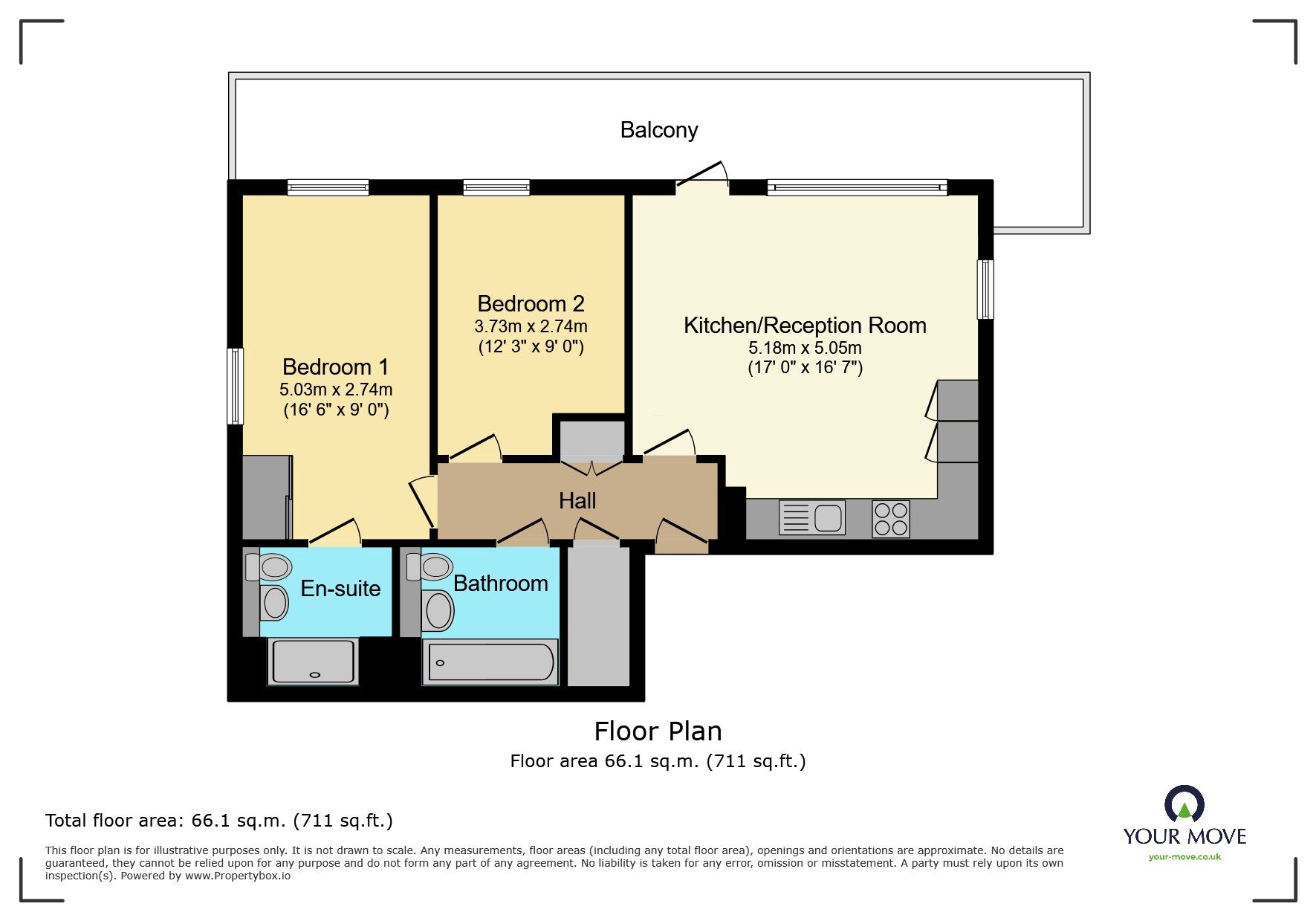
Open Plan Living / Kitchen Area
16'12" x 16'7" (5.18m x 5.05m)
Bedroom 1
16'6" x 8'12" (5.03m x 2.74m)
Bedroom 2
12'3" x 8'12" (3.73m x 2.74m)
IMPORTANT NOTE TO POTENTIAL PURCHASERS:
We endeavour to make our particulars accurate and reliable, however, they do not constitute or form part of an offer or any contract and none is to be relied upon as statements of representation or fact. The services, systems and appliances listed in this specification have not been tested by us and no guarantee as to their operating ability or efficiency is given. All photographs and measurements have been taken as a guide only and are not precise. Floor plans where included are not to scale and accuracy is not guaranteed. If you require clarification or further information on any points, please contact us, especially if you are travelling some distance to view. Fixtures and fittings other than those mentioned are to be agreed with the seller.
Regal Walk, Bexleyheath, DA6
Additional Information
-
Property refBEX250208
-
EPCB
-
TenureLeasehold
-
Lease length237 years
-
Council TaxD
-
Local authorityLondon Borough of Bexley
-
Ground Rent£432
-
Ground Rent ReviewContact the branch
-
Service Charge£2,000
Similar properties for sale by Your Move Bexleyheath
The pin shows the exact address of the property
Energy Efficiency Rating
Very energy efficient - lower running costs
Not energy efficient - higher running costs
Current
84Potential
84CO2 Rating
Very energy efficient - lower running costs
Not energy efficient - higher running costs
