2 bedroom Flat to rent, Dean Road, Hounslow, TW3
Available Part Furnished, from 22/11/2024
Features and Description
- Council Tax Band- C- Hounslow Council
- EPC Rating: D
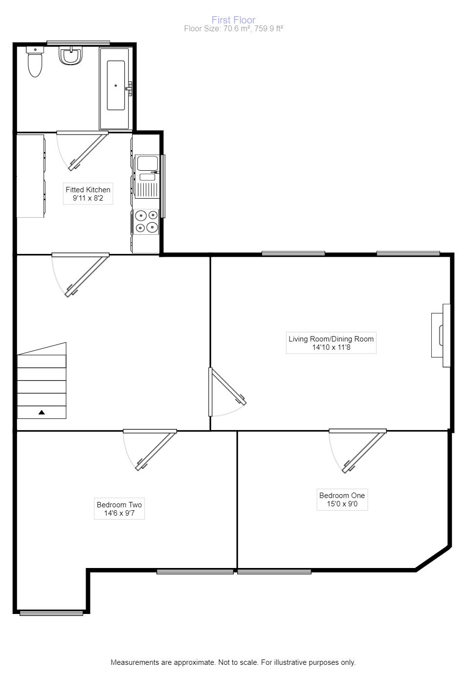
- First Floor Flat
- Two Double Bedrooms
- Walking Distance To Train Station
- On Road Parking
- Own Private Entrance
- Quiet Residential Road
- Separate Kitchen
WONDERFUL WHITTON BORDERS. Struggling to find a home which has location, character and space - this is the one. Two spacious double bedrooms, separate modern kitchen and bathroom and fantastically located for commuters. The living/dining room offers wonderful entertaining space, but when the guests have gone you can relax and unwind . What's not to love?! Available to make your home.
Location
The property is situated in a residential road on the Whitton borders and is walking distance to Hounslow and Whitton High Streets with a wide range of shops for your convenience and Whitton and Hounslow mainline Stations which serve London Waterloo. The property is also located in close proximity to Murray Park. The local Infant and Junior Schools are Chase Bridge and Chatsworth. The local secondary Schools would be the Richmond Upon Thames and Heathland. Another benefit is the local 24 hour bus route the 281.
Reception Room
14'10" x 11'8" (4.52m x 3.56m)
Kitchen
9'11" x 8'2" (3.02m x 2.50m)
Bedroom 1
14'12" x 8'12" (4.57m x 2.74m)
Bedroom 2
14'6" x 9'7" (4.42m x 2.92m)
IMPORTANT NOTE TO POTENTIAL RENTERS:
We endeavour to make our particulars accurate and reliable, however, they do not constitute or form part of an offer or any contract and none is to be relied upon as statements of representation or fact. The services, systems and appliances listed in this specification have not been tested by us and no guarantee as to their operating ability or efficiency is given. All photographs and measurements have been taken as a guide only and are not precise. Floor plans where included are not to scale and accuracy is not guaranteed. If you require clarification or further information on any points, please contact us, especially if you are travelling some distance to view.
All properties are available for a minimum length of time, with the exception of short term accommodation. Please contact the branch for details. A security deposit of at least one month’s rent is required. Rent is to be paid one month in advance. It is the tenant’s responsibility to insure any personal possessions. Payment of all utilities including water rates or metered supply and Council Tax is the responsibility of the tenant in every case.
Dean Road, Hounslow, TW3
The pin shows the exact address of the property
Energy Efficiency Rating
Very energy efficient - lower running costs
Not energy efficient - higher running costs
Current
67Potential
77CO2 Rating
Very energy efficient - lower running costs
Not energy efficient - higher running costs
