








1 bedroom Flat to rent, The Avenue, Sunderland, Tyne and Wear, SR2
Available Unfurnished, from 17/10/2025
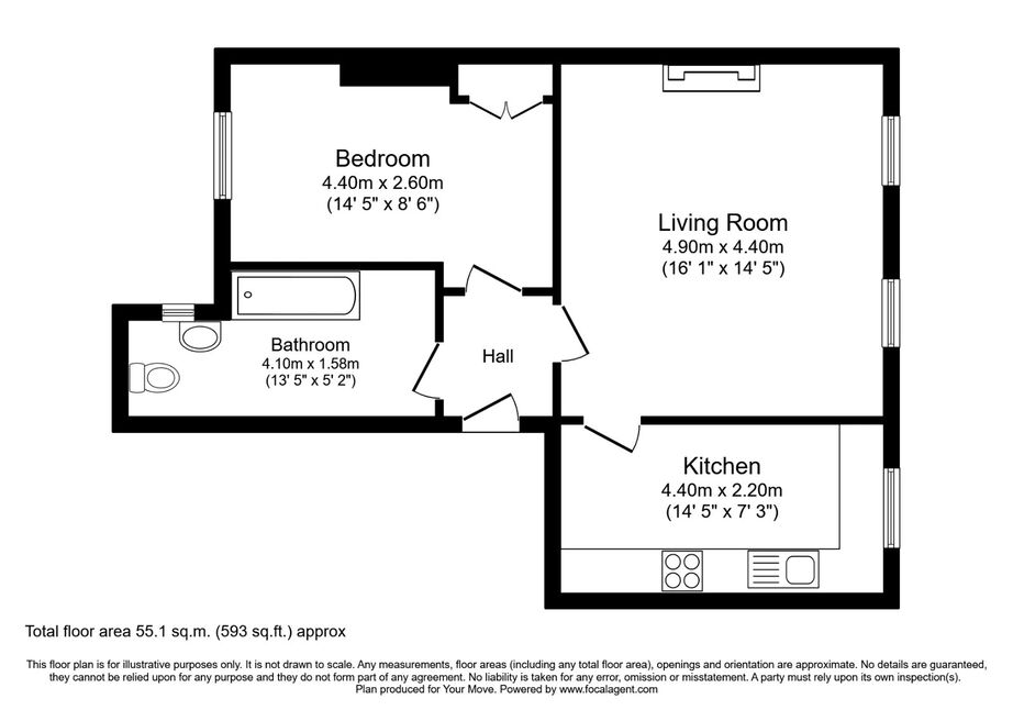
Features and Description
** AVAILABLE FROM JULY ** GREAT LOCATION ** ** ONE BEDROOM APARTMENT**
Located in the Ashbrooke area of Sunderland, you are just a short walk away from the city centre. Mowbray Park is just around the corner, and so is a corner shop.
IMPORTANT NOTE TO POTENTIAL RENTERS:
We endeavour to make our particulars accurate and reliable, however, they do not constitute or form part of an offer or any contract and none is to be relied upon as statements of representation or fact. The services, systems and appliances listed in this specification have not been tested by us and no guarantee as to their operating ability or efficiency is given. All photographs and measurements have been taken as a guide only and are not precise. Floor plans where included are not to scale and accuracy is not guaranteed. If you require clarification or further information on any points, please contact us, especially if you are travelling some distance to view.
All properties are available for a minimum length of time, with the exception of short term accommodation. Please contact the branch for details. A security deposit of at least one month’s rent is required. Rent is to be paid one month in advance. It is the tenant’s responsibility to insure any personal possessions. Payment of all utilities including water rates or metered supply and Council Tax is the responsibility of the tenant in every case.
The Avenue, Sunderland, Tyne and Wear, SR2









The pin shows the exact address of the property
Energy Efficiency Rating
Very energy efficient - lower running costs
Not energy efficient - higher running costs
Current
N/APotential
N/ACO2 Rating
Very energy efficient - lower running costs
Not energy efficient - higher running costs