











3 bedroom End Terrace House to rent, Creed Road, Oundle, Peterborough, PE8
Available Unfurnished, from 14/10/2025
Features and Description
- Available Early October
- Location
- Garage and Driveway
- Private Garden
- Long Let
- Shower En-Suite
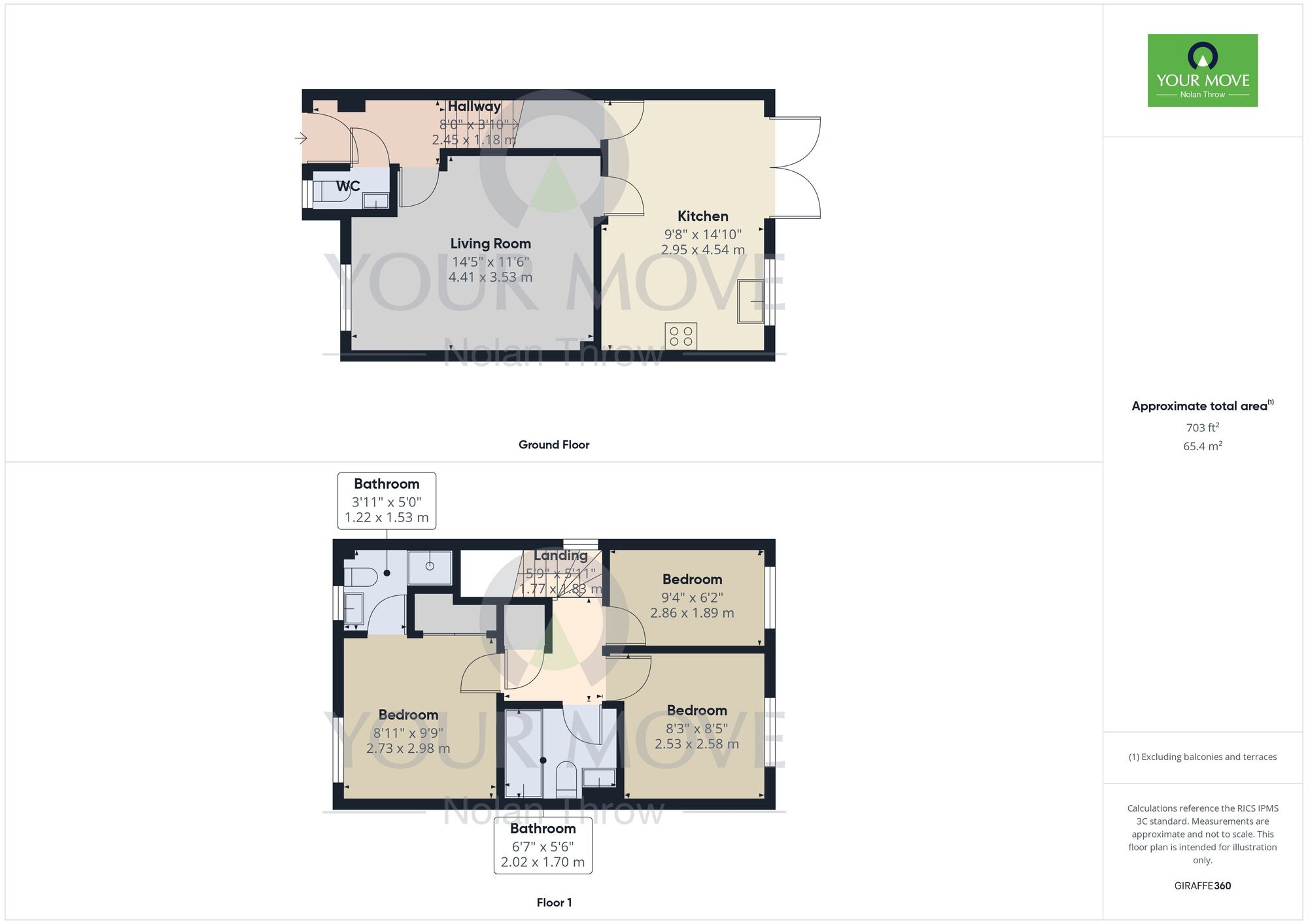
Available to let is this well presented three bedroom property located in a sought after area in the market town of Oundle.
Set back from the road, the property is accessed through the front door into an entrance hallway providing access to the living room and downstairs cloakroom.
Living room is a light airy room thanks to the large front window and is carpeted. To the rear is an internal door leading to the kitchen area.
Kitchen/diner is a good size room with plenty of space for dining furniture. There is a good range of base and wall mounted units, a large single electric oven with four ringed gas burning hob, overhead extractor fan and stainless steel sink & drainer with hot/cold chrome mixer in front of rear window overlooking the garden. There is room for all the usual appliances and a large double glazed sliding door.
Upstairs are three bedrooms with the Principal room benefitting from a shower en-suite.
Family bathroom is three piece with shower over bath.
Externally, to the front is a mature front garden. To the rear is a private garden laid mainly to lawn with a patio area. There is a single garage at the end of the garden with a metal up and over swing door, and space in front to park one vehicle.
The property is available early October and is offered on an un-furnished basis.
Viewings by appointment only with the Oundle branch.
IMPORTANT NOTE TO POTENTIAL RENTERS:
We endeavour to make our particulars accurate and reliable, however, they do not constitute or form part of an offer or any contract and none is to be relied upon as statements of representation or fact. The services, systems and appliances listed in this specification have not been tested by us and no guarantee as to their operating ability or efficiency is given. All photographs and measurements have been taken as a guide only and are not precise. Floor plans where included are not to scale and accuracy is not guaranteed. If you require clarification or further information on any points, please contact us, especially if you are travelling some distance to view.
All properties are available for a minimum length of time, with the exception of short term accommodation. Please contact the branch for details. A security deposit of at least one month’s rent is required. Rent is to be paid one month in advance. It is the tenant’s responsibility to insure any personal possessions. Payment of all utilities including water rates or metered supply and Council Tax is the responsibility of the tenant in every case.
Creed Road, Oundle, Peterborough, PE8












The pin shows the exact address of the property
Energy Efficiency Rating
Very energy efficient - lower running costs
Not energy efficient - higher running costs
Current
72Potential
77CO2 Rating
Very energy efficient - lower running costs
Not energy efficient - higher running costs