This calculator provides a guide to the amount of residential stamp duty you may pay and does not guarantee this will be the actual cost. This calculation is based on the Stamp Duty Land Tax Rates for residential properties purchased from 23rd September 2022 and second homes from 31st October 2024. For more information on Land and Buildings Transaction Tax, click here.
Land/Plot for sale, Peat Inn, Cupar, Fife, KY15
Features and Description
- Plot of Land for sale
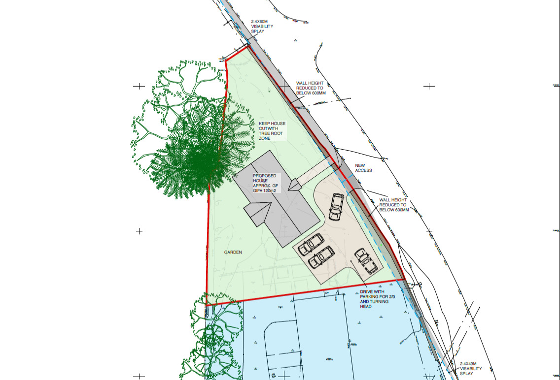
- Approx 820 sqm | Planning in Principle
- Fantastic Countryside Location
With stunning countryside views, this generous plot in a sought after hamlet in North East Fife is available to purchase! With planning in principle for a detached house, the plot extends to approximately 820 square metres, with private access and allowing ample parking.
Planning information available on request.
Peat Inn is a small hamlet located 6 miles from St Andrews, and 7 miles from Cupar. St Andrews offers an excellent range of facilities, along with a highly regarded university. Cupar, which is a bustling market town provides a good range of services. Dundee is within a 30-minute drive to the north with Edinburgh just over an hour to the south. Peat Inn is located within some beautiful Fife countryside, comprising a lovely mix of fertile farmland, woodland, hill, stunning coastline, and rivers and provides an area offering access to a wide range of recreational pursuits including riding, cycling, walking, sailing and golf. There are many highly rated golf courses within easy reach, including the renowned Links courses in and around St Andrews. State schooling is available locally with private schooling being provided at St Leonards in St Andrews. There are railway stations at Cupar, Leuchars, Ladybank, Markinch and Kirkcaldy, with Edinburgh airport just an hour away.
IMPORTANT NOTE TO POTENTIAL PURCHASERS:
We endeavour to make our particulars accurate and reliable, however, they do not constitute or form part of an offer or any contract and none is to be relied upon as statements of representation or fact. The services, systems and appliances listed in this specification have not been tested by us and no guarantee as to their operating ability or efficiency is given. All photographs and measurements have been taken as a guide only and are not precise. Floor plans where included are not to scale and accuracy is not guaranteed. If you require clarification or further information on any points, please contact us, especially if you are travelling some distance to view. Fixtures and fittings other than those mentioned are to be agreed with the seller.
Peat Inn, Cupar, Fife, KY15
Additional Information
-
Property refGLE240104
-
TenureFreehold
Similar properties for sale by Your Move Glenrothes
The pin shows the exact address of the property
Energy Efficiency Rating
Very energy efficient - lower running costs
Not energy efficient - higher running costs
Current
N/APotential
N/ACO2 Rating
Very energy efficient - lower running costs
Not energy efficient - higher running costs
