This calculator provides a guide to the amount of residential stamp duty you may pay and does not guarantee this will be the actual cost. This calculation is based on the Stamp Duty Land Tax Rates for residential properties purchased from 23rd September 2022 and second homes from 31st October 2024. For more information on Stamp Duty Land Tax, click here.
 
         
         
         
         
         
         
         
         
         
         
         
         
         
        3 bedroom Mid Terrace House for sale, Coquet, Washington, Tyne and Wear, NE38
Features and Description
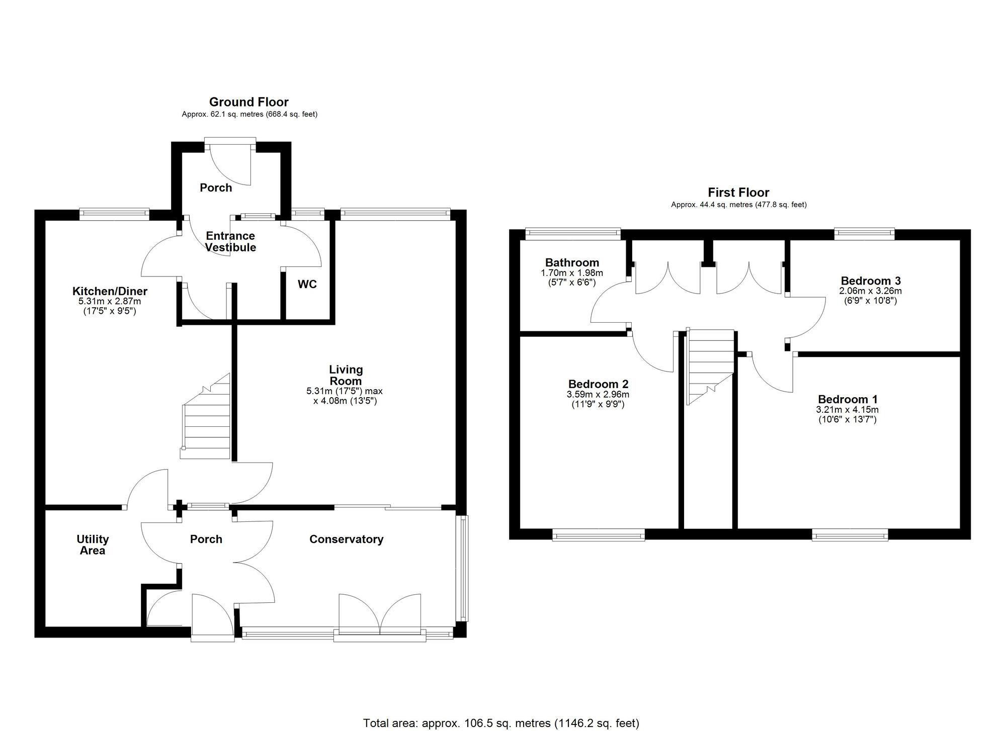
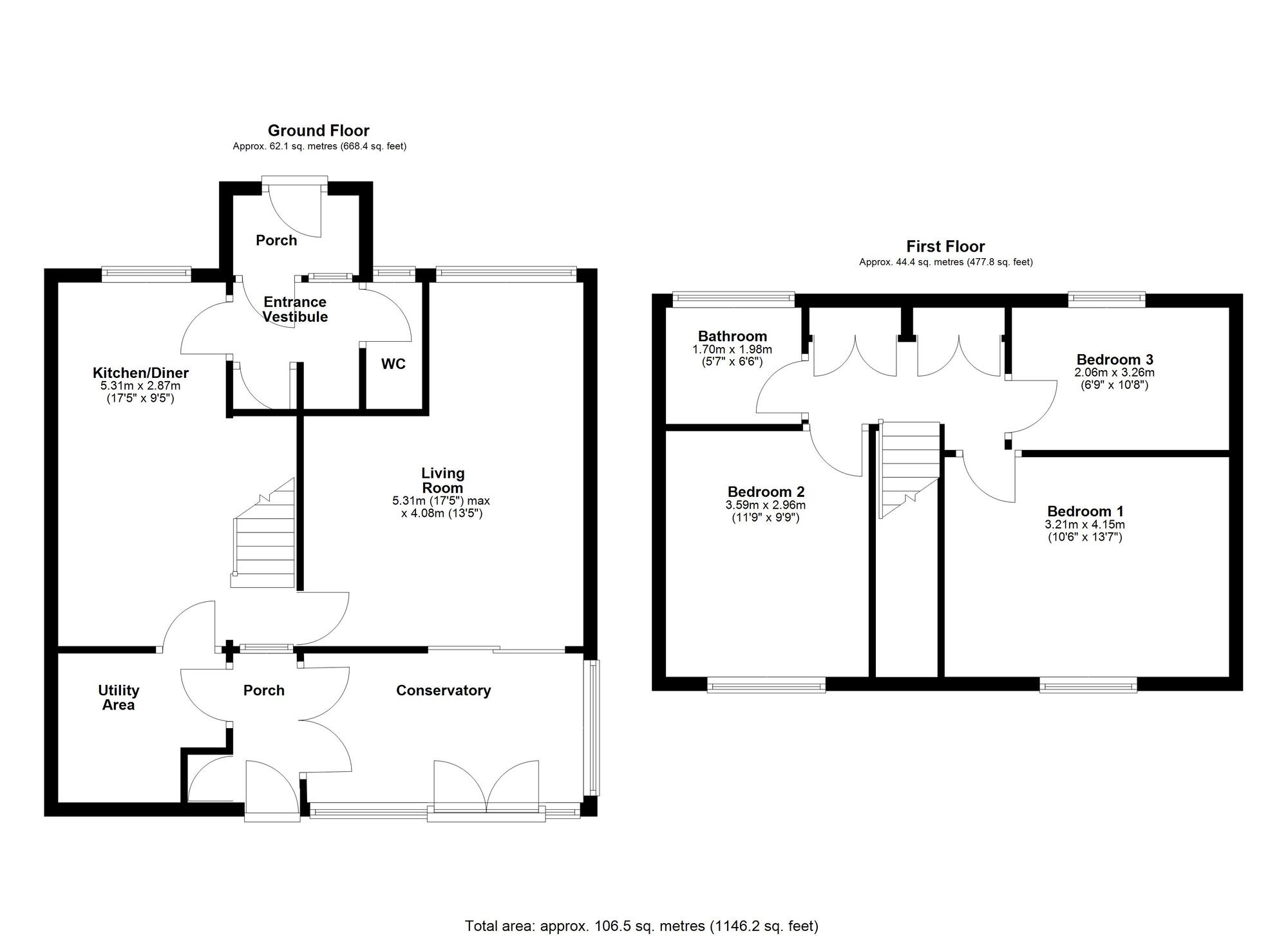
- Three bedroom mid terraced property
- Conservatory
- Downstairs w/c
- Spacious rooms
- Council Tax Band: A
- EPC Rating: C
Offered to the market with no onward chain, this charming and well-proportioned three-bedroom mid-terraced property has been thoughtfully extended and benefits from a conservatory, utility room, and downstairs W/C—perfect for modern family living.
Internally, the home features:
Front and rear entrance porches
A versatile utility room
Convenient ground floor W/C
A spacious kitchen/diner, ideal for entertaining
A generously sized living room with direct access to the bright conservatory
Upstairs offers:
Three well-sized bedrooms
Ample storage cupboards
A modern family wet room
Situated in a quiet and family-friendly area of the popular Rickleton estate, the property is within easy reach of local schools, shops, and amenities, making it an ideal choice for families or first-time buyers.
IMPORTANT NOTE TO POTENTIAL PURCHASERS:
We endeavour to make our particulars accurate and reliable, however, they do not constitute or form part of an offer or any contract and none is to be relied upon as statements of representation or fact. The services, systems and appliances listed in this specification have not been tested by us and no guarantee as to their operating ability or efficiency is given. All photographs and measurements have been taken as a guide only and are not precise. Floor plans where included are not to scale and accuracy is not guaranteed. If you require clarification or further information on any points, please contact us, especially if you are travelling some distance to view. Fixtures and fittings other than those mentioned are to be agreed with the seller.
Coquet, Washington, Tyne and Wear, NE38
 
        Additional Information
- 
                    Property refQWS250147
- 
                    EPCC
- 
                    TenureFreehold
- 
                    Council TaxA
 
        Similar properties for sale by Your Move Washington
 
         
         
         
         
         
         
         
         
         
         
         
         
         
        The pin shows the exact address of the property
Energy Efficiency Rating
Very energy efficient - lower running costs
Not energy efficient - higher running costs
Current
69Potential
77CO2 Rating
Very energy efficient - lower running costs
Not energy efficient - higher running costs

 
         
         
         
         
         
         
        