This calculator provides a guide to the amount of residential stamp duty you may pay and does not guarantee this will be the actual cost. This calculation is based on the Stamp Duty Land Tax Rates for residential properties purchased from 23rd September 2022 and second homes from 31st October 2024. For more information on Land and Buildings Transaction Tax, click here.
3 bedroom Mid Terrace House for sale, Fife Street, Dufftown, Moray, AB55
Features and Description
- EPC Band E
- Council Tax Band A
- Charming terraced town house
- Excellent public transport links
- Strong local community
- Three generously sized bedrooms
- Master bedroom with dressing room
- Large bathroom with bath and shower
- Functional galley-style kitchen
- Cosy single reception room
- High ceilings throughout
- Versatile open-plan attic room
Presenting a charming terraced town house available for sale, ideally located with excellent public transport links, local amenities, and a strong local community. This property is in need of modernising, offering a unique opportunity for prospective buyers to personalise and create their dream home.
The house comprises a total of three bedrooms. The main bedroom is a standout feature, with a separate dressing room offering added luxury. The two additional bedrooms are generously sized doubles, providing ample space for family or guests.
The property boasts a large bathroom, equipped with both a shower cubicle and bath, catering to all preferences for relaxation and convenience. The galley-style kitchen is compact yet functional, waiting for a touch of modernisation to transform it into a contemporary hub of the home.
There is a single reception room, providing a cosy space for the family to gather and relax. One of the unique features of the house is the high ceilings, adding an air of grandeur and space throughout.
Additionally, there is an open-plan attic room, offering versatile use. This could be utilised as a home office, playroom, or additional storage space, depending on your needs.
On-street parking is available, adding to the practical benefits of this property. With a few modern updates, this terraced town house has the potential to become a beautiful family home, perfectly situated for both convenience and community living.
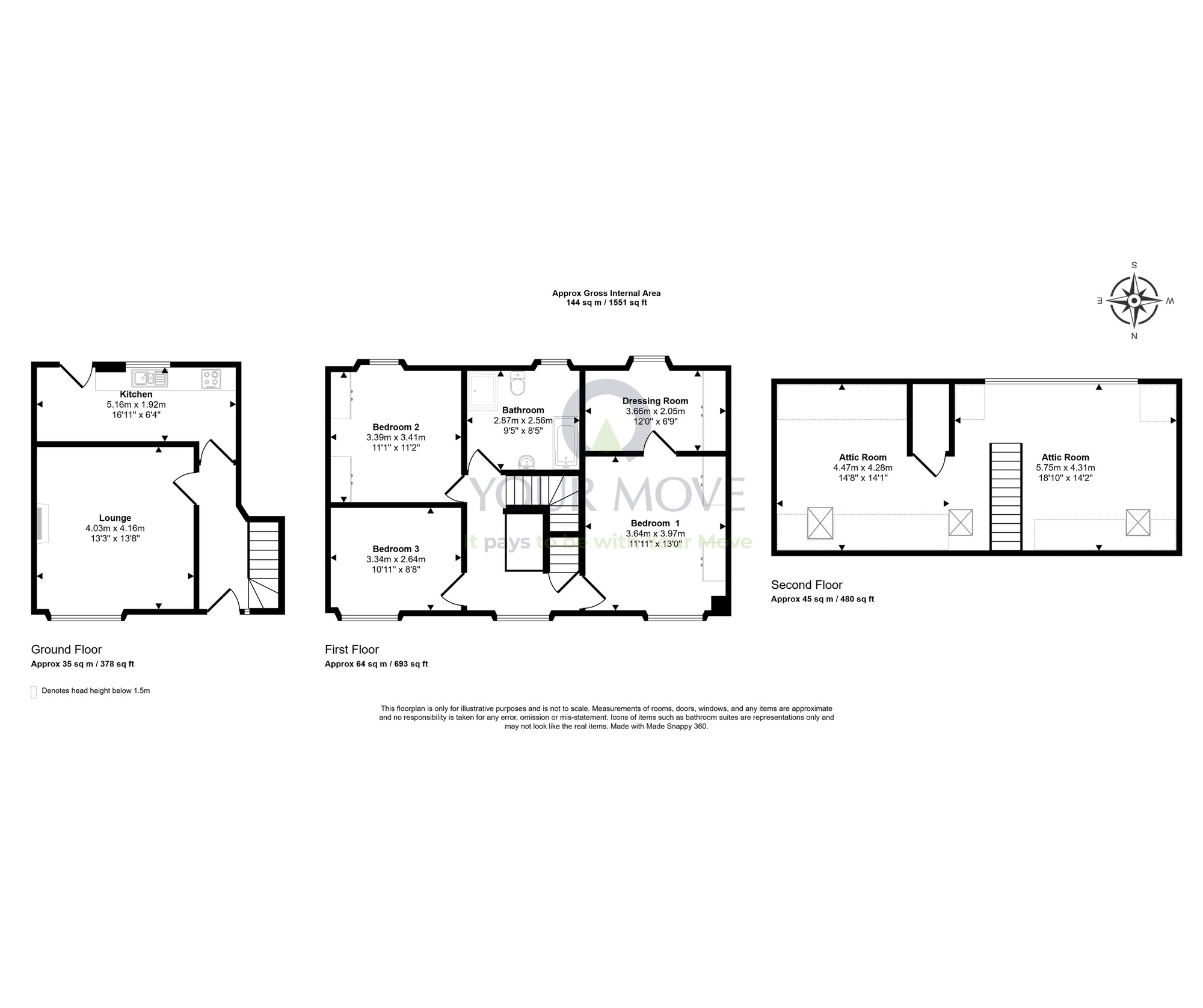
Hallway
A spacious entrance hall which leads into the lounge, kitchen and has the staircase to the first floor.
Lounge
14'5" x 13'1" (4.40m x 4.00m)
There’s a spacious, front facing, reception room boasting a feature fireplace, built-in storage and hatch access to the kitchen.
Kitchen
18'1" x 82'0" (5.50m x 25.00m)
The galley-style kitchen offers a functional cooking space with plenty of worktop space and cupboard storage. There is designated undercounter space for free-standing appliances whilst benefitting from an integrated oven and hob. External door access takes you to the rear courtyard.
1st Floor Landing
The first-floor landing has the staircase to the second floor whilst providing access into three bedrooms and the family bathroom.
Bathroom
9'10" x 8'2" (3.00m x 2.50m)
A good sized family bathroom providing four piece white suite which consists of a WC, wash hand basin, shower cubicle and separate bath.
Bedroom 1
14'5" x 12'2" (4.40m x 3.70m)
There’s a good size main bedroom which offers plenty of furnishing space whilst benefiting from fitted wardrobes and a dressing table.
Dressing Room
12'6" x 6'7" (3.80m x 2.00m)
A practical dressing room is positioned conveniently off the main bedroom. This room features built-in storage and offers a versatile space.
Bedroom 2
11'2" x 10'6" (3.40m x 3.20m)
The second bedroom, positioned to the rear of the home, is another generous double room which includes fitted wardrobes and dressing table.
Bedroom 3
11'2" x 8'6" (3.40m x 2.60m)
A third, smaller, double bedroom offering ample space and a built-in cupboard for practical storage.
Attic Room
33'10" x 13'9" (10.30m x 4.20m)
A sizeable attic room spanning the width of the property, offers a fully open-plan room with a versatile use. This room has a built-in storage cupboard and large windows with rooftop views across to the hillsides.
External
Located to the rear of the property is a shared courtyard with the neighbouring property have right of way access. Additionally, the stone-built shed is included with the sale of this house. The courtyard has a wall boundary and gated access to the lane at the back.
Additional
Further benefits to this property include double glazing and gas central heating. Off-street parking can be sought to the front side of the house. Since the Home Report was completed, a new boiler has been installed as well as some roof pointing and slate repairs. With a few modern updates, this terraced town house has the potential to become a beautiful family home, perfectly situated for both convenience and community living.
IMPORTANT NOTE TO POTENTIAL PURCHASERS:
We endeavour to make our particulars accurate and reliable, however, they do not constitute or form part of an offer or any contract and none is to be relied upon as statements of representation or fact. The services, systems and appliances listed in this specification have not been tested by us and no guarantee as to their operating ability or efficiency is given. All photographs and measurements have been taken as a guide only and are not precise. Floor plans where included are not to scale and accuracy is not guaranteed. If you require clarification or further information on any points, please contact us, especially if you are travelling some distance to view. Fixtures and fittings other than those mentioned are to be agreed with the seller.
Fife Street, Dufftown, Moray, AB55
Additional Information
-
Property refELG240090
-
EPCE
-
TenureFreehold
-
Council TaxA
-
Local authorityMoray Council
There’s a spacious, front facing, reception room boasting a feature fireplace, built-in storage and hatch access to the kitchen.
The galley-style kitchen offers a functional cooking space with plenty of worktop space and cupboard storage. There is designated undercounter space for free-standing appliances whilst benefitting from an integrated oven and hob. External door access takes you to the rear courtyard.
A good sized family bathroom providing four piece white suite which consists of a WC, wash hand basin, shower cubicle and separate bath.
There’s a good size main bedroom which offers plenty of furnishing space whilst benefiting from fitted wardrobes and a dressing table.
A practical dressing room is positioned conveniently off the main bedroom. This room features built-in storage and offers a versatile space.
The second bedroom, positioned to the rear of the home, is another generous double room which includes fitted wardrobes and dressing table.
A third, smaller, double bedroom offering ample space and a built-in cupboard for practical storage.
A sizeable attic room spanning the width of the property, offers a fully open-plan room with a versatile use. This room has a built-in storage cupboard and large windows with rooftop views across to the hillsides.
Located to the rear of the property is a shared courtyard with the neighbouring property have right of way access. Additionally, the stone-built shed is included with the sale of this house. The courtyard has a wall boundary and gated access to the lane at the back.
The pin shows the exact address of the property
Energy Efficiency Rating
Very energy efficient - lower running costs
Not energy efficient - higher running costs
Current
40Potential
75CO2 Rating
Very energy efficient - lower running costs
Not energy efficient - higher running costs
