This calculator provides a guide to the amount of residential stamp duty you may pay and does not guarantee this will be the actual cost. This calculation is based on the Stamp Duty Land Tax Rates for residential properties purchased from 23rd September 2022 and second homes from 31st October 2024. For more information on Stamp Duty Land Tax, click here.
3 bedroom Mid Terrace House for sale, Hillside Close, Rowlands Gill, Tyne and Wear, NE39
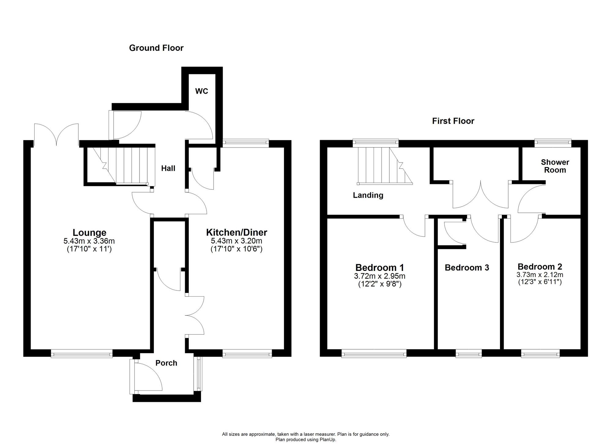
Features and Description
- Three Bedroom Mid Link
- Gardens To Front And Rear
- Ground Floor WC
- Picturesque Outlook To The Front
- Floor Plan Approximately 88 Sq M
- EPC Rating D
A pleasantly situated three bedroom mid link home that will appeal to a variety of buyers. Attractively located on the edge of the estate with an elevated position and picturesque outlook
The property briefly comprises of: Entrance hall with cupboard, spacious dual aspect kitchen/diner with a range of wall and floor units, ground floor WC, and a dual aspect lounge with French doors leading to the rear garden.
To the first floor there are three bedrooms, two of which with built in wardrobes, as well as a modern three piece shower room WC and storage cupboard to the landing.
Outside there is an open plan lawned garden and to the rear an attractive low maintenance paved garden.
IMPORTANT NOTE TO POTENTIAL PURCHASERS:
We endeavour to make our particulars accurate and reliable, however, they do not constitute or form part of an offer or any contract and none is to be relied upon as statements of representation or fact. The services, systems and appliances listed in this specification have not been tested by us and no guarantee as to their operating ability or efficiency is given. All photographs and measurements have been taken as a guide only and are not precise. Floor plans where included are not to scale and accuracy is not guaranteed. If you require clarification or further information on any points, please contact us, especially if you are travelling some distance to view. Fixtures and fittings other than those mentioned are to be agreed with the seller.
Hillside Close, Rowlands Gill, Tyne and Wear, NE39
 
        Additional Information
- 
                    Property refQRW250126
- 
                    EPCD
- 
                    TenureFreehold
- 
                    Council TaxA
 
        Similar properties for sale by Your Move Rowlands Gill
 
         
         
         
         
         
         
         
         
         
         
         
        The pin shows the exact address of the property
Energy Efficiency Rating
Very energy efficient - lower running costs
Not energy efficient - higher running costs
Current
64Potential
84CO2 Rating
Very energy efficient - lower running costs
Not energy efficient - higher running costs

 
         
         
         
         
         
         
        