This calculator provides a guide to the amount of residential stamp duty you may pay and does not guarantee this will be the actual cost. This calculation is based on the Stamp Duty Land Tax Rates for residential properties purchased from 23rd September 2022 and second homes from 31st October 2024. For more information on Stamp Duty Land Tax, click here.

















3 bedroom Mid Terrace House for sale, Milling Court, Gateshead, NE8
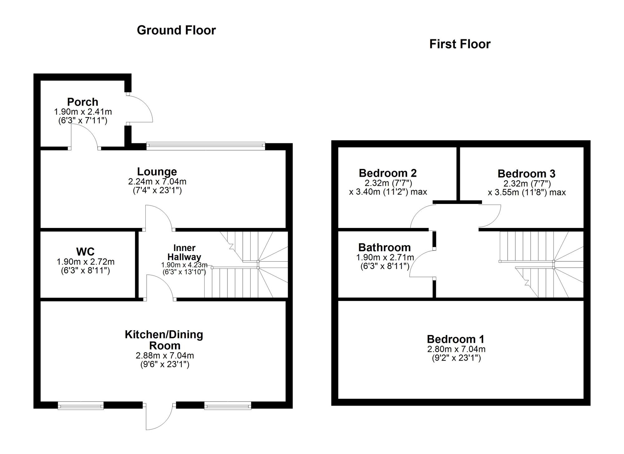
Features and Description
- Mid Terraced Family Home
- Driveway for Off Street Parking
- Updating Required
- Approx. Floor Area 76sqM or 818sqFT
- Council Tax Band A
- EPC RATING D
Mid terraced house ideal for first time buyers or families with off street parking to rear. In need of updating with no chain involved.
Ideal for those looking to add their own personal touch and turn renovation ideas into reality.
The ground floor comprises an entrance lobby leading into a lounge with a feature fireplace. An inner hall provides access to the first floor via stairs and includes a useful storage cupboard and a downstairs WC. The kitchen/diner is a practical space with plumbing for a washing machine, space for a fridge/freezer and cooker, as well as room for a dining table. Additional storage is available via a built-in cupboard, and a rear door leads directly to the garden.
Upstairs, the landing provides access to the loft via a pull-down ladder and includes lighting, offering additional storage space. The spacious main double bedroom is situated at the front of the property and includes two built-in storage cupboards. To the rear, there are two further bedrooms, making this a great home for a growing family. The bathroom features a WC, bath with shower over, spot lighting, and an extractor fan.
Externally, the home benefits from a well-maintained, enclosed front garden with a lawn and patio area. The private rear garden includes both a decked and patio area, ideal for outdoor entertaining. A handy outhouse and garden shed provide additional storage solutions. The property also boasts a rear driveway offering off-street parking.
Additional features include gas central heating via a combi boiler and double-glazed windows throughout.
The property is understood to be Freehold.
MAKING AN OFFER:
Please note that all offers will require financial verification including mortgage agreement in principle, proof of deposit funds, proof of available cash and full chain details including selling agents and solicitors down the chain. Under New Money Laundering Regulations we require proof of identification from all buyers before acceptance letters are sent and solicitors can be instructed.
IMPORTANT NOTE TO POTENTIAL PURCHASERS:
We endeavour to make our particulars accurate and reliable, however, they do not constitute or form part of an offer or any contract and none is to be relied upon as statements of representation or fact. The services, systems and appliances listed in this specification have not been tested by us and no guarantee as to their operating ability or efficiency is given. All photographs and measurements have been taken as a guide only and are not precise. Floor plans where included are not to scale and accuracy is not guaranteed. If you require clarification or further information on any points, please contact us, especially if you are travelling some distance to view. Fixtures and fittings other than those mentioned are to be agreed with the seller.
Milling Court, Gateshead, NE8

















The pin shows the exact address of the property
Energy Efficiency Rating
Very energy efficient - lower running costs
Not energy efficient - higher running costs
Current
65Potential
73CO2 Rating
Very energy efficient - lower running costs
Not energy efficient - higher running costs