2 bedroom Mid Terrace House to rent, Aveley Road, Romford, RM1
Features and Description
- TWO BEDROOMS
- NEWLY PAINTED
- 0.5 MILES TO ROMFORD STATION
- FANTASTIC CONDITION
- DOUBLE GLAZING
- OFF STREET PARKING
- MUST VIEW
- CALL NOW
- GAS CENTRAL HEATING
- EPC D
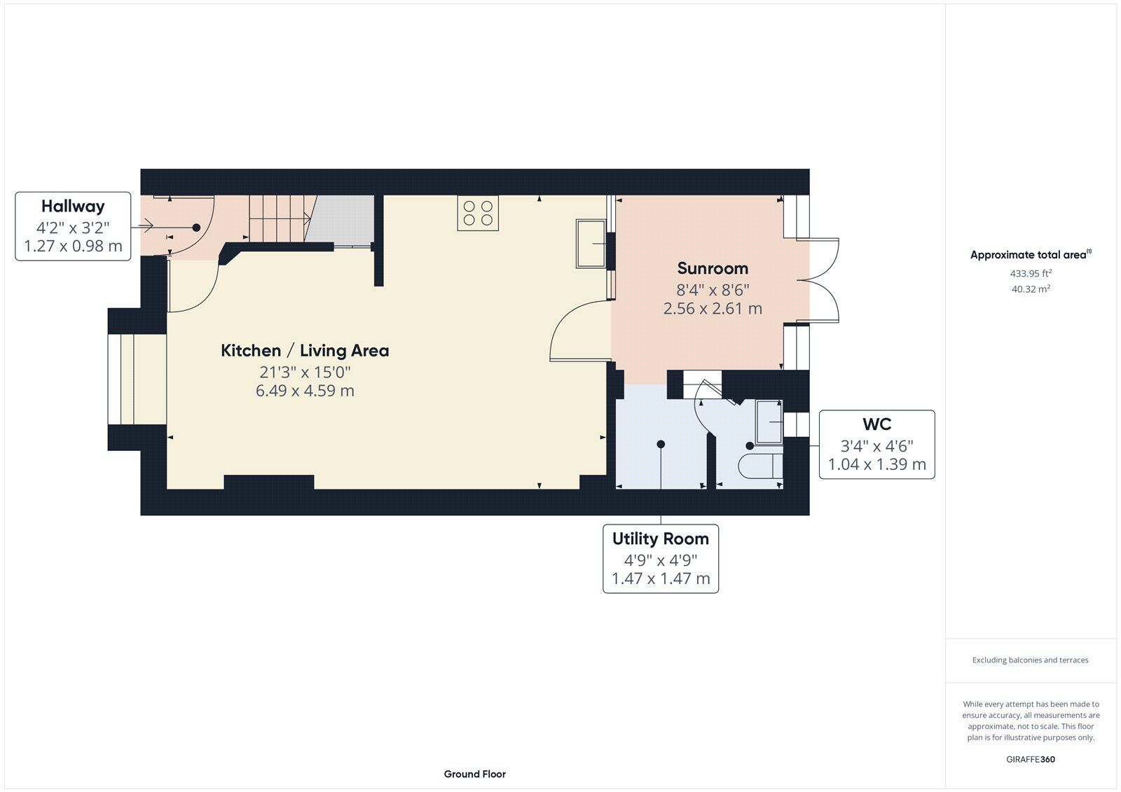
Your Move Stewart & Co are proud to present this two bedroom family home to the market. The property has recently had a mini makeover and is now ready for someone to move in. Benefits include off street parking, additional ground floor cloakroom, two double bedrooms, conservatory, gas central heating and double glazing.
EPC D
IMPORTANT NOTE TO POTENTIAL RENTERS:
We endeavour to make our particulars accurate and reliable, however, they do not constitute or form part of an offer or any contract and none is to be relied upon as statements of representation or fact. The services, systems and appliances listed in this specification have not been tested by us and no guarantee as to their operating ability or efficiency is given. All photographs and measurements have been taken as a guide only and are not precise. Floor plans where included are not to scale and accuracy is not guaranteed. If you require clarification or further information on any points, please contact us, especially if you are travelling some distance to view.
All properties are available for a minimum length of time, with the exception of short term accommodation. Please contact the branch for details. A security deposit of at least one month’s rent is required. Rent is to be paid one month in advance. It is the tenant’s responsibility to insure any personal possessions. Payment of all utilities including water rates or metered supply and Council Tax is the responsibility of the tenant in every case.
Aveley Road, Romford, RM1
The pin shows the exact address of the property
Energy Efficiency Rating
Very energy efficient - lower running costs
Not energy efficient - higher running costs
Current
60Potential
81CO2 Rating
Very energy efficient - lower running costs
Not energy efficient - higher running costs
