








2 bedroom Mid Terrace House to rent, Castle Street, Lincoln, Lincolnshire, LN1
Available Unfurnished, from 15/10/2025
Features and Description
- Council Tax Band A
- EPC Rating C
- Unfurnished
- Terraced
- On Street Parking
- Double Bedrooms
- Gas Central Heating
- Holding and security deposits may apply, ask in branch for details.
*** AVAILABLE NOW *** This two bedroom terraced house is available to rent now with viewings highly recommended!
The property briefly comprises a spacious living room, fitted kitchen with dining area, two double bedrooms, and a stylish bathroom. The property also benefits from a private rear garden, gas central heating, and on-street parking.
This home is ideally suited to professionals, couples, or small families looking for a central Lincoln location with excellent local amenities.
EPC Rating C
Council Tax Band A
Holding Deposit - £219.23
Security Deposit - £1,096.15
* Holding and security deposits may apply, ask in branch for details
Location
Located on Castle Street in Lincoln his property is just a short commute to the City Centre whilst also providing great access to the A46 and Eastern Bypass.
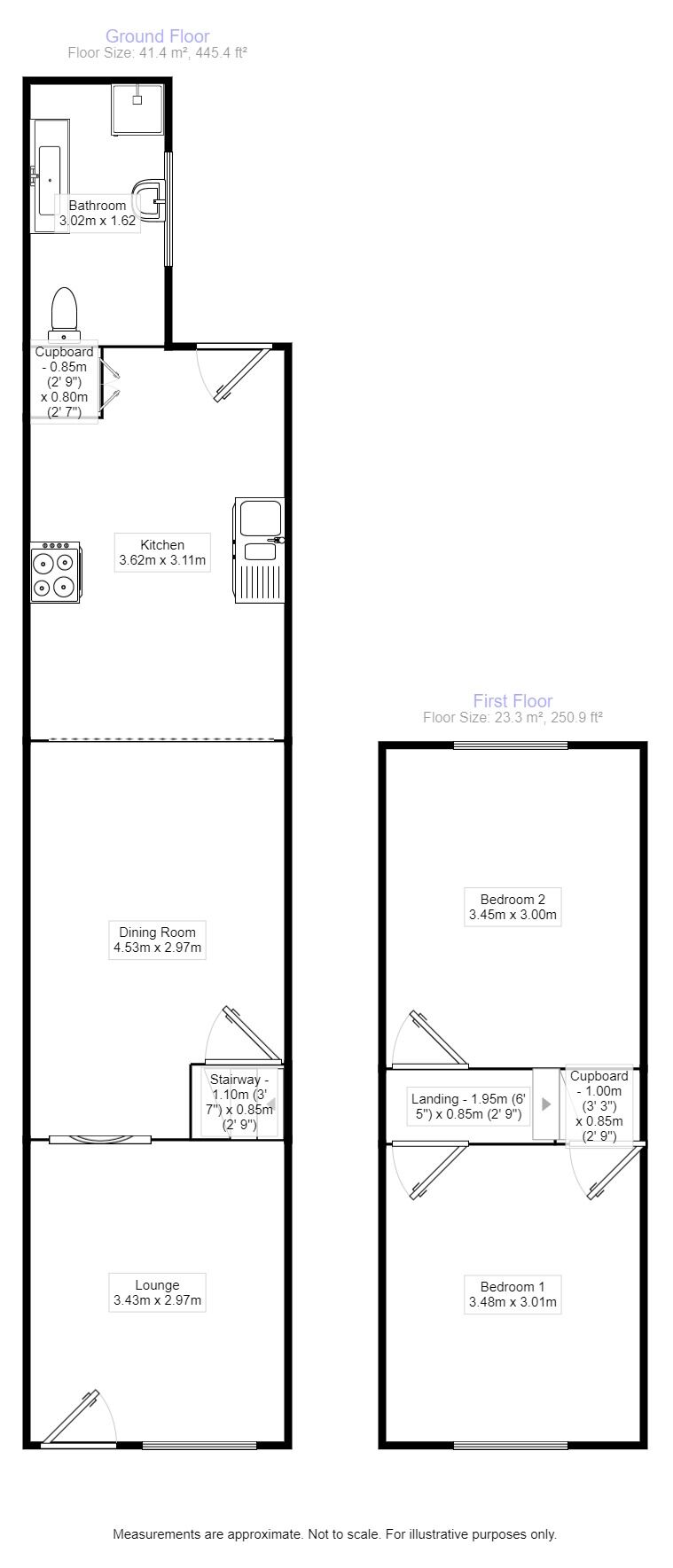
Living Room
11'3" x 9'9" (3.43m x 2.97m)
uPVC front entrance door, double glazed window to front aspect, electric fire, radiator.
Dining Room
14'10" x 9'9" (4.52m x 2.97m)
Electric fire with feature surround, radiator, stairs rising to first floor.
Kitchen
11'11" x 10'2" (3.63m x 3.10m)
Being fitted with a range of eye level wall and base units and contrasting work surfaces, fitted breakfast bar, electric oven with 5 ring gas hob and extractor hood over, one and a half bowl sink unit with drainer and mixer taps over, space and plumbing for washing machine, space for fridge freezer, uPVC rear door, storage cupboard off.
Bedroom 1
11'5" x 9'11" (3.48m x 3.02m)
Double glazed window to front aspect, radiator, storage cupboard.
Bedroom 2
11'4" x 9'10" (3.45m x 3.00m)
Double glazed window to rear aspect, radiator.
Bathroom
9'11" x 5'4" (3.02m x 1.63m)
Fully tiled four piece suite comprising of corner shower cubicle. panelled bath, low level WC, pedestal wash hand basin, stainless steel heated towel rail, double glazed frosted window to side aspect.
Rear Courtyard
The courtyard is mainly laid to gravel for low maintenance with various plants and shrubs all of which is enclosed by fencing and brick wall.
IMPORTANT NOTE TO POTENTIAL RENTERS:
We endeavour to make our particulars accurate and reliable, however, they do not constitute or form part of an offer or any contract and none is to be relied upon as statements of representation or fact. The services, systems and appliances listed in this specification have not been tested by us and no guarantee as to their operating ability or efficiency is given. All photographs and measurements have been taken as a guide only and are not precise. Floor plans where included are not to scale and accuracy is not guaranteed. If you require clarification or further information on any points, please contact us, especially if you are travelling some distance to view.
All properties are available for a minimum length of time, with the exception of short term accommodation. Please contact the branch for details. A security deposit of at least one month’s rent is required. Rent is to be paid one month in advance. It is the tenant’s responsibility to insure any personal possessions. Payment of all utilities including water rates or metered supply and Council Tax is the responsibility of the tenant in every case.
Castle Street, Lincoln, Lincolnshire, LN1

uPVC front entrance door, double glazed window to front aspect, electric fire, radiator.

Electric fire with feature surround, radiator, stairs rising to first floor.

Being fitted with a range of eye level wall and base units and contrasting work surfaces, fitted breakfast bar, electric oven with 5 ring gas hob and extractor hood over, one and a half bowl sink unit with drainer and mixer taps over, space and plumbing for washing machine, space for fridge freezer, uPVC rear door, storage cupboard off.

Double glazed window to front aspect, radiator, storage cupboard.

Double glazed window to rear aspect, radiator.

Fully tiled four piece suite comprising of corner shower cubicle. panelled bath, low level WC, pedestal wash hand basin, stainless steel heated towel rail, double glazed frosted window to side aspect.



The pin shows the exact address of the property
Energy Efficiency Rating
Very energy efficient - lower running costs
Not energy efficient - higher running costs
Current
69Potential
86CO2 Rating
Very energy efficient - lower running costs
Not energy efficient - higher running costs