2 bedroom Mid Terrace House to rent, Tintern Close, London, SW19
Available Unfurnished, from 01/02/2026
Features and Description
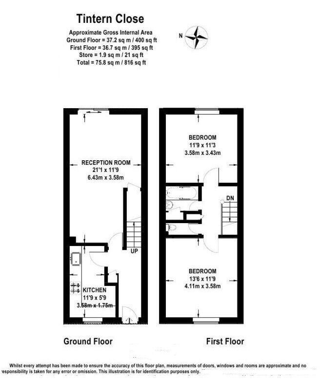
This two-bedroom terraced house is available to let in the SW19 area of London, offering neutrally decorated accommodation suited to a professional couple, professional sharers or a young family. The property includes an open-plan reception room with views over, and access to the garden, providing a flexible space for living and dining. There is a modern kitchen and plenty of storage space throughout.
Both bedrooms are doubles, providing comparable sleeping accommodation. The main bathroom includes a free-standing bath, heated towel rail and WC, while a further WC adds convenience. The property has an EPC rating of C and falls within Council Tax band D. Outside, there is a garden along with parking.
The house is situated in an urban area of Wimbledon, with local amenities, cafés and shops available in and around Wimbledon town centre and Wimbledon Chase. Nearby parks and green spaces, including Wimbledon Common and South Park Gardens, offer walking and cycling routes.
Public transport links are available from nearby Wimbledon station, providing mainline services to London Waterloo in around 20 minutes, as well as District Line Underground services and Tramlink connections towards Croydon. Wimbledon Chase and Haydons Road stations also offer Thameslink and mainline connections into central London and beyond.
The area provides access to a range of nearby schools, making the location practical for those needing local education options. Overall, this two-bedroom terraced house to let offers functional accommodation with outdoor space and access to transport, schools and amenities.
IMPORTANT NOTE TO POTENTIAL RENTERS:
We endeavour to make our particulars accurate and reliable, however, they do not constitute or form part of an offer or any contract and none is to be relied upon as statements of representation or fact. The services, systems and appliances listed in this specification have not been tested by us and no guarantee as to their operating ability or efficiency is given. All photographs and measurements have been taken as a guide only and are not precise. Floor plans where included are not to scale and accuracy is not guaranteed. If you require clarification or further information on any points, please contact us, especially if you are travelling some distance to view.
All properties are available for a minimum length of time, with the exception of short term accommodation. Please contact the branch for details. A security deposit of at least one month’s rent is required. Rent is to be paid one month in advance. It is the tenant’s responsibility to insure any personal possessions. Payment of all utilities including water rates or metered supply and Council Tax is the responsibility of the tenant in every case.
Tintern Close, London, SW19
The pin shows the exact address of the property
Energy Efficiency Rating
Very energy efficient - lower running costs
Not energy efficient - higher running costs
Current
71Potential
87CO2 Rating
Very energy efficient - lower running costs
Not energy efficient - higher running costs
