This calculator provides a guide to the amount of residential stamp duty you may pay and does not guarantee this will be the actual cost. This calculation is based on the Stamp Duty Land Tax Rates for residential properties purchased from 23rd September 2022 and second homes from 31st October 2024. For more information on Stamp Duty Land Tax, click here.
2 bedroom Semi Detached Bungalow for sale, Belmont Avenue, Clifton, Manchester, M27
Features and Description
- Fantastic opportunity to personalise a home!
- A true bungalow - ideal space for those looking to downsize.
- Sitting on a quiet cul-de-sac on a desirable residential estate.
- Walking distance over to Clifton Country Park for a scenic stroll
Presenting a semi-detached bungalow for sale, this property offers a practical layout ideal for investors and downsizers alike. Positioned in a sought-after location, residents will appreciate the convenience of local amenities nearby.
The bungalow features one reception room, enhanced by large windows that provide a pleasant garden view, creating a bright and inviting space. The kitchen is separate and comes equipped with freestanding appliances, ready for future updates. Two bedrooms provide comfortable accommodation: one double bedroom and a generous single, suitable for a variety of needs.
A well-proportioned bathroom is finished with a white suite, offering essential amenities and scope for modernisation according to personal preference.
The home is in need of renovation, presenting the perfect opportunity for anyone looking to add value and personalise their living space.
Externally, the property benefits from off-street parking and a garden, presenting outdoor space to enjoy or further develop. These features enhance the appeal for those who value both practicality and potential for improvement.
This semi-detached bungalow stands as a versatile option to tailor to your requirements. Whether you are seeking a project, a potential investment, or a home to downsize in a well-connected area, this property offers a combination of convenience and potential, ready to be shaped to your preferences. Early viewing is recommended to fully appreciate the possibilities on offer.
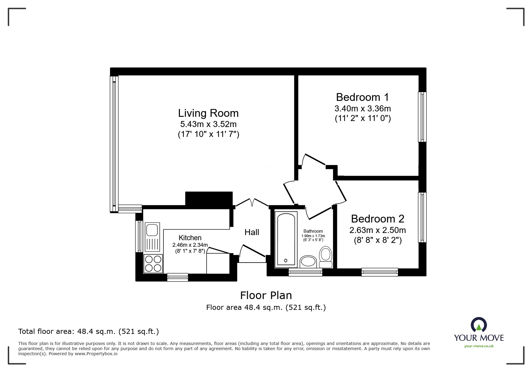
Living Room
17'10" x 11'7" (5.43m x 3.52m)
A generously sized living room with laminated flooring and a large UPVC window allowing lots of natural light
Kitchen
17'11" x 7'8" (5.46m x 2.34m)
A fitted kitchen with space for freestanding appliances, and a glass sliding door serving hatch into the living room.
Bathroom
6'3" x 5'8" (1.90m x 1.73m)
A whit three piece suite.
Bedroom 1
11'2" x 11'0" (3.40m x 3.36m)
A double bedroom with space for free standing furnishings
Bedroom 2
8'8" x 8'2" (2.63m x 2.50m)
A well proportioned bedroom, with space for a double bed, or a single with free standing furniture.
IMPORTANT NOTE TO POTENTIAL PURCHASERS:
We endeavour to make our particulars accurate and reliable, however, they do not constitute or form part of an offer or any contract and none is to be relied upon as statements of representation or fact. The services, systems and appliances listed in this specification have not been tested by us and no guarantee as to their operating ability or efficiency is given. All photographs and measurements have been taken as a guide only and are not precise. Floor plans where included are not to scale and accuracy is not guaranteed. If you require clarification or further information on any points, please contact us, especially if you are travelling some distance to view. Fixtures and fittings other than those mentioned are to be agreed with the seller.
Belmont Avenue, Clifton, Manchester, M27
The pin shows the exact address of the property
Energy Efficiency Rating
Very energy efficient - lower running costs
Not energy efficient - higher running costs
Current
N/APotential
N/ACO2 Rating
Very energy efficient - lower running costs
Not energy efficient - higher running costs
