









3 bedroom Semi Detached Bungalow to rent, Woodlawn Crescent, Whitton, Twickenham, TW2
Available Unfurnished, from 04/11/2025
Features and Description
- EPC Rating: E
- Council Tax Band E
- Semi-Detached Bungalow
- Three Bedrooms
- Off Street Parking
- Garage
- Lovely Secluded Garden
- Side Access
- Walking Distance To Whitton Town Centre
LOVELY BUNGALOW IN A GREAT LOCATION.
A very stylish and deceptively spacious three bedroom home which offers versatile accommodation all on one level. Rear aspect reception room provides attractive views of the secluded garden. Situated also to the rear of the property is a modern kitchen with lots of storage and work top space and a useful door opening onto the side way. First Bedroom is above average size and has a useful built-in cupboard with ample hanging space. This property also provides invaluable off street parking and a driveway leading to the garage. Located just a short walk to Whitton Town Centre, Train Station and local schools such as Bishop Perrin, Heathfields and Twickenham Academy. Council Tax -Richmond Band E
Location
The property is situated in a residential road, and offers easy access to Whitton High Street with a wide range of shops for your convenience and Whitton mainline Station which serves London Waterloo on the fast services in less than 30 minutes. The local Infant and Junior Schools are Chase Bridge, Nelson, Bishop Perrin, St Edmunds and Heathfields. The local secondary School would be Twickenham Academy & Turing House. Other benefits are local bus routes including the 110, H22 & 481. Whitton also benefits from several parks and open spaces including Crane Park.
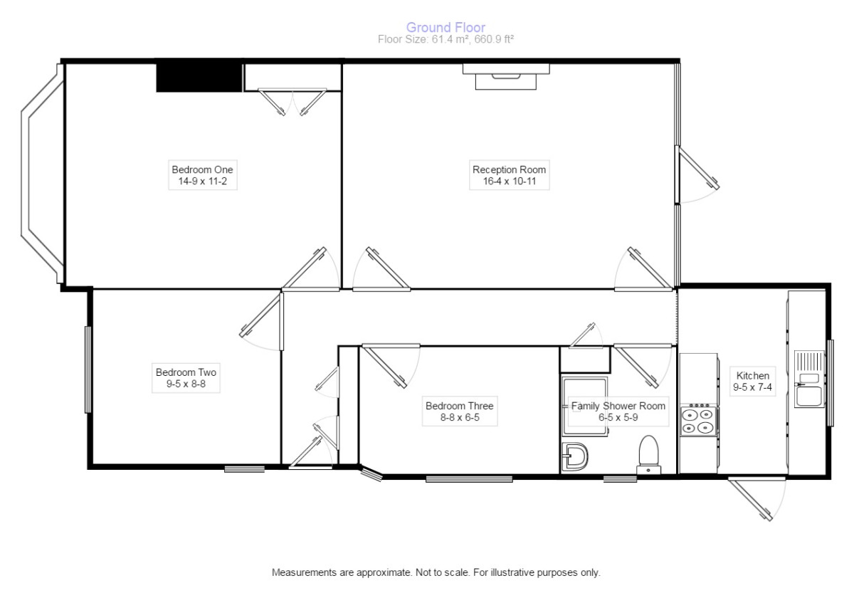
Reception Room
16'4" x 10'11" (4.98m x 3.33m)
Kitchen
9'5" x 7'4" (2.87m x 2.24m)
Bedroom 1
14'0" x 11'2" (4.27m x 3.40m)
Bedroom 2
9'5" x 8'8" (2.87m x 2.64m)
Bedroom 3
8'8" x 6'5" (2.64m x 1.96m)
Shower Room
6'5" x 5'9" (1.96m x 1.75m)
IMPORTANT NOTE TO POTENTIAL RENTERS:
We endeavour to make our particulars accurate and reliable, however, they do not constitute or form part of an offer or any contract and none is to be relied upon as statements of representation or fact. The services, systems and appliances listed in this specification have not been tested by us and no guarantee as to their operating ability or efficiency is given. All photographs and measurements have been taken as a guide only and are not precise. Floor plans where included are not to scale and accuracy is not guaranteed. If you require clarification or further information on any points, please contact us, especially if you are travelling some distance to view.
All properties are available for a minimum length of time, with the exception of short term accommodation. Please contact the branch for details. A security deposit of at least one month’s rent is required. Rent is to be paid one month in advance. It is the tenant’s responsibility to insure any personal possessions. Payment of all utilities including water rates or metered supply and Council Tax is the responsibility of the tenant in every case.
Woodlawn Crescent, Whitton, Twickenham, TW2

Additional Information
-
Property refWTT170077
-
EPCE
-
Council TaxE
-
Local authorityLondon Borough of Richmond upon Thames

Your Move Letting Agents Whitton

Rental Tools










The pin shows the exact address of the property
Energy Efficiency Rating
Very energy efficient - lower running costs
Not energy efficient - higher running costs
Current
52Potential
75CO2 Rating
Very energy efficient - lower running costs
Not energy efficient - higher running costs