This calculator provides a guide to the amount of residential stamp duty you may pay and does not guarantee this will be the actual cost. This calculation is based on the Stamp Duty Land Tax Rates for residential properties purchased from 23rd September 2022 and second homes from 31st October 2024. For more information on Stamp Duty Land Tax, click here.
 
         
         
         
         
         
         
         
         
         
         
         
         
         
        3 bedroom Semi Detached House for sale, Castle View, Prudhoe, Northumberland, NE42
Features and Description
- Three Bedroom Semi Detached House
- No onward sale. Awaiting probate.
- Elevated views and off-street parking
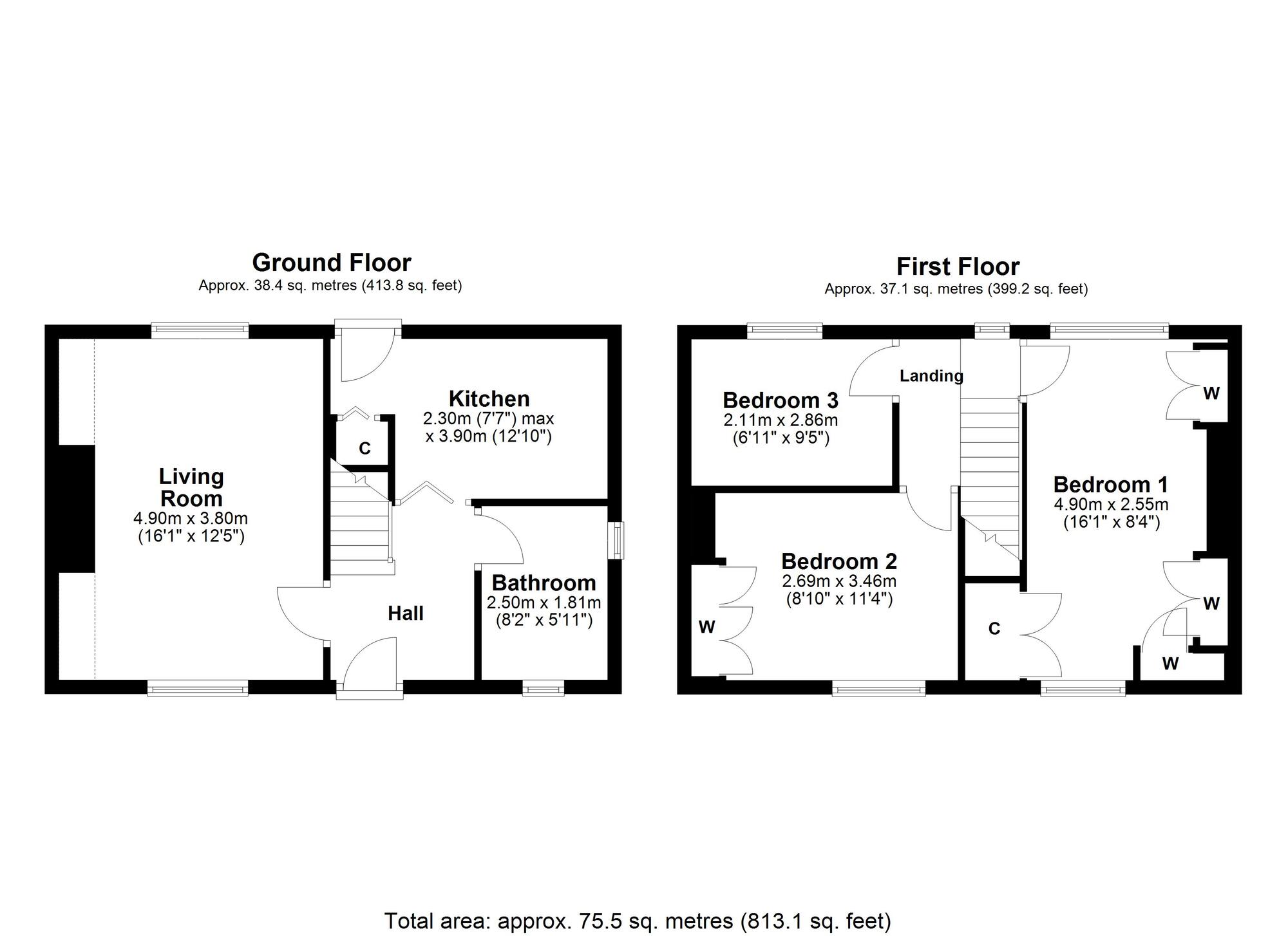
- Approx 75sq.m. / 807sq.ft.
- Northumberland County Council Tax Band A
- EPC Rating C
This semi-detached house has UPVC double glazing and gas central heating (via combi. boiler), but will likely require some cosmetic improvements, offering potential to create a home with gardens to three sides and elevated views to the front.
The house provides accommodation comprising, on the ground floor: entrance hall with stairs to the first floor, living room with front and rear windows and overhead storage cupboards to one alcove, fitted kitchen to the rear, with a built-in cupboard and a door to the rear garden. There is also a bathroom off the hall, which is fitted with a white suite comprising bath with electric shower over, pedestal wash basin and W.C.
To the first floor, the landing leads to the three bedrooms, with two double bedrooms with fitted wardrobes and the third bedroom (which has no radiator). The main bedroom also has a built-in cupboard housing the Ideal combi. boiler.
Externally, there are low maintenance gardens to three sides, including a flagged patio area to the front, another patio area/hardstanding to the rear, with a shed, and a driveway and side garden area.
The house is offered for sale subject to the grant of probate. Potential buyers should be aware that the sale cannot be completed until probate has been granted.
Location -
Castle View is situated off Station Road, in Prudhoe, which is a popular town in Northumberland, with local amenities including, shops, churches, cafes, restaurants, pubs and schools. There are public transport links through the village with bus services and a railway station, just 0.3 miles down the road, in Low Prudhoe, just off the A695, which links to Hexham (11 miles) to the west and Newcastle city centre (11 miles) to the east. Situated with the Tyne Valley, there are also several countryside walks and cycle routes in the local area.
Location
Castle View is situated off Station Road, in Prudhoe, which is a popular town in Northumberland, with local amenities including, shops, churches, cafes, restaurants, pubs and schools. There are public transport links through the village with bus services and a railway station, just 0.3 miles down the road, in Low Prudhoe, just off the A695, which links to Hexham (11 miles) to the west and Newcastle city centre (11 miles) to the east. Situated with the Tyne Valley, there are also several countryside walks and cycle routes in the local area.
IMPORTANT NOTE TO POTENTIAL PURCHASERS:
We endeavour to make our particulars accurate and reliable, however, they do not constitute or form part of an offer or any contract and none is to be relied upon as statements of representation or fact. The services, systems and appliances listed in this specification have not been tested by us and no guarantee as to their operating ability or efficiency is given. All photographs and measurements have been taken as a guide only and are not precise. Floor plans where included are not to scale and accuracy is not guaranteed. If you require clarification or further information on any points, please contact us, especially if you are travelling some distance to view. Fixtures and fittings other than those mentioned are to be agreed with the seller.
Castle View, Prudhoe, Northumberland, NE42
 
        Additional Information
- 
                    Property refCRA250170
- 
                    EPCC
- 
                    TenureFreehold
- 
                    Council TaxA
- 
                    Local authorityNorthumberland County Council
 
        Similar properties for sale by Your Move Crawcrook
 
         
         
         
         
         
         
         
         
         
         
         
         
         
        The pin shows the exact address of the property
Energy Efficiency Rating
Very energy efficient - lower running costs
Not energy efficient - higher running costs
Current
69Potential
84CO2 Rating
Very energy efficient - lower running costs
Not energy efficient - higher running costs

 
         
         
         
         
         
         
         
         
        