This calculator provides a guide to the amount of residential stamp duty you may pay and does not guarantee this will be the actual cost. This calculation is based on the Stamp Duty Land Tax Rates for residential properties purchased from 23rd September 2022 and second homes from 31st October 2024. For more information on Stamp Duty Land Tax, click here.
3 bedroom Semi Detached House for sale, Hawks Road, Kingston, KT1
Features and Description
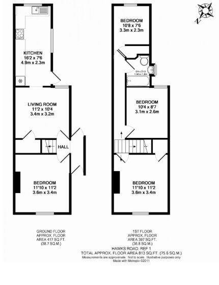
A stunning semi-detached family home with off-street parking, ideally located close to Kingston town centre. The property offers three bedrooms, two spacious reception rooms, and a kitchen leading directly onto a private garden, providing practical and flexible accommodation for both families and investors. Currently let as an HMO, the property is available with vacant possession.
Additional benefits include period features, generous living space, and potential to extend (STPP), offering scope to further enhance the property. The private garden provides useful outdoor space, while off-street parking adds everyday convenience.
Hawks Road is conveniently situated close to Kingston town centre and train station, providing direct access into central London. The property is also surrounded by green open spaces, with the River Thames nearby, offering a range of leisure and recreational opportunities.
The area is well served by excellent schooling in both the private and state sectors, along with a variety of shops, restaurants, and local amenities, making this an attractive option for families and investors alike.
IMPORTANT NOTE TO POTENTIAL PURCHASERS:
We endeavour to make our particulars accurate and reliable, however, they do not constitute or form part of an offer or any contract and none is to be relied upon as statements of representation or fact. The services, systems and appliances listed in this specification have not been tested by us and no guarantee as to their operating ability or efficiency is given. All photographs and measurements have been taken as a guide only and are not precise. Floor plans where included are not to scale and accuracy is not guaranteed. If you require clarification or further information on any points, please contact us, especially if you are travelling some distance to view. Fixtures and fittings other than those mentioned are to be agreed with the seller.
Hawks Road, Kingston, KT1
Additional Information
-
Property refSUR260108
-
EPCD
-
TenureFreehold
-
Council TaxD
-
Local authorityKingston Borough Council
The pin shows the exact address of the property
Energy Efficiency Rating
Very energy efficient - lower running costs
Not energy efficient - higher running costs
Current
67Potential
87CO2 Rating
Very energy efficient - lower running costs
Not energy efficient - higher running costs
