This calculator provides a guide to the amount of residential stamp duty you may pay and does not guarantee this will be the actual cost. This calculation is based on the Stamp Duty Land Tax Rates for residential properties purchased from 23rd September 2022 and second homes from 31st October 2024. For more information on Stamp Duty Land Tax, click here.




















5 bedroom Semi Detached House for sale, Lanchester Road, Maiden Law, Durham, DH7
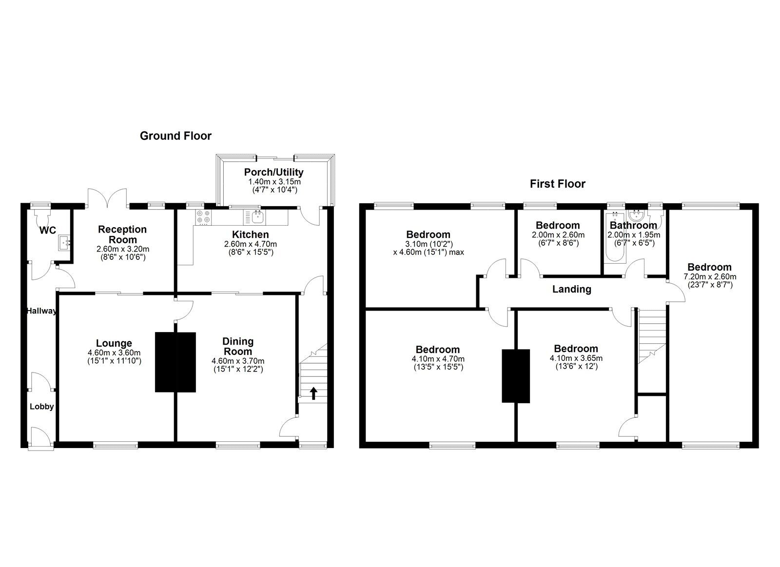
Features and Description
- Five Bedroom Semi-Detached
- No Onward Chain
- Driveway and Double Garage
- Approximate Floor Area 161/ 1733 Sq Ft
- Council Tax Band D
- EPC Rating D
Introducing a spacious and inviting five-bedroom semi-detached house with the added luxury of a double garage and a charming garden. This impressive dwelling boasts a plethora of accommodation throughout offering an abundance of versatility for any aspiring buyer. Situated within a desirable location as well as being close to excellent transport links, a viewing for this property comes highly recommended.
Internally, the property briefly comprises of an entrance hallway, downstairs WC, a reception room which offers versatility as well as french doors to the garden, a spacious lounge with feature fireplace, a dining room with feature fireplace with sliding doors that lead into the modern kitchen with additional large pantry cupboard and rear porch/utility. Upstairs are four sizable double bedrooms, a fifth single sized bedroom with shower cubicle and the internal accommodation is complete with a family bathroom.
Externally to the front of the property is a courtyard entrance with rockery and gated access to the driveway. To the rear of the property is a delightful garden with lawn and patio areas as well as a block paved driveway, double garage and outhouses.
The property benefits from gas central heating via a combi boiler and is fully double glazed but the property would still benefit from further modernisation
Lanchester Road is situated within the hamlet of Maiden Law which is around one and a half mile in both directions from the villages of Lanchester and Annfield Plain where there are many amenities on offer. Nearby Towns of Stanley and Consett are approximately 4 and 7 miles away respectively and excellent transport links to the regional cities of Durham and Newcastle are accessible close by. If you looking for a semi-rural location with the convenience of good transport links and popular nearby villages, then this property will certainly meet your needs.
IMPORTANT NOTE TO POTENTIAL PURCHASERS:
We endeavour to make our particulars accurate and reliable, however, they do not constitute or form part of an offer or any contract and none is to be relied upon as statements of representation or fact. The services, systems and appliances listed in this specification have not been tested by us and no guarantee as to their operating ability or efficiency is given. All photographs and measurements have been taken as a guide only and are not precise. Floor plans where included are not to scale and accuracy is not guaranteed. If you require clarification or further information on any points, please contact us, especially if you are travelling some distance to view. Fixtures and fittings other than those mentioned are to be agreed with the seller.
Lanchester Road, Maiden Law, Durham, DH7

Additional Information
-
Property refQCO240035
-
EPCD
-
Council TaxD
-
Local authorityDurham Council Council





















The pin shows the exact address of the property
Energy Efficiency Rating
Very energy efficient - lower running costs
Not energy efficient - higher running costs
Current
57Potential
82CO2 Rating
Very energy efficient - lower running costs
Not energy efficient - higher running costs