This calculator provides a guide to the amount of residential stamp duty you may pay and does not guarantee this will be the actual cost. This calculation is based on the Stamp Duty Land Tax Rates for residential properties purchased from 23rd September 2022 and second homes from 31st October 2024. For more information on Land and Buildings Transaction Tax, click here.
2 bedroom Semi Detached House for sale, Moss Street, Elgin, Moray, IV30
Features and Description
- EPC Band D
- Council Tax Band C
- Immaculate condition throughout
- Spacious dual-aspect reception room
- Stylish contemporary interiors
- Large modern dining kitchen
- Two generous double bedrooms
- Master bedroom with built-in wardrobes
- Luxurious bathroom with jacuzzi bath
- Private lawned garden with seating
- Prime location near amenities
- Gas central heating and double glazing
Offered to the market is this immaculate two-bedroom semi-detached house, beautifully presented and finished to a quality standard throughout. Set in a central location with convenient access to public transport links, nearby schools, and a host of local amenities, this traditional property boasts a contemporary interior ideal for modern living.
Upon entering, you are greeted by a spacious reception room featuring a charming fireplace and dual aspect windows, allowing natural light to flood the space. The stylishly decorated interiors continue into the large kitchen which offers ample dining space, dual aspect windows, and an abundance of natural light. A convenient WC is situated off the kitchen for added practicality.
Upstairs, you will find two generous double bedrooms. The main bedroom benefits from built-in wardrobes, while the second bedroom is fitted with its own wardrobe space, providing plenty of storage. The family bathroom is exquisitely finished with a separate jacuzzi bath, shower cubicle, and tasteful tiling.
The property is further enhanced by gas central heating and double glazing, ensuring year-round comfort. Outside, the private lawned garden features mature trees and shrubs, a dedicated seating area, and a stone wall boundary - offering a great outdoor entertaining and relaxing space. An access path leads to a wooden shed, with a right of way for the neighbouring property. On-street parking is available at the front of the building.
Presented in move-in condition, this stunning home combines traditional charm with modern convenience, making it an exceptional opportunity for discerning buyers. Please note that curtains and the lounge light fitting will not be included with the property sale – entry will be available from February 2026 onward. Early viewing is highly recommended.
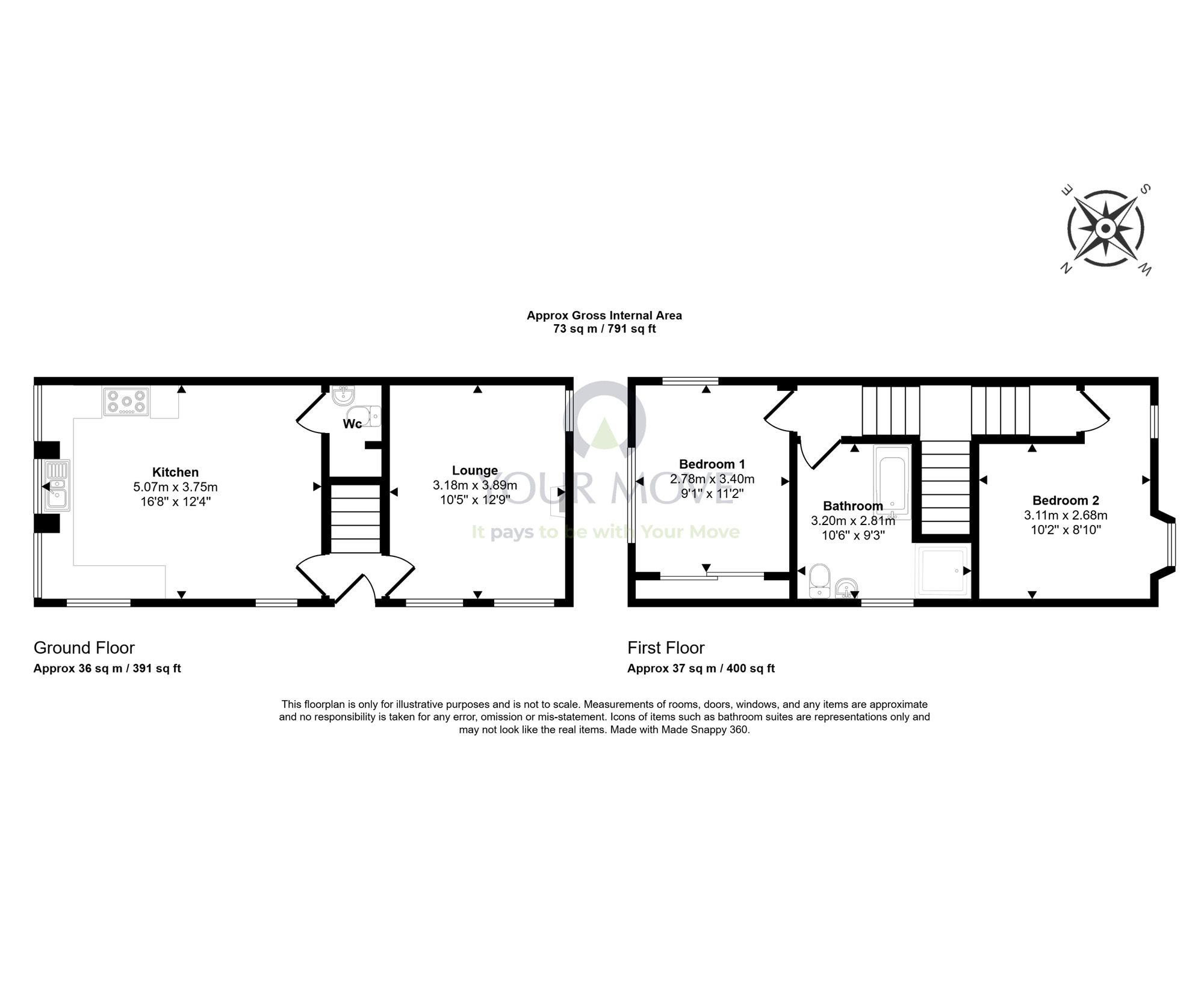
Hallway
The entrance to this home opens into the hallway which provides access to the lounge, kitchen and has the staircase to the first floor.
Lounge
10'5" x 12'9" (3.18m x 3.89m)
A spacious, cosy feeling reception room featuring a charming fireplace and dual aspect windows, allowing natural light to flood the space.
Kitchen
16'8" x 12'4" (5.07m x 3.75m)
The stylishly decorated interiors continue into the large kitchen which offers ample dining space, dual aspect windows and an abundance of natural light. The kitchen is a U-shape design providing plenty worktop space and cupboard storage – a great place for entertaining guests.
Wc
A convenient WC with wash hand basin is situated off the kitchen for added practicality.
Landing
To the first floor, the landing separates to both the left and right, providing access to two bedrooms and a bathroom.
Bedroom 1
9'1" x 11'2" (2.78m x 3.40m)
There’s a generous main bedroom featuring built-in wardrobes with mirror sliding doors and dual aspect windows allowing for an array of natural light.
Bedroom 2
10'2" x 8'10" (3.11m x 2.68m)
The second bedroom is another generous double room. This room has a discrete boiler cupboard with mirror front and plenty of space for a free-standing wardrobe.
Bathroom
10'6" x 9'3" (3.20m x 2.81m)
The bathroom boasts a WC, wash hand basin with vanity unit and storage, a jacuzzi bath and a separate shower cubicle. This room has been finished tastefully with neutral coloured tiles.
External
The entrance to this home is via gated access from Moss Street. An access path leads to a wooden shed, with a right of way for the neighbouring property. The private lawned garden features mature trees and shrubs, a dedicated seating area and a stone wall boundary - offering a great outdoor entertaining and relaxing space.
Additional
This property is further enhanced by gas central heating and double glazing, ensuring year-round comfort. Presented in move-in condition, this stunning home combines traditional charm with modern convenience, making it an exceptional opportunity for discerning buyers. Please note that curtains and the lounge light fitting will not be included with the property sale – entry will be available from February 2026 onward.. Early viewing is highly recommended.
IMPORTANT NOTE TO POTENTIAL PURCHASERS:
We endeavour to make our particulars accurate and reliable, however, they do not constitute or form part of an offer or any contract and none is to be relied upon as statements of representation or fact. The services, systems and appliances listed in this specification have not been tested by us and no guarantee as to their operating ability or efficiency is given. All photographs and measurements have been taken as a guide only and are not precise. Floor plans where included are not to scale and accuracy is not guaranteed. If you require clarification or further information on any points, please contact us, especially if you are travelling some distance to view. Fixtures and fittings other than those mentioned are to be agreed with the seller.
Moss Street, Elgin, Moray, IV30
 
        Additional Information
- 
                    Property refELG250284
- 
                    EPCD
- 
                    TenureFreehold
- 
                    Council TaxC
- 
                    Local authorityMoray Council
 
         
        A spacious, cosy feeling reception room featuring a charming fireplace and dual aspect windows, allowing natural light to flood the space.
 
         
        The stylishly decorated interiors continue into the large kitchen which offers ample dining space, dual aspect windows and an abundance of natural light. The kitchen is a U-shape design providing plenty worktop space and cupboard storage – a great place for entertaining guests.
 
         
         
         
        There’s a generous main bedroom featuring built-in wardrobes with mirror sliding doors and dual aspect windows allowing for an array of natural light.
 
         
        The second bedroom is another generous double room. This room has a discrete boiler cupboard with mirror front and plenty of space for a free-standing wardrobe.
 
         
        The bathroom boasts a WC, wash hand basin with vanity unit and storage, a jacuzzi bath and a separate shower cubicle. This room has been finished tastefully with neutral coloured tiles.
 
        The entrance to this home is via gated access from Moss Street. An access path leads to a wooden shed, with a right of way for the neighbouring property. The private lawned garden features mature trees and shrubs, a dedicated seating area and a stone wall boundary - offering a great outdoor entertaining and relaxing space.
 
         
         
        The pin shows the exact address of the property
Energy Efficiency Rating
Very energy efficient - lower running costs
Not energy efficient - higher running costs
Current
55Potential
71CO2 Rating
Very energy efficient - lower running costs
Not energy efficient - higher running costs

 
         
         
         
         
         
         
        