3 bedroom Semi Detached House to rent, Fabian Street, London, E6
Available Unfurnished, from 24/01/2026
Features and Description
- EPC D
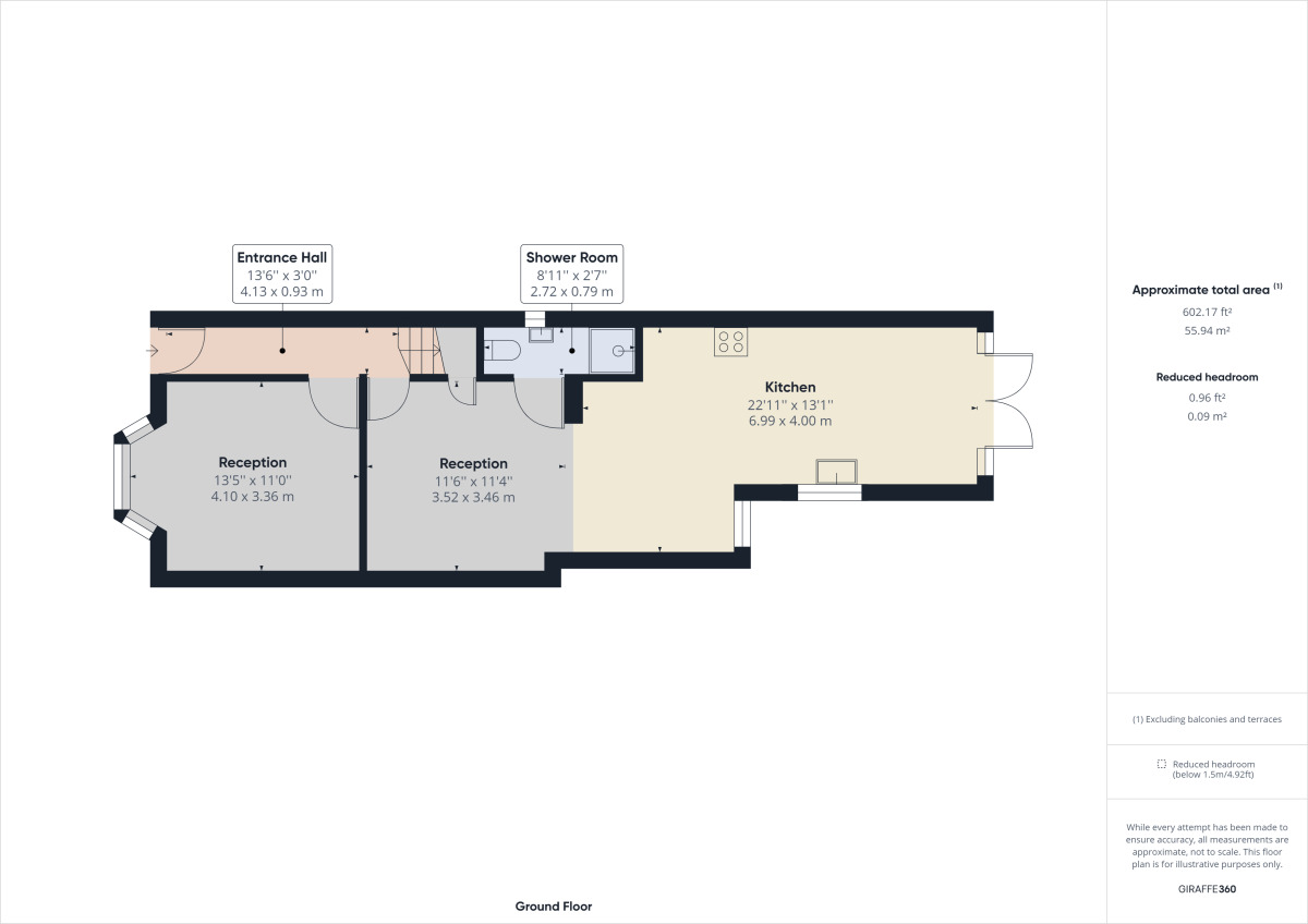
- THREE DOUBLE BEDROOMS
- EXTENDED TO REAR
- STUNNING KITCHEN
- MODERN BATHROOMS
- FRESHLY PAINTED
- TWO BATHROOMS
- CALL NOW TO BOOK YOUR VIEWING
- GAS CENTRAL HEATING
Single glazed window to the rear elevation. Timber tongue and grooved ceiling with coving and comprising low level WC and hand wash basin with tiled walling.
IMPORTANT NOTE TO POTENTIAL RENTERS:
We endeavour to make our particulars accurate and reliable, however, they do not constitute or form part of an offer or any contract and none is to be relied upon as statements of representation or fact. The services, systems and appliances listed in this specification have not been tested by us and no guarantee as to their operating ability or efficiency is given. All photographs and measurements have been taken as a guide only and are not precise. Floor plans where included are not to scale and accuracy is not guaranteed. If you require clarification or further information on any points, please contact us, especially if you are travelling some distance to view.
All properties are available for a minimum length of time, with the exception of short term accommodation. Please contact the branch for details. A security deposit of at least one month’s rent is required. Rent is to be paid one month in advance. It is the tenant’s responsibility to insure any personal possessions. Payment of all utilities including water rates or metered supply and Council Tax is the responsibility of the tenant in every case.
Fabian Street, London, E6
Additional Information
-
Property refQRO220118
-
EPCD
-
Local authorityLondon Borough of Newham Council Tax Dept
Your Move Letting Agents Romford
Rental Tools
The pin shows the exact address of the property
Energy Efficiency Rating
Very energy efficient - lower running costs
Not energy efficient - higher running costs
Current
62Potential
85CO2 Rating
Very energy efficient - lower running costs
Not energy efficient - higher running costs
