This calculator provides a guide to the amount of residential stamp duty you may pay and does not guarantee this will be the actual cost. This calculation is based on the Stamp Duty Land Tax Rates for residential properties purchased from 23rd September 2022 and second homes from 31st October 2024. For more information on Stamp Duty Land Tax, click here.
4 bedroom Detached House for sale, Abbey Drive, Newcastle upon Tyne, Tyne and Wear, NE5
Features and Description
- Four bedroom detached house
- Stunning Kitchen/dining room
- Executive estate
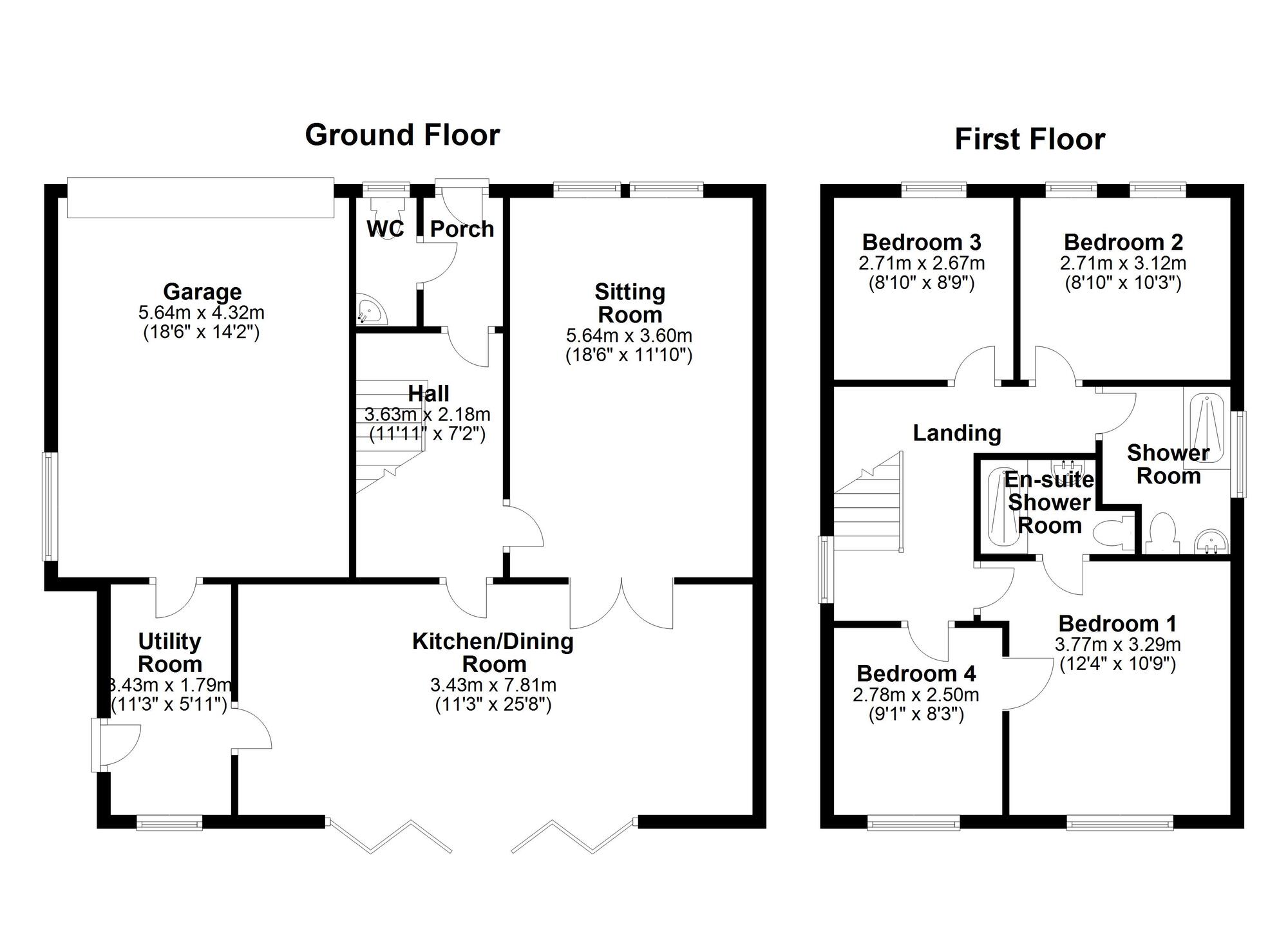
- Floor Area - Approximate 1280 Sq.ft / 119 Sq.m
- Council Tax Band - E
- EPC Rating - C
Situated on the sought-after Abbey Grange estate, this impressive four bedroom executive family home has been much improved and finished to a high standard throughout.
This superb home combines style, space and practicality, with an open-plan kitchen/dining area creating the perfect setting for everyday family living and entertaining.
The accommodation briefly comprises: welcoming entrance hall, cloakroom/WC, great size lounge with media wall. The stunning kitchen/dining room is the hub of the house and provides everything needed for modern life including a number of built in appliances and fantastic bi-folding doors linking the outside and inside space. Leading from the kitchen is a utility room which provides internal access to the double garage.
To the first floor there are four generously sized double bedrooms, with the principal suite benefitting from a modern en-suite shower room with the fourth bedroom currently used as dressing room, but also offering the versatility to be a bedroom again or a home office. The remaining bedrooms are served by a stylish and contemporary family bathroom/WC, completing the first-floor accommodation.
Externally, the property enjoys attractive front and enclosed rear gardens, driveway parking for multiple vehicles, and a double garage.
Abbey Grange is a very much sought after exclusive development to the west of Newcastle. It also provides easy access to the A69 and A1 Trunk roads with link to the central motorway network. Newcastle International Airport is three miles north and provides a range of national and international flights. Newcastle city provides a vast array of schooling, shopping and recreational facilities including the Metro Centre, Sage and Quayside.
We understand the property is leasehold with 947 years remaining and a ground rent of £50 per annum.
IMPORTANT NOTE TO POTENTIAL PURCHASERS:
We endeavour to make our particulars accurate and reliable, however, they do not constitute or form part of an offer or any contract and none is to be relied upon as statements of representation or fact. The services, systems and appliances listed in this specification have not been tested by us and no guarantee as to their operating ability or efficiency is given. All photographs and measurements have been taken as a guide only and are not precise. Floor plans where included are not to scale and accuracy is not guaranteed. If you require clarification or further information on any points, please contact us, especially if you are travelling some distance to view. Fixtures and fittings other than those mentioned are to be agreed with the seller.
Abbey Drive, Newcastle upon Tyne, Tyne and Wear, NE5
Additional Information
-
Property refQWD250600
-
EPCC
-
TenureLeasehold
-
Lease length946 years
-
Council TaxE
-
Local authorityNewcastle City Council
-
Ground Rent£50
-
Ground Rent ReviewContact the branch
-
Service ChargeContact the branch
Similar properties for sale by Your Move West Denton
The pin shows the exact address of the property
Energy Efficiency Rating
Very energy efficient - lower running costs
Not energy efficient - higher running costs
Current
69Potential
76CO2 Rating
Very energy efficient - lower running costs
Not energy efficient - higher running costs
