Image 2
£200,000 Offers in the region of

Land/Plot for sale,
Land At Pipes Meadow, Wolverhampton, West Midlands, WV14

Anthony Bishop Branch Manager
Anthony Bishop
Branch Manager
Arrange a viewingSave

Features and Description

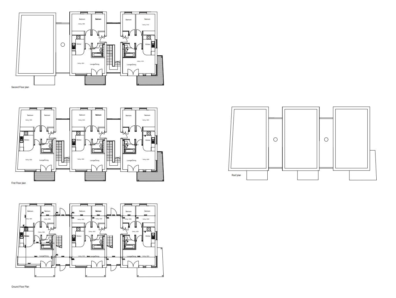
Erection of three and two storey building containing eight apartments of 530 sq ft (50 m2) with associated landscaping | Site Adjacent To Bilston Post Office Hall Street Pipes Meadow Wolverhampton West Midlands

Planning reference - 20/01426/FUL

IMPORTANT NOTE TO POTENTIAL PURCHASERS:
We endeavour to make our particulars accurate and reliable, however, they do not constitute or form part of an offer or any contract and none is to be relied upon as statements of representation or fact. The services, systems and appliances listed in this specification have not been tested by us and no guarantee as to their operating ability or efficiency is given. All photographs and measurements have been taken as a guide only and are not precise. Floor plans where included are not to scale and accuracy is not guaranteed. If you require clarification or further information on any points, please contact us, especially if you are travelling some distance to view. Fixtures and fittings other than those mentioned are to be agreed with the seller.

Land At Pipes Meadow, Wolverhampton, West Midlands, WV14

Additional Information

  • Property ref
    WOL250555
  • Tenure
    Freehold
  • Council Tax
    NA
  • Local authority
    Wolverhampton City Council
Anthony Bishop Branch Manager
Anthony Bishop
Branch Manager

Do you have a property you need to sell?

Book a free valuation to get an accurate valuation of how much your home is worth.

Your Move Estate Agents Wednesfield

Wednesfield Branch Manager
Your Move Wednesfield
21 High Street, Wednesfield, Wolverhampton, WV11 1ST
Mon - Fri09:00 - 17:30Saturday09:00 - 16:00SundayClosed
Disabled access available

Buyer Tools

Mortgage Calculator

Monthly payment

£

Borrowing £180,000 and repaying over 25 years with a 2.5% interest rate.

Now you know what you could be paying, book an appointment with our partners Embrace Financial Services to find the right mortgage for you.

Stamp duty calculator

Calculate

You would pay

This calculator provides a guide to the amount of residential stamp duty you may pay and does not guarantee this will be the actual cost. This calculation is based on the Stamp Duty Land Tax Rates for residential properties purchased from 23rd September 2022 and second homes from 31st October 2024. For more information on Stamp Duty Land Tax, click here.

Nearby locations
Photos
Floorplan
Map view
Street view

The pin shows the exact address of the property

Energy Efficiency Rating

Very energy efficient - lower running costs

(92 plus) A
(81 - 91) B
(69 - 80) C
(55 - 68) D
(39 - 54) E
(21 - 38) F
(1 - 20) G

Not energy efficient - higher running costs

Current

N/A

Potential

N/A

CO2 Rating

Very energy efficient - lower running costs

(92 plus) A
(81 - 91) B
(69 - 80) C
(55 - 68) D
(39 - 54) E
(21 - 38) F
(1 - 20) G

Not energy efficient - higher running costs

Current

N/A

Potential

N/A