3 bedroom Detached Bungalow for sale, Deepdale Road, Belper, Derbyshire, DE56
Features and Description
- DETACHED BUNGALOW
- THREE BEDROOMS
- OFF STREET PARKING, CARPORT & GARAGE
- LEVEL PLOT
- EXTENDED TO THE REAR
- VIEWINGS RECOMMENDED
** OFFERED FOR SALE WITH NO UPWARD CHAIN **
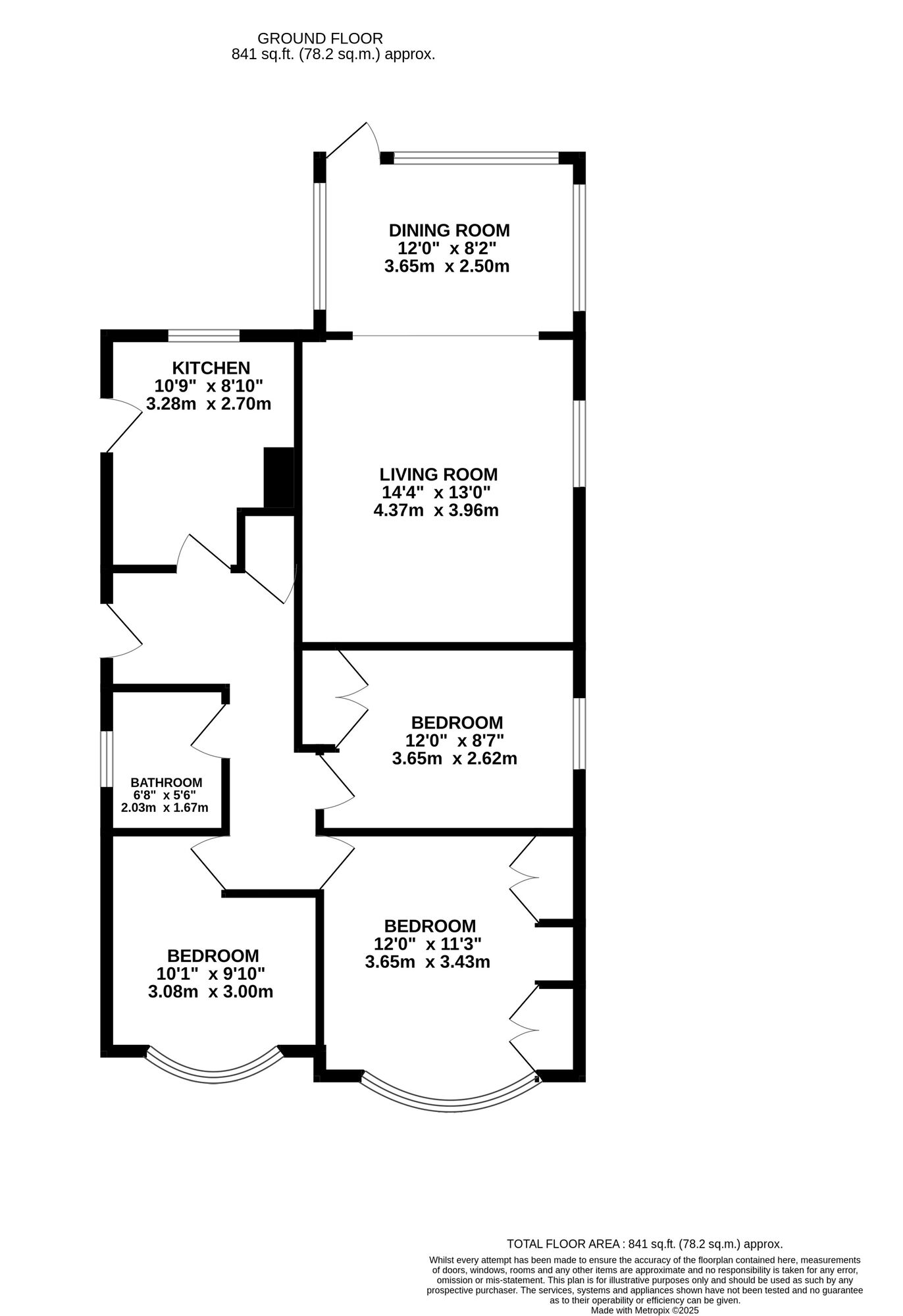
This extended detached bungalow is located within a popular residential area close to local shops, amenities and public transport links. In brief the accommodation comprises of an entrance hall, extended lounge/dining room, kitchen, three bedrooms and a bathroom. Further benefits include front and rear gardens, off street parking and a garage.
Hallway
Entrance is gained a upvc door with double glazed inserts. Here there is a radiator, telephone point and access to the loft space via a ceiling hatch. Allowing access to the kitchen, lounge diner, all three bedrooms and bathroom.
Kitchen
Comprising of a range of wood effect wall, base and drawer units, rolled edge laminate countertops that house the inset sink with side drainer and mixer tap. Further to this, there is space and point for two under-counter appliances and a freestanding cooker. Other features include a tiled floor covering, a rear facing UPVC double glaze window a side facing UPVC door and a central heating radiator.
Lounge Diner
A generously proportioned living space incorporating an extension to the rear elevation. This allows ample space for both living room and dining room furniture. Here there is wall lighting, television point, three central heating radiators and windows to three elevations. A double glazed UPVC door that opens onto the rear garden.
Bedroom 1
A front facing double bedroom that benefits from a range of fitted furniture, including wardrobes and drawer units. Here there is a central heating radiator and a front facing UPVC double glazed window.
Bedroom 2
A front facing bedroom with a central heating radiator and forward facing UPVC double glazed window.
Bedroom 3
A side facing bedroom that benefits from fitted wardrobe space, a central heating radiator and a UPVC double glazed window.
Bathroom
Comprising of a low-level WC vanity style sink unit and a panelled bath with mixer tap and shower attachment. Further to this, there is a UPVC double glazed window to the side elevation partially tiled walls, central heating radiator and a tiled floor.
Garage
Having a forward facing vehicle access door, a side facing UPVC double window, power and lighting. A new PVC double door opens onto the rear garden.
External
To the front of the property is a shingle border that is well stocked with various mature trees and shrubs. A blocked paved driveway runs up the side of the property, providing ample off street parking and allowing access to a canopied carport and the garage.To the rear of the property there is a flagged patio area, mature planted borders, an external tap and an artificially laid lawn. In addition to this these is a greenhouse surrounded by raised boarders.
IMPORTANT NOTE TO POTENTIAL PURCHASERS:
We endeavour to make our particulars accurate and reliable, however, they do not constitute or form part of an offer or any contract and none is to be relied upon as statements of representation or fact. The services, systems and appliances listed in this specification have not been tested by us and no guarantee as to their operating ability or efficiency is given. All photographs and measurements have been taken as a guide only and are not precise. Floor plans where included are not to scale and accuracy is not guaranteed. If you require clarification or further information on any points, please contact us, especially if you are travelling some distance to view. Fixtures and fittings other than those mentioned are to be agreed with the seller.
Additional Information
-
Property refQBP240170
-
TenureFreehold
-
Council TaxC
-
Local authorityAmber Valley Borough Council
