This calculator provides a guide to the amount of residential stamp duty you may pay and does not guarantee this will be the actual cost. This calculation is based on the Stamp Duty Land Tax Rates for residential properties purchased from 23rd September 2022 and second homes from 31st October 2024. For more information on Stamp Duty Land Tax, click here.
4 bedroom Detached Bungalow for sale, Station Bank, Ryton, Tyne and Wear, NE40
Features and Description
- Four Bedroom Detached Bungalow
- Two Reception Rooms Two Bathrooms
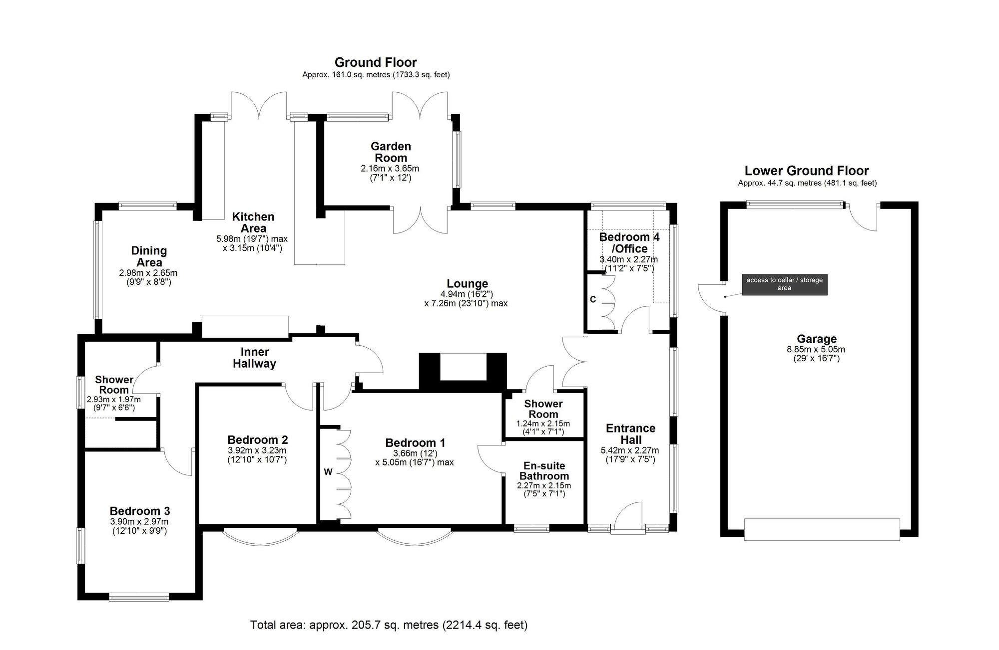
- Approx 149 Sq M = 1603.82 Sq Ft
- Gateshead council Tax Band E
- EPC Rating C
- Viewing Essential
This detached bungalow is nestled within a beautiful semi-rural spot in the Conservation Area within the old village of Ryton and is ideally placed for woodland walks accessed from the bottom of Station Bank.
The bungalow has been extended by previous owners and improved by the current owners, since 2021, including a new Baxi gas combi. boiler fitted in 2024. With UPVC double glazing throughout, this spacious cottage has accommodation on one level, with the adjoining double garage accessed from a lower level, from the rear or via the large driveway.
The accommodation begins with a spacious entrance hall, leading to a versatile home office/bedroom directly ahead and with double doors into the open-plan living area, which includes a large lounge with oak flooring and a multi-fuel stove in fireplace, open into the kitchen/breakfast room with stone-tiled floor, granite worktops and breakfast bar, contemporary units and integrated appliances, and a dining area in the bay to the side. Off the living room is a shower room/W.C. and, to the rear, a garden room, which could be used for a variety of purposes and has French doors out to the rear patio and garden. There also French doors out from the kitchen onto the Indian sandstone patio and steps leading up to the lawned rear garden.
An inner hallway from the living area leads to the main three bedrooms, which are all 'double bedrooms' with oak flooring and are situated to the front, overlooking the lush, well-stocked garden. The principal bedroom suite has a bow window, fitted wardrobes and an en suite bathroom. At the end of the hallway is the stylish main shower room, which has a spacious walk-in tiled cubicle with a dual-head mains-fed shower, a wash bowl on vanity unit and W.C.
Externally, this property really excels; the 0.62-acre plot is surrounded by tall, mature trees, which provide a natural screen around the gardens. The rear garden has a raised, level lawn - with beautiful twin Weeping Willow trees - accessed via the Indian sandstone steps out from the kitchen and garden room, with two patio areas including one that has a covered pergola, which makes an excellent area for barbecues and entertaining. There are steps up to a woodland walk along one side of the garden and further patio areas to the side and the front, where there is a picturesque and well-stocked garden with a small pond and water feature, and an impressive Indian sandstone walkway providing access from the front gate. There are also double gates for access into the driveway, which has space for several vehicles, and another gate to the side of the garage, which provides access (including for cars) to the rear, with a wide path leading all the way up to the additional garage/stables at the top of the garden, which have two garage doors and are partitioned to provide three distinct spaces, with lights, electric and workbenches. There is also a poly-tunnel and there are external power points.
The double garage, at the front, has an electric roller door and a rear door for pedestrian access, electric sockets, two sinks and a door for access into a cellar area beneath the bungalow.
Location -
Situated on 'The Willows' in Ryton's old village, the property is within a hundred yards of the shops, facilities and amenities along Barmoor Lane, including the renowned Montessori nursery/pre-school in the community centre. There are schools, churches, public houses, cafes, parks and public transport links in the village and along the B6317. From the old village there are walks towards the River Tyne and access via the A695 bypass to others major road links, and to the Metro Centre and Newcastle city centre, which is within 7 miles (to the east). There are also rail links, along the Carlisle to Newcastle line, with stations in nearby Blaydon, Wylam and Prudhoe.
Location
Situated on 'The Willows' in Ryton's old village, the property is within a hundred yards of the shops, facilities and amenities along Barmoor Lane, including the renowned Montessori nursery/pre-school in the community centre. There are schools, churches, public houses, cafes, parks and public transport links in the village and along the B6317. From the old village there are walks towards the River Tyne and access via the A695 bypass to others major road links, and to the Metro Centre and Newcastle city centre, which is within 7 miles (to the east). There are also rail links, along the Carlisle to Newcastle line, with stations in nearby Blaydon, Wylam and Prudhoe.
IMPORTANT NOTE TO POTENTIAL PURCHASERS:
We endeavour to make our particulars accurate and reliable, however, they do not constitute or form part of an offer or any contract and none is to be relied upon as statements of representation or fact. The services, systems and appliances listed in this specification have not been tested by us and no guarantee as to their operating ability or efficiency is given. All photographs and measurements have been taken as a guide only and are not precise. Floor plans where included are not to scale and accuracy is not guaranteed. If you require clarification or further information on any points, please contact us, especially if you are travelling some distance to view. Fixtures and fittings other than those mentioned are to be agreed with the seller.
Station Bank, Ryton, Tyne and Wear, NE40
Additional Information
-
Property refCRA250196
-
EPCC
-
TenureFreehold
-
Council TaxE
-
Local authorityGateshead Council
Similar properties for sale by Your Move Crawcrook
The pin shows the exact address of the property
Energy Efficiency Rating
Very energy efficient - lower running costs
Not energy efficient - higher running costs
Current
71Potential
83CO2 Rating
Very energy efficient - lower running costs
Not energy efficient - higher running costs
