This calculator provides a guide to the amount of residential stamp duty you may pay and does not guarantee this will be the actual cost. This calculation is based on the Stamp Duty Land Tax Rates for residential properties purchased from 23rd September 2022 and second homes from 31st October 2024. For more information on Stamp Duty Land Tax, click here.
5 bedroom Detached House for sale, Carnoustie, Washington, Tyne and Wear, NE37
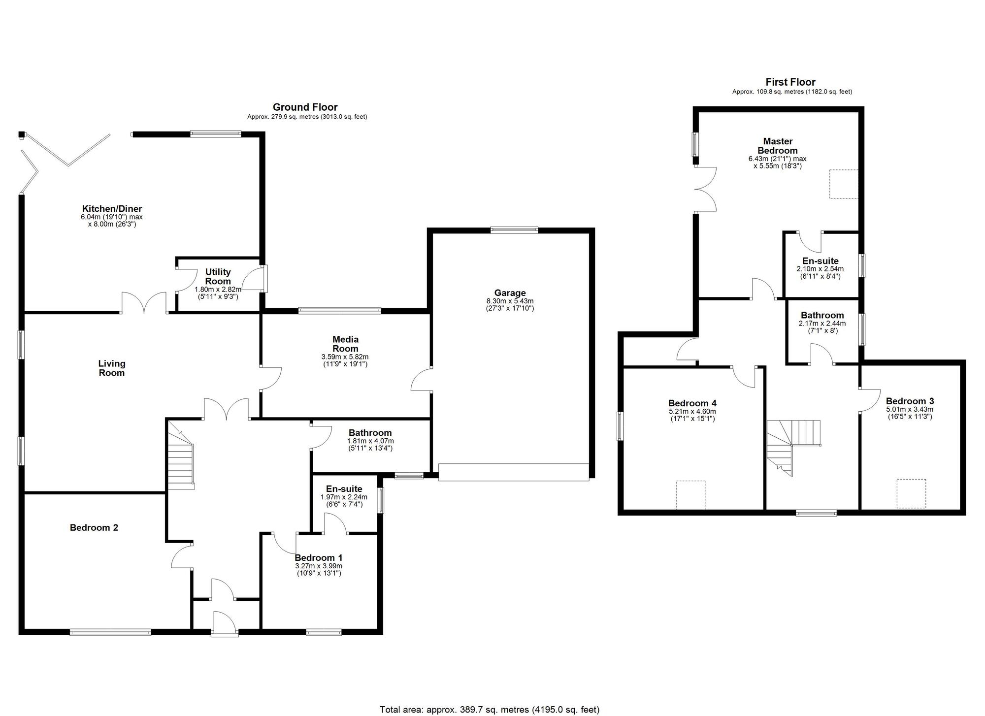
Features and Description
- No onward chain
- Five bedroom detached home
- Beautiful gardens
- Immaculate throughout
- Council Tax Band F
- EPC Rating: C
Outstanding Five-Bedroom Family Home on a Tranquil 0.5-Acre Plot, offered to the market with no onward chain
Tucked away in the corner of a peaceful cul-de-sac and set within beautifully landscaped grounds, this exceptional five-bedroom home offers generous, contemporary living space, perfect for modern family life.
Key Features:
Extensively extended and modernised throughout
Impressive 0.5-acre private plot
No onward chain
Double garage with electric doors
Seamless indoor/outdoor living with bi-fold doors
From the moment you enter, the property impresses with a stunning glass and wood staircase beneath Velux windows, flooding the hallway with natural light.
Accommodation includes:
A spacious living room with a charming log burner and garden views
Large, high-spec kitchen/diner with central island seating, three NEFF ovens, and quality fitted appliances
Bi-fold doors from the kitchen open onto the garden, perfect for entertaining
Separate utility room with external access
Generously sized media room, ideal for family entertainment
Two ground floor bedrooms with an adjacent modern bathroom – ideal for guests or older children
Upstairs, the home continues to impress:
Two double bedrooms with Velux windows, fitted wardrobes, and spotlights
Expansive landing area, ideal as a home office or reading nook
Luxurious master suite with fitted furniture, Velux window, en suite bathroom, and private balcony with stunning views
External Highlights:
The extensive and secluded gardens offer a haven for relaxation and play, while the double garage with electric doors provides ample storage and secure parking.
This is a rare opportunity to acquire a thoughtfully designed and meticulously maintained home in an idyllic setting.
IMPORTANT NOTE TO POTENTIAL PURCHASERS:
We endeavour to make our particulars accurate and reliable, however, they do not constitute or form part of an offer or any contract and none is to be relied upon as statements of representation or fact. The services, systems and appliances listed in this specification have not been tested by us and no guarantee as to their operating ability or efficiency is given. All photographs and measurements have been taken as a guide only and are not precise. Floor plans where included are not to scale and accuracy is not guaranteed. If you require clarification or further information on any points, please contact us, especially if you are travelling some distance to view. Fixtures and fittings other than those mentioned are to be agreed with the seller.
Carnoustie, Washington, Tyne and Wear, NE37
Additional Information
-
Property refQWS250141
-
EPCC
-
TenureFreehold
-
Council TaxF
Similar properties for sale by Your Move Washington
The pin shows the exact address of the property
Energy Efficiency Rating
Very energy efficient - lower running costs
Not energy efficient - higher running costs
Current
76Potential
82CO2 Rating
Very energy efficient - lower running costs
Not energy efficient - higher running costs
