This calculator provides a guide to the amount of residential stamp duty you may pay and does not guarantee this will be the actual cost. This calculation is based on the Stamp Duty Land Tax Rates for residential properties purchased from 23rd September 2022 and second homes from 31st October 2024. For more information on Stamp Duty Land Tax, click here.
 
         
         
         
         
         
         
         
         
         
         
         
         
         
        3 bedroom Detached House for sale, Greenock Way, Lincoln, Lincolnshire, LN6
Features and Description
- Detached House
- Three Bedrooms
- Ensuite to Bedroom 1
- EPC Grade C
- City of Lincoln Council
- Council Tax Band C
- Garage & Driveway
- Perfect Upsize
***IDEAL FOR GROWING FAMILIES. CUL-DE-SAC POSITION***
Welcome to 10 Greenock Way. This beautifully presented and recently upgraded Three bedroom Detached property is ready to move into and would be perfect for buyers who are seeking a move up the property ladder.
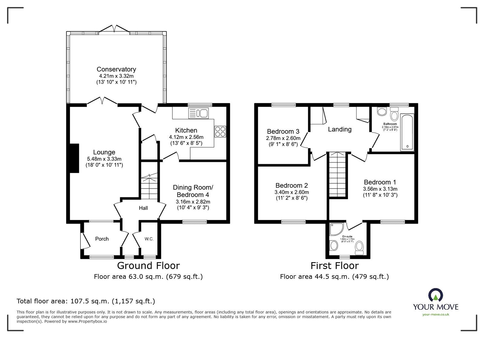
Briefly comprising; Porch, Hall, WC, Lounge, Dining Room, Kitchen, Conservatory, Three Bedrooms with Ensuite to Bedroom 1, Bathroom. Externally benefitting from a Garage, large Driveway and fully enclosed Rear Garden.
Freehold/City of Lincoln Council-Band C/EPC Grade C.
Porch
Entrance door, double glazed windows to front aspect, door into:
Hall
Stairs rising to first floor.
WC
Having low level WC, vanity wash hand basin, double glazed frosted window to front aspect, radiator.
Lounge
17'12" x 10'11" (5.48m x 3.33m)
Double glazed window to front aspect, double doors to rear aspect, two radiators.
Dining Room / Bedroom 4
10'4" x 9'3" (3.16m x 2.82m)
Currently used as a bedroom. Double glazed window to front aspect, radiator.
Kitchen
13'6" x 8'5" (4.12m x 2.56m)
Being fitted with a range of eye level wall and base units with contrasting work surfaces fitted over, double oven with 4 ring electric hob and stainless steel extractor hood over, one and a half bowl sink unit with drainer and Quooker tap over, integrated dishwasher, double glazed window to rear aspect, space and plumbing for washing machine, space for fridge freezer, frosted rear door, understairs storage cupboard.
Conservatory
13'10" x 10'11" (4.21m x 3.32m)
Brick built and fully double glazed with double doors to the rear aspect.
Landing
Double glazed window to rear aspect, radiator, cupboard housing gas combination boiler.
Bedroom 1
11'8" x 10'3" (3.56m x 3.13m)
Double glazed window to front aspect, radiator.
En-Suite
5'12" x 5'7" (1.82m x 1.70m)
Walk in wet room, low level WC, floating sink unit, double glazed frosted window to front aspect, radiator, shaving point.
Bedroom 2
11'2" x 8'6" (3.40m x 2.60m)
Double glazed window to front aspect, radiator, loft access (part boarded).
Bedroom 3
9'1" x 8'6" (2.78m x 2.60m)
Double glazed window to rear aspect, radiator.
Bathroom
7'2" x 6'9" (2.18m x 2.07m)
Comprising of panelled bath with shower fitted over, low level WC, vanity wash hand basin, double glazed frosted window to rear aspect, radiator.
Garage
Electric roller door, power and lighting, personal side door.
Outside
Driveway to the front which is laid to gravel and concrete which extends to the side of the property and leads to the garage. The rear garden is laid to artificial lawn with a patio area all of which is enclosed by fencing.
IMPORTANT NOTE TO POTENTIAL PURCHASERS:
We endeavour to make our particulars accurate and reliable, however, they do not constitute or form part of an offer or any contract and none is to be relied upon as statements of representation or fact. The services, systems and appliances listed in this specification have not been tested by us and no guarantee as to their operating ability or efficiency is given. All photographs and measurements have been taken as a guide only and are not precise. Floor plans where included are not to scale and accuracy is not guaranteed. If you require clarification or further information on any points, please contact us, especially if you are travelling some distance to view. Fixtures and fittings other than those mentioned are to be agreed with the seller.
Greenock Way, Lincoln, Lincolnshire, LN6
 
        Additional Information
- 
                    Property refNHY250158
- 
                    EPCC
- 
                    TenureFreehold
- 
                    Council TaxC
- 
                    Local authorityCity Of Lincoln Council
 
         
        Double glazed window to front aspect, double doors to rear aspect, two radiators.
 
         
        Being fitted with a range of eye level wall and base units with contrasting work surfaces fitted over, double oven with 4 ring electric hob and stainless steel extractor hood over, one and a half bowl sink unit with drainer and Quooker tap over, integrated dishwasher, double glazed window to rear aspect, space and plumbing for washing machine, space for fridge freezer, frosted rear door, understairs storage cupboard.
 
         
        Brick built and fully double glazed with double doors to the rear aspect.
 
        Double glazed window to front aspect, radiator.
 
        Walk in wet room, low level WC, floating sink unit, double glazed frosted window to front aspect, radiator, shaving point.
 
        Double glazed window to front aspect, radiator, loft access (part boarded).
 
        Double glazed window to rear aspect, radiator.
 
        Comprising of panelled bath with shower fitted over, low level WC, vanity wash hand basin, double glazed frosted window to rear aspect, radiator.
 
        Driveway to the front which is laid to gravel and concrete which extends to the side of the property and leads to the garage. The rear garden is laid to artificial lawn with a patio area all of which is enclosed by fencing.
 
         
         
        The pin shows the exact address of the property
Energy Efficiency Rating
Very energy efficient - lower running costs
Not energy efficient - higher running costs
Current
70Potential
83CO2 Rating
Very energy efficient - lower running costs
Not energy efficient - higher running costs

 
         
         
         
         
         
         
        