This calculator provides a guide to the amount of residential stamp duty you may pay and does not guarantee this will be the actual cost. This calculation is based on the Stamp Duty Land Tax Rates for residential properties purchased from 23rd September 2022 and second homes from 31st October 2024. For more information on Stamp Duty Land Tax, click here.
3 bedroom Detached House for sale, Woodside Lane, Ryton, Tyne and Wear, NE40
Features and Description
- Chain Free
- Three Bedroom Detached home
- Beautifully presented throughout
- Well maintained Gardens plus Garage.
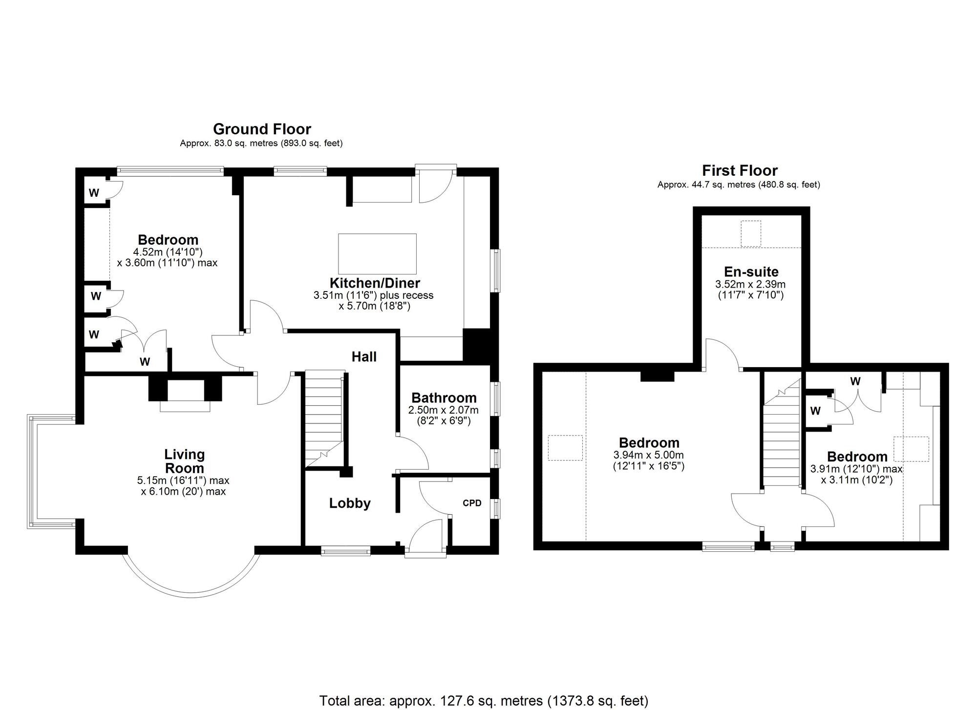
- Approx. floor area: 134sq.m. / 1,442sq.ft.
- Gateshead Council Tax Band E
- EPC Rating - Band D (64)
This quaint and charming three-double-bedroom detached house is situated within walking distance of Ryton village's shopping facilities. The house has been updated and maintained by the current homeowner to a high standard making this a beautifully well-appointed home which offers spacious accommodation throughout. Viewing is essential to fully appreciate the location, size and quality this impressive home offers.
With gas central heating and double glazing, Greenfield provides accommodation briefly comprising: entrance lobby with built-in cupboard (housing the boiler), lobby through to hallway with stairs leading off to first floor landing, spacious living room with bay windows to the front and side, and with a log burner inset to Inglenook style fireplace. To the rear is the dining kitchen, fitted with Hammonds wall and base units, worktops, inset sink unit, electric Range cooker comprising 5 burner and hot plate with double ovens, integrated large fridge and freezer, washing machine, central island with breakfast bar and a door out to the rear garden. There is a sizeable ground bedroom with fitted Hammonds wardrobes and an impressively fitted family bathroom comprising free-standing roll-top bath, vanity wash hand basin inset to combination unit, and low level W.C.
To the first floor there are two double bedrooms, both with Velux windows. The sizeable main bedroom has a spacious layout and an en suite shower room that includes a shower cubicle with mains-fed shower unit, wash hand basin and W.C.; the second double bedroom with fitted Hammonds wardrobes.
Externally, to the front of the property there are well maintained hedgerows and a spacious lawned garden with a paved pathway, accessed via the front steps up from Woodside Lane. There is a block-paved patio area to the side, leading to a gate to the rear garden with steps up to a further lawn with borders and a path up to another block-paved patio, with access to a detached garage and driveway to the rear. There is also access via a gate to the side lane, behind Greenfield Place.
Location:
The property is situated along Woodside Lane (B6315), in Ryton, in the Tyne Valley. It is 0.2 miles from the shops and facilities along the Main Road in Ryton (B6317) and there are further amenities along Barmoor Lane at the north end of the village. The A695 bypass is situated at the end of Woodside Lane, within 0.4 miles, and provides access to the surrounding towns and villages to the west - such as Crawcrook, Greenside, Prudhoe, Stocksfield and Hexham - and to Blaydon and Newcastle city centre (just over 7 miles) to the east. There are several parks and popular local walks and cycle tracks in the area, along with clubs and community activities, in addition to schools and early years/nursery providers.
Tenure
FreeholdGateshead Council Tax EEPC Rating D
IMPORTANT NOTE TO POTENTIAL PURCHASERS:
We endeavour to make our particulars accurate and reliable, however, they do not constitute or form part of an offer or any contract and none is to be relied upon as statements of representation or fact. The services, systems and appliances listed in this specification have not been tested by us and no guarantee as to their operating ability or efficiency is given. All photographs and measurements have been taken as a guide only and are not precise. Floor plans where included are not to scale and accuracy is not guaranteed. If you require clarification or further information on any points, please contact us, especially if you are travelling some distance to view. Fixtures and fittings other than those mentioned are to be agreed with the seller.
Woodside Lane, Ryton, Tyne and Wear, NE40
Additional Information
-
Property refCRA220055
-
EPCD
-
TenureFreehold
-
Council TaxE
-
Local authorityGateshead Council
Similar properties for sale by Your Move Crawcrook
The pin shows the exact address of the property
Energy Efficiency Rating
Very energy efficient - lower running costs
Not energy efficient - higher running costs
Current
64Potential
82CO2 Rating
Very energy efficient - lower running costs
Not energy efficient - higher running costs
