This calculator provides a guide to the amount of residential stamp duty you may pay and does not guarantee this will be the actual cost. This calculation is based on the Stamp Duty Land Tax Rates for residential properties purchased from 23rd September 2022 and second homes from 31st October 2024. For more information on Stamp Duty Land Tax, click here.
3 bedroom End Terrace House for sale, Longfield Road, Darlington, Durham, DL3
Features and Description
- Council Tax Band C
- Awaiting EPC
- Garden to the side
- Kitchen/Dining Room
- Three Bedrooms
- Popular Location
- Great Links to A1 and A66
- Close to local schools
We Advise that an offer has been made for the above property in the sum of £74,000. Any persons wishing to raise objection can do so within 7 days of receiving the offer. Any persons wishing to increase on this offer should notify Agent of their best offer prior to exchange of contracts.
* NO ONWARD CHAIN! * SOLD VACANT POSSESSION! * Three bedroom end terrace home set on an excellent corner plot with a garden to the side! Situated on the popular Longfield Road perfect for local schools, shops and amenities! Ideal for a variety of buyers with no onward chain and sold vacant, great for investment or first time buyers. Internally the ground floor has a lounge to the front, kitchen/dining room which would benefit from some modernisation. The first floor offers three bedrooms and a family bathroom.
Council Tax Band C
EPC Rating C.
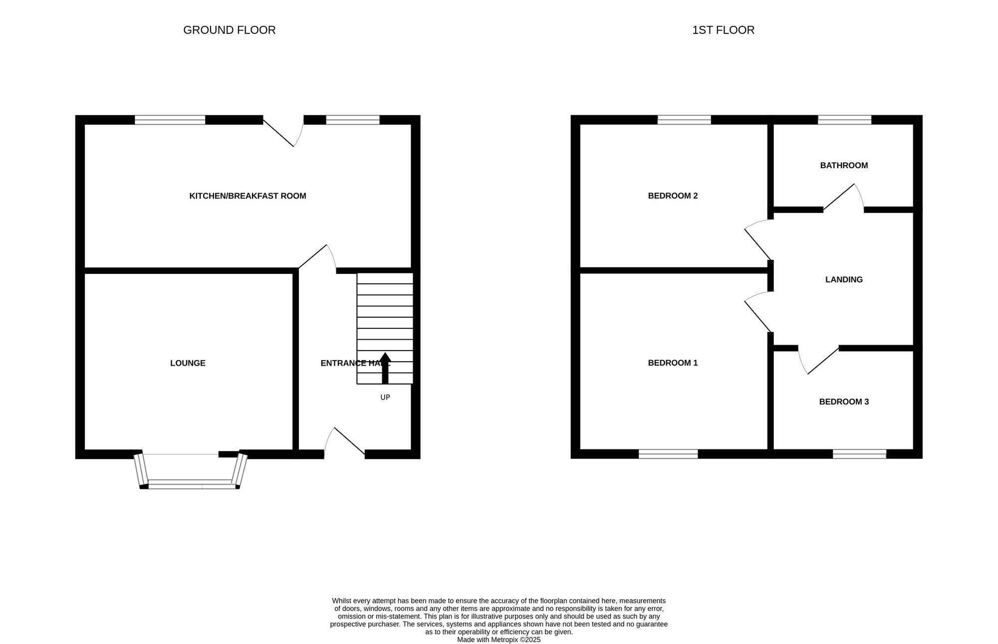
Entrance Hall
Leading from the front floor, staircase to the first floor. Understairs storage cupboard.
Lounge
Laminate style flooring, radiator and double glazed bay window to the front.
Kitchen / Dining Room
Base and wall units for storage with contrasting worktops. Rear door and window.
Bedroom 1
Carpeted flooring, radiator and double glazed window.
Bedroom 2
Carpeted flooring, radiator and double glazed window.
Bathroom
Panel bath with fitted shower head over and screen, wc and hand wash basin. Window and radiator.
Bedroom 3
Carpeted flooring, radiator and double glazed window.
External
To the front is an enclose gated entrance and a garden leading to the side. The garden is enclosed with a fence surround.
Additional Details
HMRC is a supervisory body for money laundering regulations, of which all estate agents need to be registered. As part of this, there are multiple requirements that agents must rigorously and consistently meet to ensure they stay compliant with the regulations and protect their clients. To do this, we use an identity verification service, approved by the Government as part of the Digital Identity and Attributes Trust Framework (DIATF). This method and the process we follow to ensure compliance for your transaction come with significant time, financial and legal implications hence a portion of this is passed on to our clients. We elected for this verification process due to the speed, certainty, and accuracy it delivers. This helps us to protect all our client's interests by using the most advanced verification process to help prevent the impacts of money laundering alongside our internal manual policies and procedures while staying compliant with HMRC. The administrative charge for this process is £40 plus VAT for a sole purchaser, £65 plus VAT for two purchasers and £75 plus VAT three or more purchasers.
IMPORTANT NOTE TO POTENTIAL PURCHASERS:
We endeavour to make our particulars accurate and reliable, however, they do not constitute or form part of an offer or any contract and none is to be relied upon as statements of representation or fact. The services, systems and appliances listed in this specification have not been tested by us and no guarantee as to their operating ability or efficiency is given. All photographs and measurements have been taken as a guide only and are not precise. Floor plans where included are not to scale and accuracy is not guaranteed. If you require clarification or further information on any points, please contact us, especially if you are travelling some distance to view. Fixtures and fittings other than those mentioned are to be agreed with the seller.
Longfield Road, Darlington, Durham, DL3
Additional Information
-
Property refDAR250132
-
TenureFreehold
-
Council TaxA
-
Local authorityDarlington Borough Council
Similar properties for sale by Your Move Darlington
The pin shows the exact address of the property
Energy Efficiency Rating
Very energy efficient - lower running costs
Not energy efficient - higher running costs
Current
N/APotential
N/ACO2 Rating
Very energy efficient - lower running costs
Not energy efficient - higher running costs
