This calculator provides a guide to the amount of residential stamp duty you may pay and does not guarantee this will be the actual cost. This calculation is based on the Stamp Duty Land Tax Rates for residential properties purchased from 23rd September 2022 and second homes from 31st October 2024. For more information on Stamp Duty Land Tax, click here.
 
         
         
         
         
         
         
         
         
         
         
         
        2 bedroom  Flat for sale, Besson Street, London, SE14
Features and Description
- 2 bedroom
- 1 bathroom
- Penthouse Apartment
- Balcony
- Open plan living
- Modern fitted kitchen and appliances
- EPC B
Guide Price - £425,000 - £450,000
This TWO BEDROOM PENTHOUSE is ideally located in New Cross and affords stunning views from a Terrace. Immaculate accommodation briefly comprises; Open Plan Living/Kitchen/Diner that leads onto a Terrace, 2 Bedrooms and Remodelled Bathroom. The property is conveniently situated for access to either New Cross Gate Rail or Queens Road, Peckham Rail and Overground Stations. Offered Chain Free, this property is an absolute Must See! 94-year Lease. EPC Grade B. London Borough of Lewisham Council Tax Band B. Service Charge TBA. Ground Rent TBA.
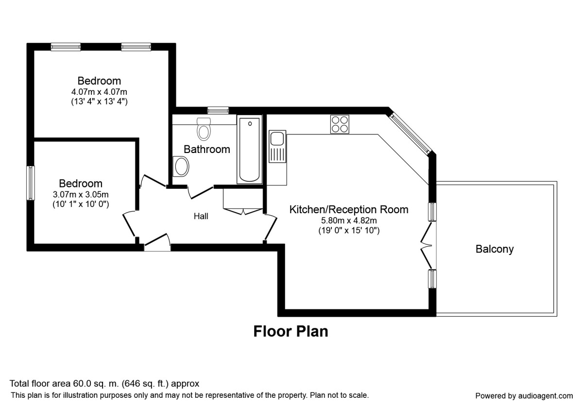
Bedroom 1
13'4" x 13'4" (4.06m x 4.06m)
Bedroom 2
10'1" x 10'0" (3.07m x 3.05m)
Kitchen / Reception Room
19'0" x 15'10" (5.80m x 4.83m)
IMPORTANT NOTE TO POTENTIAL PURCHASERS:
We endeavour to make our particulars accurate and reliable, however, they do not constitute or form part of an offer or any contract and none is to be relied upon as statements of representation or fact. The services, systems and appliances listed in this specification have not been tested by us and no guarantee as to their operating ability or efficiency is given. All photographs and measurements have been taken as a guide only and are not precise. Floor plans where included are not to scale and accuracy is not guaranteed. If you require clarification or further information on any points, please contact us, especially if you are travelling some distance to view. Fixtures and fittings other than those mentioned are to be agreed with the seller.
Besson Street, London, SE14
 
        Additional Information
- 
                    Property refNEC250031
- 
                    EPCB
- 
                    TenureLeasehold
- 
                    Lease length94 years
- 
                    Council TaxB
- 
                    Local authorityLewisham
- 
                    Ground Rent£400
- 
                    Ground Rent ReviewContact the branch
- 
                    Service Charge£700
 
        Similar properties for sale by Your Move New Cross
 
         
         
         
         
         
         
         
         
         
         
         
        The pin shows the exact address of the property
Energy Efficiency Rating
Very energy efficient - lower running costs
Not energy efficient - higher running costs
Current
88Potential
88CO2 Rating
Very energy efficient - lower running costs
Not energy efficient - higher running costs

 
         
         
         
         
         
         
        