This calculator provides a guide to the amount of residential stamp duty you may pay and does not guarantee this will be the actual cost. This calculation is based on the Stamp Duty Land Tax Rates for residential properties purchased from 23rd September 2022 and second homes from 31st October 2024. For more information on Stamp Duty Land Tax, click here.
2 bedroom Flat for sale, Chatham Quays, Dock Head Road, Kent, ME4
Features and Description
- Two Double Bedrooms
- Two Bathrooms
- Modern Fitted Kitchen
- Nicely Presented Throughout
- Allocated Parking Space
- Sought After Location
- STUNNING VIEWS OVER THE MARINA
Offered to the market is this nicely presented, spacious two bedroom apartment in the sought after Chatham Quays!
The property comprises of two double bedrooms, two bathrooms, with one en-suite to the master bedroom, a spacious and modern living room/kitchen and a good amount of built-in storage space. This property also boasts views over The Marina as well as an allocated under-croft parking space!
This property is perfect for first time buyers or buy to let investors!
CALL NOW TO ARRANGE YOUR VIEWING!
Ground Rent - £300 pa
Service Charge - approx £3500 pa
Council Tax Band - E
EPC - C
Location
Chatham offers a diverse range of property ranging from the affordable to the prestigious. There's a comprehensive range of shops and amenities in and around the sizable and busy town centre. One of Chatham's standout features is the travel links which this fabulous home takes full advantage of. This includes a mainline railway station just a few hundred yards away with high speed connections getting you to London in around 45 minutes. There is also a bus station a short walk away as well as easy access to M2, M20 and M25 motorway networks.
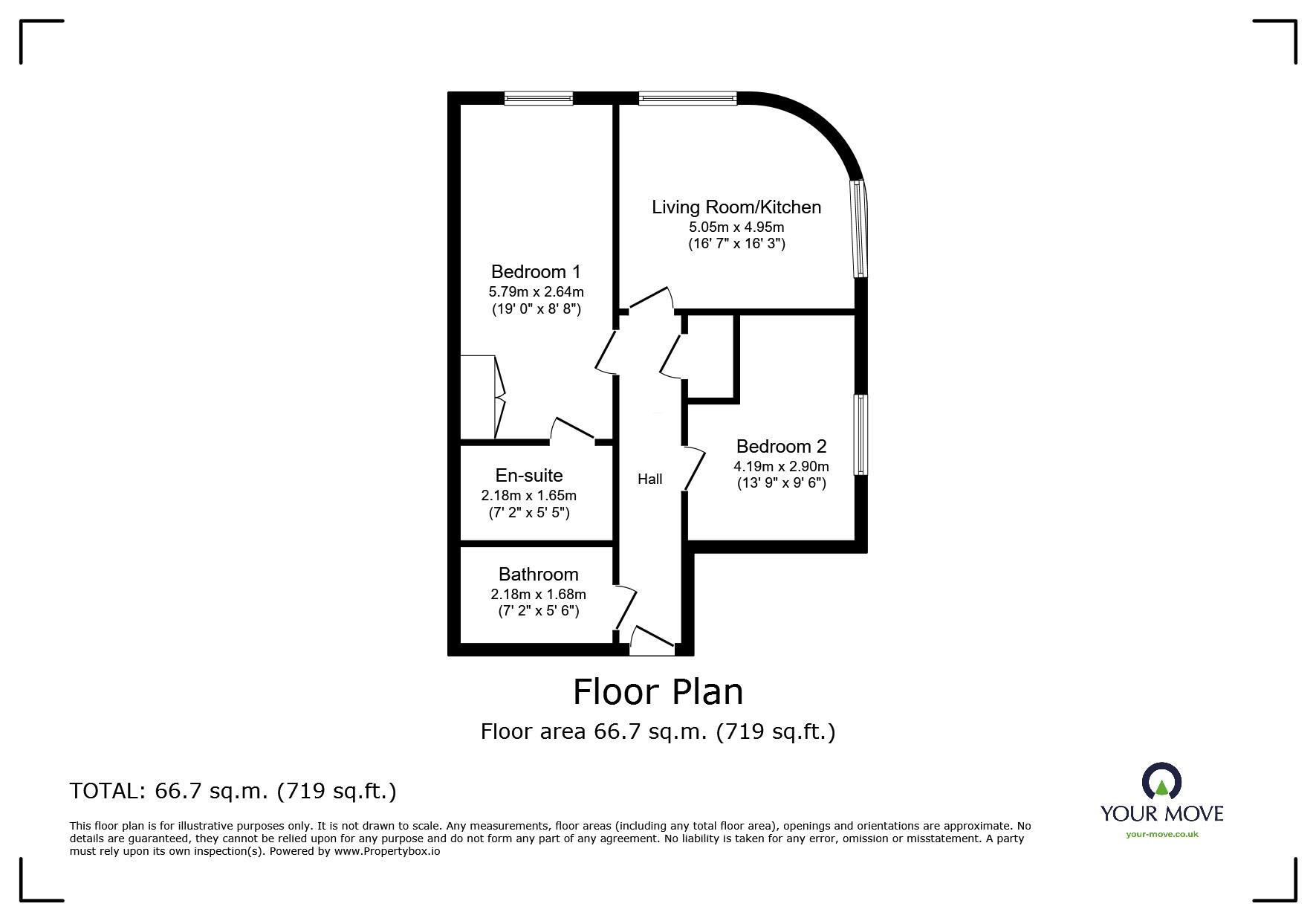
Living / Dining / Kitchen
16'7" x 16'3" (5.05m x 4.95m)
Bedroom 1
19'0" x 8'8" (5.80m x 2.64m)
En-Suite
7'2" x 5'5" (2.18m x 1.65m)
Bedroom 2
13'9" x 9'6" (4.20m x 2.90m)
Bathroom
7'2" x 5'6" (2.18m x 1.68m)
IMPORTANT NOTE TO POTENTIAL PURCHASERS:
We endeavour to make our particulars accurate and reliable, however, they do not constitute or form part of an offer or any contract and none is to be relied upon as statements of representation or fact. The services, systems and appliances listed in this specification have not been tested by us and no guarantee as to their operating ability or efficiency is given. All photographs and measurements have been taken as a guide only and are not precise. Floor plans where included are not to scale and accuracy is not guaranteed. If you require clarification or further information on any points, please contact us, especially if you are travelling some distance to view. Fixtures and fittings other than those mentioned are to be agreed with the seller.
Chatham Quays, Dock Head Road, Kent, ME4
Additional Information
-
Property refCHT250016
-
EPCC
-
TenureLeasehold
-
Lease length121 years
-
Council TaxE
-
Local authorityMedway Council
-
Ground Rent£300
-
Ground Rent ReviewContact the branch
-
Service Charge£3,500
The pin shows the exact address of the property
Energy Efficiency Rating
Very energy efficient - lower running costs
Not energy efficient - higher running costs
Current
79Potential
87CO2 Rating
Very energy efficient - lower running costs
Not energy efficient - higher running costs
