This calculator provides a guide to the amount of residential stamp duty you may pay and does not guarantee this will be the actual cost. This calculation is based on the Stamp Duty Land Tax Rates for residential properties purchased from 23rd September 2022 and second homes from 31st October 2024. For more information on Stamp Duty Land Tax, click here.
2 bedroom Flat for sale, Selbourne Street, Sunderland, Tyne and Wear, SR6
Features and Description
- Two Bedrooms
- Ground Floor Flat
- Popular Location
- EPC Grade D
- Council Tax Band A, Sunderland City Council
- 71 sq m/ 764 sq ft Floor Area
Notice Of Offer
Property Address: 9A Selbourne Street, Sunderland, SR6 0JF.
We advise that an offer has been made for the above property in the sum of £70,000. Any persons wishing to increase on this offer should notify the agents of their best offer prior to exchange of contracts.
Agents Address: Your Move
Agents Telephone Number: 01915674095
Situated in the popular Roker area, this ground floor flat boasts a thoughtful layout, making it an ideal home for a variety of lifestyles.
The property is laid over one floor and comprises of lounge, kitchen which is fitted with wall and base units, it is also plumbed for an automatic washing machine and has space for a free standing fridge. Two bedrooms the principle having fitted wardrobes. Bathroom which is fitted with a three piece white suite with a shower over the bath.
Externally there is on street parking and a private rear yard.
Situated in Roker
Leasehold
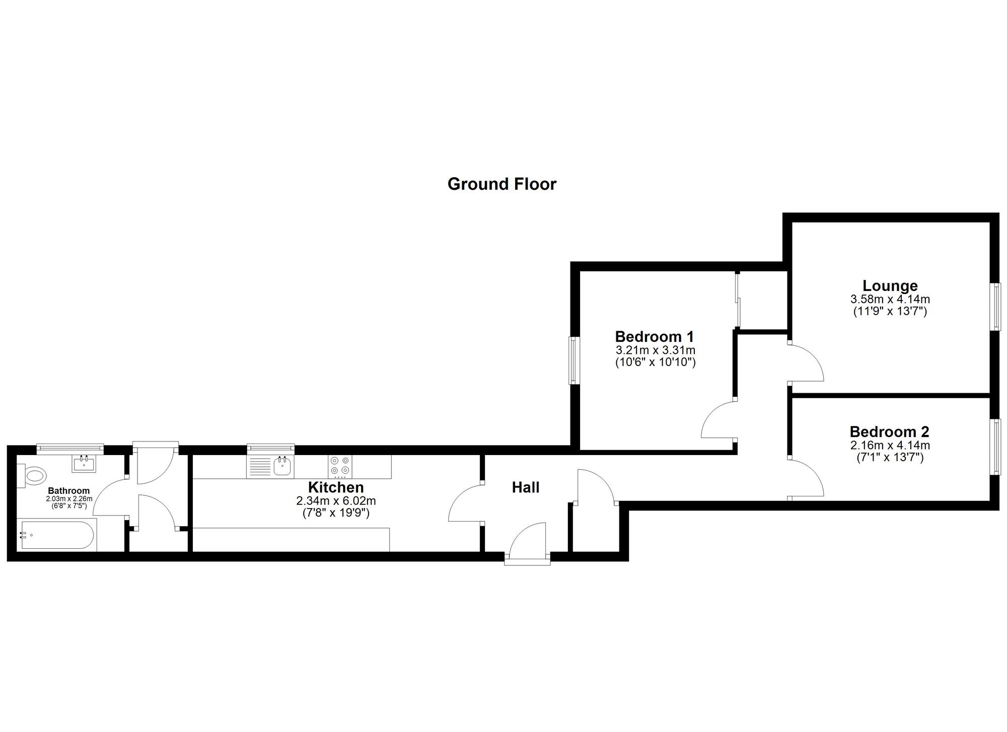
Lounge
11'1" x 13'7" (3.38m x 4.14m)
Kitchen
7'8" x 19'9" (2.34m x 6.02m)
Bedroom 1
7'1" x 13'7" (2.16m x 4.14m)
Bedroom 2
10'6" x 10'10" (3.20m x 3.30m)
Bathroom
7'5" x 6'8" (2.26m x 2.03m)
IMPORTANT NOTE TO POTENTIAL PURCHASERS:
We endeavour to make our particulars accurate and reliable, however, they do not constitute or form part of an offer or any contract and none is to be relied upon as statements of representation or fact. The services, systems and appliances listed in this specification have not been tested by us and no guarantee as to their operating ability or efficiency is given. All photographs and measurements have been taken as a guide only and are not precise. Floor plans where included are not to scale and accuracy is not guaranteed. If you require clarification or further information on any points, please contact us, especially if you are travelling some distance to view. Fixtures and fittings other than those mentioned are to be agreed with the seller.
Selbourne Street, Sunderland, Tyne and Wear, SR6
Additional Information
-
Property refSUN250331
-
EPCD
-
TenureLeasehold
-
Lease length979 years
-
Council TaxA
-
Local authoritySunderland City Council
-
Ground RentContact the branch
-
Ground Rent ReviewContact the branch
-
Service ChargeContact the branch
Similar properties for sale by Your Move Sunderland
The pin shows the exact address of the property
Energy Efficiency Rating
Very energy efficient - lower running costs
Not energy efficient - higher running costs
Current
60Potential
72CO2 Rating
Very energy efficient - lower running costs
Not energy efficient - higher running costs
