This calculator provides a guide to the amount of residential stamp duty you may pay and does not guarantee this will be the actual cost. This calculation is based on the Stamp Duty Land Tax Rates for residential properties purchased from 23rd September 2022 and second homes from 31st October 2024. For more information on Stamp Duty Land Tax, click here.
1 bedroom Flat for sale, Spinning Wheel Way, Wallington, SM6
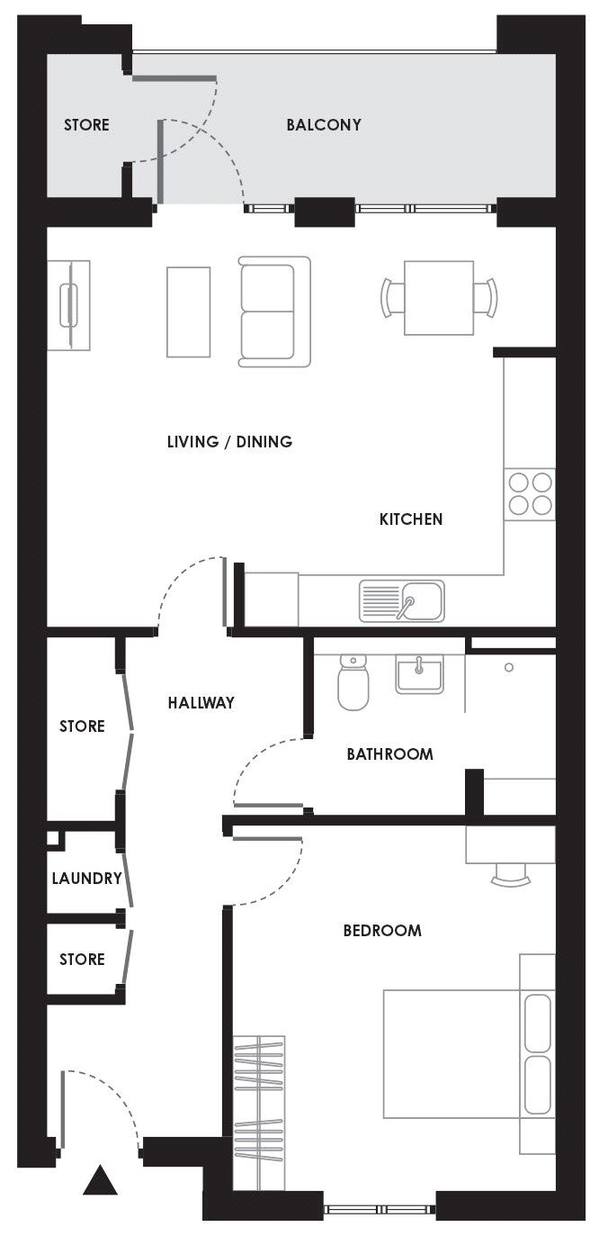
Features and Description
- Show Apartments Available
- Community Lifestyle Living
- Light & spacious open plan design
- Brasserie & bar, fitness suite & club lounge on site
- Private balcony/terraces & Landscaped outdoor terraces
- On-site call system - Video door entry system
- 24-hour on-site staff presence
- A vibrant community for over 55's
- Just a stone's throw away, shops, cafes , restaurants, doctors, pharmacy and more
- Hackbridge Zone 4 station - London Victoria is 25 mins
Our Button House community features 80 beautifully designed one and two-bedroom apartments, each offering everything you need to live life to the full during your retirement.
The Denison prices from £304,000
This spacious, modern apartment features a bright living/dining area, kitchen, en-suite bathroom and private balcony, plus plenty of in-home storage space.
The Hub is at the heart of the community at Button House. Here, you can participate in various events and activities, from craft days, and exercise classes, to pamper days and much more. You can enjoy unlimited use of the fitness equipment. The hobby room and club lounge offer a space to relax with friends and family or discover a new hobby. Plus, the onsite Slate & Grain brasserie and bar (to be opened ) will offer the perfect place to bring loved ones together over good food, good drink, and conversation.
Feeling part of a community undoubtedly makes life more meaningful and enjoyable. Button House is a community in its own right, however, great care has been taken to choose a location where you will feel part of the wider community.
Shops, places to eat and drink and other amenities such as health centres and pharmacies, can all be found close by. Plus, the beautiful rolling green space at Beddington Park, where the River Wandle runs, is just a short walk away.
A couple of miles up the road is neighbouring Sutton which has indoor shopping centres, a bustling high street, Sutton's library, and all the main supermarkets. It's also home to the renowned Royal Marsden Hospital and a satellite of the Moorfields Eye Hospital. For those who love getting into the city, Hackbridge Station is a short walk away with access to London Victoria in around 25 minutes. Gatwick airport is approximately 17 miles away.
Discreet care can be provided by a trusted care provider (registered with the Care Quality Commission). We also offer a range of lifestyle support services. Charges apply for these services.
All homes are available to rent, buy or part rent part buy.
Length of lease to approximately 246 years as it is originally 250 yrs and was built in around 2019
Service charge: £547 per month...This includes some amazing facilities!!
Please note that service charges* apply to prices shown. Please get in touch with a member of the Brio team for further information on what this fee covers.
* Concierge Fees: A monthly Concierge Fee covers a range of on-site facilities and services- please see the brochure for full details.
** Deferred Management Fee: On reselling the property, owners pay a Deferred Management Fee (DMF) of up to 15% of the property value; an Estate Agency Fee of 1% of the sale price achieved; and an Administration Fee of at least £500.
Council Tax Band:C
***Some photographs may not necessarily be of the specific property for sale.
IMPORTANT NOTE TO POTENTIAL PURCHASERS:
We endeavour to make our particulars accurate and reliable, however, they do not constitute or form part of an offer or any contract and none is to be relied upon as statements of representation or fact. The services, systems and appliances listed in this specification have not been tested by us and no guarantee as to their operating ability or efficiency is given. All photographs and measurements have been taken as a guide only and are not precise. Floor plans where included are not to scale and accuracy is not guaranteed. If you require clarification or further information on any points, please contact us, especially if you are travelling some distance to view. Fixtures and fittings other than those mentioned are to be agreed with the seller.
Spinning Wheel Way, Wallington, SM6
Additional Information
-
Property refNHO230459
-
TenureLeasehold
-
Lease length243 years
-
Council TaxC
-
Ground RentContact the branch
-
Ground Rent ReviewContact the branch
-
Service ChargeÂŁ6,557
Similar properties for sale by Your Move Wallington
The pin shows the exact address of the property
Energy Efficiency Rating
Very energy efficient - lower running costs
Not energy efficient - higher running costs
Current
N/APotential
N/ACO2 Rating
Very energy efficient - lower running costs
Not energy efficient - higher running costs
