This calculator provides a guide to the amount of residential stamp duty you may pay and does not guarantee this will be the actual cost. This calculation is based on the Stamp Duty Land Tax Rates for residential properties purchased from 23rd September 2022 and second homes from 31st October 2024. For more information on Stamp Duty Land Tax, click here.
 
         
         
         
         
         
         
         
         
         
         
        2 bedroom  Flat for sale, St. Cecilias, Okement Drive, West Midlands, WV11
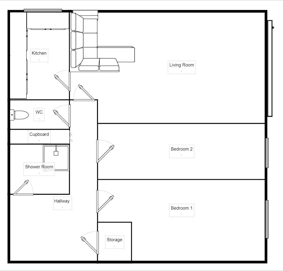
Features and Description
Deceptively Spacious TWO Bedroom Flat located on the 7th Floor of the Popular St Cecilias Court. Spacious Apartment with accommodation comprising of Lounge with a Balcony, Kitchen, Two Bedrooms, Bathroom and separate WC. The property benefits from a Central Heating System and Double Glazing as well as an allocated parking space. EPC Grade B.
Lounge
16`9 x 14`5
Kitchen
8`2 x 12`6
Bedroom 1
14`1 x 9`6
Bedroom 2
14`1 x 7`3
Bathroom
6`5 x 5`5
Tenure
Leasehold95 Years Remaining Service Charges £2400 Approx Annually (Paid till December)Ground Rent £100 Annually
Agency Notes
Wolverhampton City Council - Band AFreehold EPC - BNOTE TO INVESTORS: Based on the asking price of £72,000 this property is likely to achieve a rental income of £650pcm, providing an annual gross yield of 10%.
IMPORTANT NOTE TO POTENTIAL PURCHASERS:
We endeavour to make our particulars accurate and reliable, however, they do not constitute or form part of an offer or any contract and none is to be relied upon as statements of representation or fact. The services, systems and appliances listed in this specification have not been tested by us and no guarantee as to their operating ability or efficiency is given. All photographs and measurements have been taken as a guide only and are not precise. Floor plans where included are not to scale and accuracy is not guaranteed. If you require clarification or further information on any points, please contact us, especially if you are travelling some distance to view. Fixtures and fittings other than those mentioned are to be agreed with the seller.
St. Cecilias, Okement Drive, West Midlands, WV11
 
        Additional Information
- 
                    Property refWED190516
- 
                    EPCB
- 
                    TenureLeasehold
- 
                    Lease length92 years
- 
                    Council TaxA
- 
                    Local authorityWolverhampton City Council
- 
                    Ground Rent£100
- 
                    Ground Rent ReviewContact the branch
- 
                    Service Charge£1,900
 
        Similar properties for sale by Your Move Wednesfield
 
         
         
         
         
         
         
         
         
         
         
        The pin shows the exact address of the property
Energy Efficiency Rating
Very energy efficient - lower running costs
Not energy efficient - higher running costs
Current
81Potential
83CO2 Rating
Very energy efficient - lower running costs
Not energy efficient - higher running costs

 
         
         
         
         
         
         
        